値下げしました! 「戸塚」駅利用 新築一戸建て 長期優良住宅

物件種別

新築一戸建て

価格

5,299万円

所在地

横浜市戸塚区 戸塚町 1877-25

交通

東海道本線「戸塚」駅 バス停「大坂上」まで 徒歩 7 分 バス利用 5分

横須賀線「大船」駅 バス停「下郷」まで 徒歩 8 分 バス利用 15分

土地面積

152.70㎡

建物面積

102.26㎡

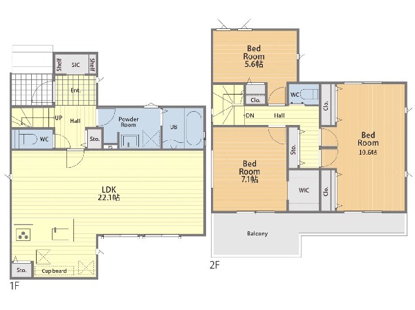
間取り

4LDK

前回情報更新日 2026.03.26 | 次回情報更新予定日 2026.04.09

シューズインクローク

長期優良住宅

カースペース2台

道路広々(5m以上)

1 | 12

この物件のココがオススメ!

複数路線が乗り入れる「戸塚」駅利用。長期優良住宅。全室2面採光なので、明るく通風良好。LDKは、対面キッチン。大物の収納に便利なWIC、玄関隣接のSIC完備。

  • システムキッチン
  • ガス3口
  • カウンタキッチン
  • 対面キッチン
  • ユニットバス

お気軽にどうぞ!

お気に入りに追加済み

所在地マップ

間取り

お気軽にどうぞ!

お気に入りに追加済み

ローンシミュレーション

頭金・金利の場合

この物件の月々のお支払額

123,408

ボーナス時(年2回)お支払額

150,000

安全性をチェック! 年収に対する返済比率

- %

※会員登録し、詳細情報を記入されますと、全ての物件で自動的に金額が表示され、大変便利です。

※まだ会員登録をされていない方は、下記チェック欄をご記入ください。

※上記計算は物件価格 5,299万円+諸経費 8%込みの金額による結果となります。

※返済金額はあくまでも目安です。

お客様の条件からシミュレーションするには?

会員登録してローン情報を入力しておくと全ての物件に対してローンシミュレーションを表示できます。

お気軽にどうぞ!

お気に入りに追加済み

詳細情報

学区

下郷小学校

南戸塚中学校

用途地域

第一種低層住居専用

地目

宅地

建ぺい率

40%

容積率

80%

駐車場

有り カースペース

接道

7.4m

権利

所有権

私道面積

無し

セットバック

無し

建物構造

木造

建物階数

2階

築年月

2026/02

入居日

即時

建築確認番号

第HPA-25-11806-1号

都市計画

市街化区域

取引態様

仲介

物件番号

48226

設備

都市ガス、公営水道、公共下水、駐車場2台以上、緑豊かな住宅地、閑静な住宅地、前道6m以上、小学校徒歩10分以内、中学校徒歩10分以内、シューズインクローク、ウォークインクローゼット、対面キッチン、パントリー、都市ガス、眺望良好、システムキッチン、ガス3口、カウンタキッチン、対面キッチン、I型キッチン、パントリー(食器・食品の収納庫)、ユニットバス、追い焚き、浴室乾燥機、ウォシュレット、トイレ2ヶ所、暖房便座、浴室暖房、バルコニー、バルコニー2面、南面バルコニー、2階建、LDK15畳以上、和室、全室2面採光、フローリング、クローゼット、ウォークインクローゼット、収納、床下収納、下駄箱、全居室収納、シューズインクローク、シャンプドレッサー付き、フラット35Sに対応、モニタ付きインターフォン、24時間換気システム、建物10年保証

こだわり

長期優良住宅、食器洗い洗浄乾燥機、浴室換気乾燥暖房機、運転ラクラク生活、大人の二人暮らし、LDKは1階に、2階建て住宅限定、シューズインクローク、ウォークインクローゼット、LDK15帖以上、和室有り、対面キッチン、パントリー、小学校10分以内、コンビニ10分以内、公園10分以内、都市ガス、フラット35利用可、カースペース2台、隣家との間隔たっぷり、道路広々(5m以上)、眺望良好

特記事項

崖下につき建築制限:有/建築協定:有/壁面後退:有/宅地造成工事規制区域:有/高度地区:有/日影制限:有/敷地内段差:有/敷地面積最低限度:有/高さ限度:有/その他制限事項:建築基準法第22条による区域 建物建築・再建築の際、防護壁の設置、高基礎、外壁後退等の対策が必要となる場合有。 傾斜地含。

備考

複数路線が乗り入れる「戸塚」駅利用。長期優良住宅。全室2面採光なので、明るく通風良好。LDKは、対面キッチン。大物の収納に便利なWIC、玄関隣接のSIC完備。

この一戸建てを見ている人におすすめの物件

お気軽にどうぞ!

お気に入りに追加済み

loading...