今週末モデルハウス見学会開催中!「六浦」駅徒歩13分 新築一戸建て(1)ビルトイン車庫

物件種別

新築一戸建て

価格

4,580万円

所在地

横浜市金沢区 六浦2丁目 6-6

交通

逗子線「六浦」駅 徒歩 10 分

京浜急行本線「金沢八景」駅 徒歩 13 分

土地面積

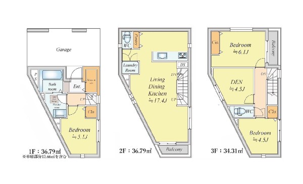
54.54㎡

建物面積

107.89㎡

間取り

3SLDK

前回情報更新日 2026.05.07 | 次回情報更新予定日 2026.05.21

シューズインクローク

断熱に配慮された建物

省エネに配慮された建物

1 | 2

この物件のココがオススメ!

京急逗子線「六浦」駅から徒歩10分。プライバシーに配慮した2階リビング。SIC完備。食洗機他、設備充実。納戸もお部屋としてご利用いただけます。

  • システムキッチン
  • ガス3口
  • 対面キッチン
  • 食器洗い機付き
  • ユニットバス

お気軽にどうぞ!

お気に入りに追加済み

所在地マップ

間取り

お気軽にどうぞ!

お気に入りに追加済み

ローンシミュレーション

頭金・金利の場合

この物件の月々のお支払額

103,281

ボーナス時(年2回)お支払額

150,000

安全性をチェック! 年収に対する返済比率

- %

※会員登録し、詳細情報を記入されますと、全ての物件で自動的に金額が表示され、大変便利です。

※まだ会員登録をされていない方は、下記チェック欄をご記入ください。

※上記計算は物件価格 4,580万円+諸経費 8%込みの金額による結果となります。

※返済金額はあくまでも目安です。

お客様の条件からシミュレーションするには?

会員登録してローン情報を入力しておくと全ての物件に対してローンシミュレーションを表示できます。

お気軽にどうぞ!

お気に入りに追加済み

詳細情報

学区

六浦小学校

六浦中学校

用途地域

近隣商業

地目

宅地

建ぺい率

80%

容積率

240%

駐車場

有り ビルトイン車庫 駐車場面積:13.66㎡

接道

4.0m

権利

所有権

私道面積

無し

セットバック

無し

建物構造

木造

建物階数

2階

築年月

2026/05

入居日

2026/06

建築確認番号

第25KAK建確02385号

都市計画

市街化区域

取引態様

仲介

物件番号

48409-1

設備

都市ガス、公営水道、公共下水、ビルトインガレージ、駐車場1台、緑豊かな住宅地、閑静な住宅地、スーパーが近い(10分以内)、2沿線以上利用可、小学校徒歩10分以内、中学校徒歩10分以内、公園5分以内、コンビニ5分以内、シューズインクローク、対面キッチン、パントリー、都市ガス、システムキッチン、ガス3口、対面キッチン、食器洗い機付き、浄水器、I型キッチン、パントリー(食器・食品の収納庫)、ユニットバス、追い焚き、浴室乾燥機、ウォシュレット、トイレ2ヶ所、暖房便座、浴室暖房、バルコニー2面、南面バルコニー、3階建以上、LDK15畳以上、省エネ給湯器、採光3面、全室2面採光、フローリング、リビング階段、クローゼット、収納、床下収納、シューズインクローク、シャンプドレッサー付き、フラット35Sに対応、モニタ付きインターフォン、複層ガラス、全居室複層ガラスか複層サッシ、24時間換気システム、建物10年保証

こだわり

道路狭い(4メートル未満)、断熱に配慮された建物、省エネに配慮された建物、食器洗い洗浄乾燥機、浴室換気乾燥暖房機、急行電車でスピード通勤、始発で座ってゆったり通勤、大人の二人暮らし、シューズインクローク、リビングイン階段、LDKは2階に、LDK15帖以上、対面キッチン、パントリー、小学校10分以内、スーパー10分以内、コンビニ10分以内、保育園10分以内、公園10分以内、都市ガス、屋根付きカースペース

特記事項

不整形地:有/宅地造成工事規制区域:有/高度地区:有/その他制限事項:建築基準法第22条区域 建物面積に車庫面積13.66平米含 別途私道持分1号棟・2号棟で9.13平米有。

備考

京急逗子線「六浦」駅から徒歩10分。プライバシーに配慮した2階リビング。SIC完備。食洗機他、設備充実。納戸もお部屋としてご利用いただけます。

この一戸建てを見ている人におすすめの物件

お気軽にどうぞ!

お気に入りに追加済み

loading...