今週末モデルハウス見学会開催中!「金沢文庫」駅利用 新築一戸建て WIC・SIC完備

物件種別

新築一戸建て

価格

6,090万円

所在地

横浜市金沢区 釜利谷東4丁目 41-21

交通

京浜急行本線「金沢文庫」駅 バス停「釜利谷高校」まで 徒歩 9 分 バス利用 7分

京浜急行本線「能見台」駅 バス停「能見台六丁目」まで 徒歩 9 分 バス利用 11分

土地面積

199.45㎡

建物面積

109.30㎡

間取り

4LDK

前回情報更新日 2026.03.26 | 次回情報更新予定日 2026.04.09

シューズインクローク

断熱に配慮された建物

カースペース3台以上

LDK20帖以上

この物件のココがオススメ!

京急線「金沢文庫」駅利用。LDKは、ご家族との会話が弾む対面キッチン。大物の収納に便利なWIC、玄関隣接のSIC完備。食洗機・浴室乾燥機・ペアガラス他設備充実。

  • システムキッチン
  • ガス3口
  • カウンタキッチン
  • 食器洗い機付き
  • ユニットバス

お気軽にどうぞ!

お気に入りに追加済み

所在地マップ

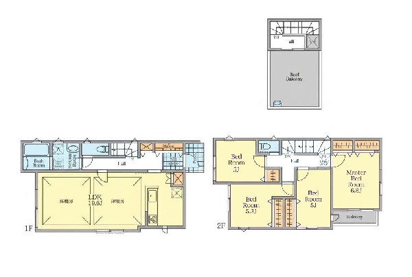
間取り

お気軽にどうぞ!

お気に入りに追加済み

ローンシミュレーション

頭金・金利の場合

この物件の月々のお支払額

145,584

ボーナス時(年2回)お支払額

150,000

安全性をチェック! 年収に対する返済比率

- %

※会員登録し、詳細情報を記入されますと、全ての物件で自動的に金額が表示され、大変便利です。

※まだ会員登録をされていない方は、下記チェック欄をご記入ください。

※上記計算は物件価格 6,090万円+諸経費 8%込みの金額による結果となります。

※返済金額はあくまでも目安です。

お客様の条件からシミュレーションするには?

会員登録してローン情報を入力しておくと全ての物件に対してローンシミュレーションを表示できます。

お気軽にどうぞ!

お気に入りに追加済み

詳細情報

学区

能見台南小学校

金沢中学校

用途地域

第一種低層住居専用

地目

宅地

建ぺい率

50%

容積率

80%

駐車場

有り カースペース

接道

北東 4.4m

権利

所有権

私道面積

無し

セットバック

無し

建物構造

木造

建物階数

2階

築年月

2026/04

入居日

2026/05

建築確認番号

第25KAK建確02180号

都市計画

市街化区域

取引態様

仲介

物件番号

48514

設備

都市ガス、公営水道、公共下水、駐車場2台以上、緑豊かな住宅地、閑静な住宅地、シューズインクローク、ウォークインクローゼット、対面キッチン、パントリー、都市ガス、システムキッチン、ガス3口、カウンタキッチン、食器洗い機付き、I型キッチン、パントリー(食器・食品の収納庫)、ユニットバス、追い焚き、浴室乾燥機、ウォシュレット、トイレ2ヶ所、浴室に窓、暖房便座、浴室暖房、バルコニー、ワイドバルコニー、南面バルコニー、2階建、LDK20畳以上、全室2面採光、フローリング、クローゼット、ウォークインクローゼット、床下収納、全居室収納、シューズインクローク、シャンプドレッサー付き、フラット35Sに対応、モニタ付きインターフォン、複層ガラス、24時間換気システム、建物10年保証

こだわり

断熱に配慮された建物、食器洗い洗浄乾燥機、浴室換気乾燥暖房機、急行電車でスピード通勤、LDKは1階に、2階建て住宅限定、シューズインクローク、ウォークインクローゼット、LDK20帖以上、広々バルコニー、対面キッチン、パントリー、都市ガス、フラット35利用可、カースペース3台以上

特記事項

宅地造成工事規制区域:有/高度地区:有/日影制限:有/敷地面積最低限度:有/高さ限度:有/その他制限事項:建築基準法第22条による区域。

備考

京急線「金沢文庫」駅利用。LDKは、ご家族との会話が弾む対面キッチン。大物の収納に便利なWIC、玄関隣接のSIC完備。食洗機・浴室乾燥機・ペアガラス他設備充実。

この一戸建てを見ている人におすすめの物件

お気軽にどうぞ!

お気に入りに追加済み

loading...