川崎市多摩区菅野戸呂 新築一戸建 3790万円

物件種別

新築一戸建て

価格

3,790万円

所在地

川崎市多摩区 菅野戸呂 6-47

交通

京王相模原線「京王稲田堤」駅 徒歩 10 分

南武線「稲田堤」駅 徒歩 13 分

土地面積

44.33㎡

建物面積

71.46㎡

間取り

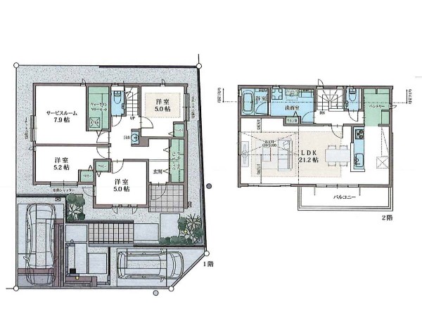
3LDK

前回情報更新日 2026.03.19 | 次回情報更新予定日 2026.04.02

省エネに配慮された建物

1 | 5

この物件のココがオススメ!

「京王稲田堤」駅徒歩10分 南武線との2駅2路線利用可能 多摩川の四季折々の自然を楽しめる環境です

  • システムキッチン
  • ガス3口
  • 食器洗い機付き
  • ユニットバス
  • 追い焚き

お気軽にどうぞ!

お気に入りに追加済み

所在地マップ

間取り

お気軽にどうぞ!

お気に入りに追加済み

ローンシミュレーション

頭金・金利の場合

この物件の月々のお支払額

81,157

ボーナス時(年2回)お支払額

150,000

安全性をチェック! 年収に対する返済比率

- %

※会員登録し、詳細情報を記入されますと、全ての物件で自動的に金額が表示され、大変便利です。

※まだ会員登録をされていない方は、下記チェック欄をご記入ください。

※上記計算は物件価格 3,790万円+諸経費 8%込みの金額による結果となります。

※返済金額はあくまでも目安です。

お客様の条件からシミュレーションするには?

会員登録してローン情報を入力しておくと全ての物件に対してローンシミュレーションを表示できます。

周辺環境

京王稲田堤駅(JR南武線と京王相模原線を繋ぐターミナル駅。両駅間の乗り換えは商店街を通り抜けるので、ちょっとしたお買い物も済ませられます。)

周辺環境:京王稲田堤駅(JR南武線と京王相模原線を繋ぐターミナル駅。両駅間の乗り換えは商店街を通り抜けるので、ちょっとしたお買い物も済ませられます。)(750m)

菅小学校(明治7年創立。学校教育目標は、笑顔いっぱい・学びいっぱい・夢いっぱい。)

小学校

周辺環境:菅小学校(明治7年創立。学校教育目標は、笑顔いっぱい・学びいっぱい・夢いっぱい。)(1000m)

菅中学校(成長の過程でより濃い時間を過ごす3年間。お子様にとって、とても大切な思い出となるはずです。)

中学校

周辺環境:菅中学校(成長の過程でより濃い時間を過ごす3年間。お子様にとって、とても大切な思い出となるはずです。)(1400m)

京王ストア 稲田堤店(駅を出てすぐ近くにありますので、お出かけの際、ついでに立ち寄りやすく、日々のお買い物にとても便利です。)

スーパー

周辺環境:京王ストア 稲田堤店(駅を出てすぐ近くにありますので、お出かけの際、ついでに立ち寄りやすく、日々のお買い物にとても便利です。)(900m)

学校法人平山学園菅幼稚園( )

幼稚園・保育園

周辺環境:学校法人平山学園菅幼稚園( )(950m)

菅保育園(近隣には保育園が点在しており、子育て中の方にとって、心強い環境です。毎日の生活の一部だから、保育園が近いことで送り迎えなどの負担も減りますね。)

幼稚園・保育園

周辺環境:菅保育園(近隣には保育園が点在しており、子育て中の方にとって、心強い環境です。毎日の生活の一部だから、保育園が近いことで送り迎えなどの負担も減りますね。)(1200m)

お気軽にどうぞ!

お気に入りに追加済み

詳細情報

学区

菅小学校

菅中学校

用途地域

第一種中高層住居専用

地目

宅地

建ぺい率

60%

容積率

160%

駐車場

有り カースペース

接道

北東 4.0m

権利

所有権

私道面積

有 49.71m² 1/2

セットバック

無し

建物構造

木造

建物階数

3階

築年月

2025/12

入居日

即時

建築確認番号

第25KAK建確00950号

都市計画

市街化区域

取引態様

仲介

物件番号

A1993

設備

都市ガス、公営水道、公共下水、宅配ロッカー、省エネルギー対策、シックハウス対策、駐車場1台、閑静な住宅地、平坦地、都市近郊、地盤調査済、市街地が近い、周辺交通量少なめ、スーパーが近い(10分以内)、駅まで平坦、2沿線以上利用可、コンビニ5分以内、パントリー、都市ガス、システムキッチン、ガス3口、食器洗い機付き、浄水器、パントリー(食器・食品の収納庫)、ユニットバス、追い焚き、浴室乾燥機、ウォシュレット、浴室に窓、暖房便座、浴室暖房、バルコニー、3階建以上、採光3面、全室2面採光、リビング階段、クローゼット、収納、全居室収納、シャンプドレッサー付き、年度内入居可、モニタ付きインターフォン、複層ガラス、火災警報器(報知機)、通風良好、陽当り良好、24時間換気システム、建物10年保証

こだわり

省エネに配慮された建物、食器洗い洗浄乾燥機、浴室換気乾燥暖房機、駅まで平坦ラクラク通勤、2沿線利用であんしん通勤、自然を感じる暮らし、リビングイン階段、LDKは2階に、パントリー、スーパー10分以内、コンビニ10分以内、小児科医院10分以内、保育園10分以内、公園10分以内、都市ガス、道路と段差無し、3階建て以上建築可能地域

特記事項

 景観法:有/宅地造成工事規制区域:有/高度地区:有/準防火地域:有/日影制限:有/高さ限度:有。

備考

「京王稲田堤」駅徒歩10分 南武線との2駅2路線利用可能 多摩川の四季折々の自然を楽しめる環境です

この一戸建てを見ている人におすすめの物件

お気軽にどうぞ!

お気に入りに追加済み

loading...