川崎市高津区千年 新築一戸建 5380万円 1号棟

物件種別

新築一戸建て

価格

5,380万円

所在地

川崎市高津区 千年 303-4

交通

南武線「武蔵新城」駅 徒歩 22 分

田園都市線「溝の口」駅 バス停「千年」まで 徒歩 6 分 バス利用 17分

土地面積

130.90㎡

建物面積

79.90㎡

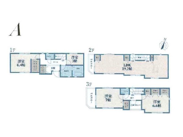
間取り

2SLDK

前回情報更新日 2026.03.31 | 次回情報更新予定日 2026.04.14

耐震に配慮された建物

断熱に配慮された建物

省エネに配慮された建物

カースペース2台

1 | 20

この物件のココがオススメ!

武蔵新城駅徒歩22分 住宅性能評価取得+ZEH水準に適合した高断熱・省エネ住宅 敷地面積37坪 P2台有

  • システムキッチン
  • ガス3口
  • 対面キッチン
  • 食器洗い機付き
  • ユニットバス

お気軽にどうぞ!

お気に入りに追加済み

所在地マップ

間取り

お気軽にどうぞ!

お気に入りに追加済み

ローンシミュレーション

頭金・金利の場合

この物件の月々のお支払額

125,690

ボーナス時(年2回)お支払額

150,000

安全性をチェック! 年収に対する返済比率

- %

※会員登録し、詳細情報を記入されますと、全ての物件で自動的に金額が表示され、大変便利です。

※まだ会員登録をされていない方は、下記チェック欄をご記入ください。

※上記計算は物件価格 5,380万円+諸経費 8%込みの金額による結果となります。

※返済金額はあくまでも目安です。

お客様の条件からシミュレーションするには?

会員登録してローン情報を入力しておくと全ての物件に対してローンシミュレーションを表示できます。

周辺環境

武蔵新城駅(駅前のスーパーやドラッグストアなどは、深夜まで営業し、会社帰りの買物にとても便利です。)

周辺環境:武蔵新城駅(駅前のスーパーやドラッグストアなどは、深夜まで営業し、会社帰りの買物にとても便利です。)(1700m)

A-プライス溝の口店(飲食店向けの「プロの食材の店」として毎日の仕入をサポートします。)

スーパー

周辺環境:A-プライス溝の口店(飲食店向けの「プロの食材の店」として毎日の仕入をサポートします。)(1100m)

ライフ高津新作店( 「安全と安心」「鮮度と品質」「信頼とサービス」にこだわっています。22時までの営業です。)

スーパー

周辺環境:ライフ高津新作店( 「安全と安心」「鮮度と品質」「信頼とサービス」にこだわっています。22時までの営業です。)(1500m)

春日台公園(野球場が併設されている広々とした公園。都市圏にありながら森林浴が楽しめるほど、自然豊かな場所です。)

公園

周辺環境:春日台公園(野球場が併設されている広々とした公園。都市圏にありながら森林浴が楽しめるほど、自然豊かな場所です。)(1100m)

クリエイトS・D川崎千年店(スーパーやコンビニとともに生活に欠かせないという方も多いドラッグストアは、近所にあると頼もしい限りですね。)

ドラッグストア

周辺環境:クリエイトS・D川崎千年店(スーパーやコンビニとともに生活に欠かせないという方も多いドラッグストアは、近所にあると頼もしい限りですね。)(850m)

溝口温泉 喜楽里(天然温泉施設です。「美人の湯」「美肌の湯」と呼ばれる温泉はじめ多彩なお風呂をご用意しております。)

その他環境写真

周辺環境:溝口温泉 喜楽里(天然温泉施設です。「美人の湯」「美肌の湯」と呼ばれる温泉はじめ多彩なお風呂をご用意しております。)(800m)

若竹幼稚園(評判のよい幼稚園。若竹のようにすくすく育ってほしい願いが込められた園名です。)

幼稚園・保育園

周辺環境:若竹幼稚園(評判のよい幼稚園。若竹のようにすくすく育ってほしい願いが込められた園名です。)(600m)

橘小学校(学校教育目標はだれにでもやさしい子、よく考えすすんでまなぶ子、あかるくたくましい子。)

小学校

周辺環境:橘小学校(学校教育目標はだれにでもやさしい子、よく考えすすんでまなぶ子、あかるくたくましい子。)(750m)

橘中学校(校訓は「向上心」意欲を持って学習し豊かな知識、思いやりの心と、正しい判断力を身に付けよう。)

中学校

周辺環境:橘中学校(校訓は「向上心」意欲を持って学習し豊かな知識、思いやりの心と、正しい判断力を身に付けよう。)(1200m)

お気軽にどうぞ!

お気に入りに追加済み

詳細情報

学区

橘小学校

橘中学校

用途地域

第一種低層住居専用

地目

宅地

建ぺい率

50%

容積率

80%

駐車場

有り カースペース

接道

3.6m

権利

所有権

私道面積

無し

セットバック

無し

建物構造

木造

建物階数

2階

築年月

2026/02

入居日

即時

建築確認番号

第HPA-25-07602-1号

都市計画

市街化区域

取引態様

仲介

物件番号

A2176-1

設備

都市ガス、公営水道、公共下水、設計住宅性能評価付、建設住宅性能評価付、耐震構造、外壁サイディング、駐車場2台以上、緑豊かな住宅地、都市近郊、地盤調査済、市街地が近い、周辺交通量少なめ、2沿線以上利用可、小学校徒歩10分以内、公園5分以内、対面キッチン、パントリー、都市ガス、システムキッチン、ガス3口、対面キッチン、食器洗い機付き、浄水器、パントリー(食器・食品の収納庫)、ユニットバス、追い焚き、浴室乾燥機、ウォシュレット、オートバス付き、トイレ2ヶ所、浴室1坪以上、浴室に窓、暖房便座、浴室暖房、バルコニー、南面バルコニー、2階建、採光2面、南向き、フローリング、全室フローリング、クローゼット、収納、下駄箱、全居室収納、シャンプドレッサー付き、フラット35Sに対応、年度内入居可、モニタ付きインターフォン、複層ガラス、火災警報器(報知機)、陽当り良好、24時間換気システム、建物10年保証

こだわり

道路狭い(4メートル未満)、耐震に配慮された建物、断熱に配慮された建物、省エネに配慮された建物、食器洗い洗浄乾燥機、浴室換気乾燥暖房機、外食を楽しめる生活、急行電車でスピード通勤、2階建て住宅限定、LDKは2階に、対面キッチン、浴室1坪以上、パントリー、小学校10分以内、コンビニ10分以内、小児科医院10分以内、保育園10分以内、幼稚園10分以内、公園10分以内、都市ガス、フラット35利用可、カースペース2台、道路と段差無し、低層住居専用地域

特記事項

 不整形地:有/壁面後退:有/景観法:有/宅地造成工事規制区域:有/高度地区:有/準防火地域:有/日影制限:有/敷地面積最低限度:有/高さ限度:有/建築基準法22条による区域/敷地面積:路地状部分約48平米含む/間取りSは納戸。

備考

武蔵新城駅徒歩22分 住宅性能評価取得+ZEH水準に適合した高断熱・省エネ住宅 敷地面積37坪 P2台有

この一戸建てを見ている人におすすめの物件

お気軽にどうぞ!

お気に入りに追加済み

loading...