川崎市高津区久地2丁目 新築一戸建 5080万円 E棟

物件種別

新築一戸建て

価格

5,080万円

所在地

川崎市高津区 久地2丁目 9-17

交通

田園都市線「溝の口」駅 バス停「梅林」まで 徒歩 6 分 バス利用 10分

東急大井町線「二子新地」駅 徒歩 21 分

土地面積

81.54㎡

建物面積

103.50㎡

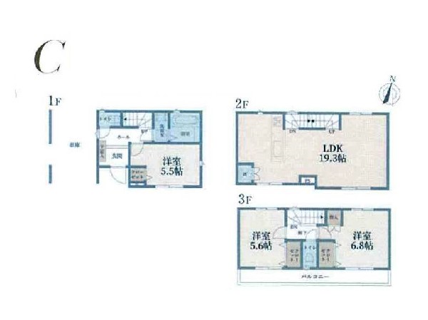
間取り

4LDK

前回情報更新日 2026.03.27 | 次回情報更新予定日 2026.04.10

シューズインクローク

床暖房

道路広々(5m以上)

日当たり良好

この物件のココがオススメ!

閑静な住宅地 南側道路で日当たり良好 SICなど収納たっぷり  床暖房や食洗機など設備充実

  • システムキッチン
  • ガス3口
  • 対面キッチン
  • L型キッチン
  • 食器洗い機付き

お気軽にどうぞ!

お気に入りに追加済み

所在地マップ

間取り

お気軽にどうぞ!

お気に入りに追加済み

ローンシミュレーション

頭金・金利の場合

この物件の月々のお支払額

117,287

ボーナス時(年2回)お支払額

150,000

安全性をチェック! 年収に対する返済比率

- %

※会員登録し、詳細情報を記入されますと、全ての物件で自動的に金額が表示され、大変便利です。

※まだ会員登録をされていない方は、下記チェック欄をご記入ください。

※上記計算は物件価格 5,080万円+諸経費 8%込みの金額による結果となります。

※返済金額はあくまでも目安です。

お客様の条件からシミュレーションするには?

会員登録してローン情報を入力しておくと全ての物件に対してローンシミュレーションを表示できます。

周辺環境

久地梅林公園(公園の奥は小高い丘になっており、いろんな種類の梅の木があります。公園中央は広いスペースなので、ボール遊びや鬼ごっこなど元気に走り回れます。)

公園

周辺環境:久地梅林公園(公園の奥は小高い丘になっており、いろんな種類の梅の木があります。公園中央は広いスペースなので、ボール遊びや鬼ごっこなど元気に走り回れます。)(500m)

くじ保育園(開所時間は、月曜日~土曜日7:00~20:00 (土曜日は申込制)。対象年齢は生後5ヶ月~就学前まで。)

幼稚園・保育園

周辺環境:くじ保育園(開所時間は、月曜日~土曜日7:00~20:00 (土曜日は申込制)。対象年齢は生後5ヶ月~就学前まで。)(700m)

ライフ溝口店(食べ盛りのお子様がいるご家庭の強い味方、魅力の量・価格のスーパーが近くにあると、とても心強いですね。)

スーパー

周辺環境:ライフ溝口店(食べ盛りのお子様がいるご家庭の強い味方、魅力の量・価格のスーパーが近くにあると、とても心強いですね。)(950m)

西高津中学校(小学校より長い時間を過ごす中学校。この学校で過ごす時間は、お子様にとってとても大切な思い出となるはず。)

中学校

周辺環境:西高津中学校(小学校より長い時間を過ごす中学校。この学校で過ごす時間は、お子様にとってとても大切な思い出となるはず。)(850m)

高津小学校(お子様が一日の中でも長い時間を過ごす小学校。どんどん成長していくお子様の姿が目に浮かびます。)

小学校

周辺環境:高津小学校(お子様が一日の中でも長い時間を過ごす小学校。どんどん成長していくお子様の姿が目に浮かびます。)(1200m)

東急ストア高津店(駅の改札を出てすぐ近くにありますので、通勤通学、お出かけの際、ついでで立ち寄りやすく、生活していくうえで日々のお買い物にとても便利です。)

スーパー

周辺環境:東急ストア高津店(駅の改札を出てすぐ近くにありますので、通勤通学、お出かけの際、ついでで立ち寄りやすく、生活していくうえで日々のお買い物にとても便利です。)(1500m)

お気軽にどうぞ!

お気に入りに追加済み

詳細情報

学区

高津小学校

西高津中学校

用途地域

準工業

地目

宅地

建ぺい率

60%

容積率

200%

駐車場

有り カースペース

接道

4.0m

権利

所有権

私道面積

有 16.05m²

セットバック

無し

建物構造

木造

建物階数

3階

築年月

2026/02

入居日

即時

建築確認番号

第25UDI1K建00468号

都市計画

市街化区域

取引態様

仲介

物件番号

A2291-E

設備

都市ガス、公営水道、公共下水、防犯シャッター、宅配ロッカー、外壁サイディング、駐車場1台、閑静な住宅地、平坦地、都市近郊、地盤調査済、南側道路面す、前道6m以上、市街地が近い、周辺交通量少なめ、スーパーが近い(10分以内)、2沿線以上利用可、公園5分以内、シューズインクローク、ウォークインクローゼット、対面キッチン、都市ガス、システムキッチン、ガス3口、対面キッチン、L型キッチン、食器洗い機付き、浄水器、ユニットバス、追い焚き、浴室乾燥機、ウォシュレット、トイレ2ヶ所、浴室1坪以上、浴室に窓、暖房便座、バルコニー、南面バルコニー、3階建以上、LDK18畳以上、全室南東向き、全室2面採光、リビング階段、スマートキー、クローゼット、収納、床下収納、シューズインクローク、シャンプドレッサー付き、フラット35Sに対応、モニタ付きインターフォン、複層ガラス、火災警報器(報知機)、陽当り良好、24時間換気システム、建物10年保証

こだわり

敷地延長(旗竿地)、床暖房、食器洗い洗浄乾燥機、浴室換気乾燥暖房機、運転ラクラク生活、シューズインクローク、ウォークインクローゼット、リビングイン階段、LDKは2階に、LDK18帖以上、対面キッチン、浴室1坪以上、スーパー10分以内、コンビニ10分以内、保育園10分以内、公園10分以内、都市ガス、フラット35利用可、5棟以上の分譲地、道路広々(5m以上)、日当たり良好、南道路限定、道路と段差無し

特記事項

 不整形地:有/景観法:有/宅地造成工事規制区域:有/高度地区:有/準防火地域:有/日影制限:有/高さ限度:有。

備考

閑静な住宅地 南側道路で日当たり良好 SICなど収納たっぷり  床暖房や食洗機など設備充実

この一戸建てを見ている人におすすめの物件

お気軽にどうぞ!

お気に入りに追加済み

loading...