川崎市麻生区百合丘1丁目 新築一戸建 5680万円 4号棟

物件種別

新築一戸建て

価格

5,680万円

所在地

川崎市麻生区 百合丘1丁目 14

交通

小田急線「百合ヶ丘」駅 徒歩 8 分

小田急線「新百合ヶ丘」駅 徒歩 15 分

土地面積

138.43㎡

建物面積

105.99㎡

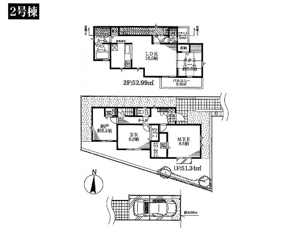
間取り

3SLDK

前回情報更新日 2026.05.08 | 次回情報更新予定日 2026.05.22

道路広々(5m以上)

隣家との間隔たっぷり

区画整理分譲地内に住む

低層住居専用地域

この物件のココがオススメ!

最寄り駅徒歩8分 人気の「新百合ヶ丘」駅も徒歩圏内の好立地 主寝室8帖以上 和室付きの癒しの住宅

  • システムキッチン
  • ガス3口
  • 対面キッチン
  • ユニットバス
  • 追い焚き

お気軽にどうぞ!

お気に入りに追加済み

所在地マップ

間取り

お気軽にどうぞ!

お気に入りに追加済み

ローンシミュレーション

頭金・金利の場合

この物件の月々のお支払額

134,094

ボーナス時(年2回)お支払額

150,000

安全性をチェック! 年収に対する返済比率

- %

※会員登録し、詳細情報を記入されますと、全ての物件で自動的に金額が表示され、大変便利です。

※まだ会員登録をされていない方は、下記チェック欄をご記入ください。

※上記計算は物件価格 5,680万円+諸経費 8%込みの金額による結果となります。

※返済金額はあくまでも目安です。

お客様の条件からシミュレーションするには?

会員登録してローン情報を入力しておくと全ての物件に対してローンシミュレーションを表示できます。

周辺環境

スーパー三和百合ヶ丘店 (地域に密着した食品スーパーマーケットとして、魅力ある店舗づくりを進めている。)

スーパー

周辺環境:スーパー三和百合ヶ丘店 (地域に密着した食品スーパーマーケットとして、魅力ある店舗づくりを進めている。)(400m)

百合ヶ丘駅 (ダイヤ改正により利便性が向上した小田急線、準急停車駅。駅前にはスーパー・飲食店・コンビニ・銀行などが揃う。)

周辺環境:百合ヶ丘駅 (ダイヤ改正により利便性が向上した小田急線、準急停車駅。駅前にはスーパー・飲食店・コンビニ・銀行などが揃う。)(550m)

百合丘小学校 (お子様が一日の中でも長い時間を過ごす小学校。のびのびと過ごし、広い校庭で元気に駆け回ったり、どんどん成長していくお子様の姿が目に浮かびます。)

小学校

周辺環境:百合丘小学校 (お子様が一日の中でも長い時間を過ごす小学校。のびのびと過ごし、広い校庭で元気に駆け回ったり、どんどん成長していくお子様の姿が目に浮かびます。)(550m)

万福寺檜山公園 (春にはお花見で賑わう公園。木漏れ日広場、遊びの広場など数種類の広場があり、すべり台や鉄棒、砂場もあります。)

公園

周辺環境:万福寺檜山公園 (春にはお花見で賑わう公園。木漏れ日広場、遊びの広場など数種類の広場があり、すべり台や鉄棒、砂場もあります。)(700m)

西生田中学校 (成長の過程でより濃い時間を過ごす3年間。お子様にとって、とても大切な思い出となるはずです。)

中学校

周辺環境:西生田中学校 (成長の過程でより濃い時間を過ごす3年間。お子様にとって、とても大切な思い出となるはずです。)(1500m)

新百合ヶ丘総合病院(先端医療サービスを実践し、病気の予防・早期発見・治療に努めてまいります。)

病院

周辺環境:新百合ヶ丘総合病院(先端医療サービスを実践し、病気の予防・早期発見・治療に努めてまいります。)(2100m)

お気軽にどうぞ!

お気に入りに追加済み

詳細情報

学区

百合丘小学校

西生田中学校

用途地域

第一種低層住居専用

地目

宅地

建ぺい率

50%

容積率

100%

駐車場

有り カースペース

接道

西 5.0m

権利

所有権

私道面積

無し

セットバック

無し

建物構造

木造

建物階数

2階

築年月

2026/04

入居日

2026/05

建築確認番号

第KBI-YKH25-10-2289号

都市計画

市街化区域

取引態様

仲介

物件番号

A2309-4

設備

都市ガス、公営水道、公共下水、駐車場1台、区画整理地内、緑豊かな住宅地、都市近郊、地盤調査済、市街地が近い、隣家との間隔が大きい、周辺交通量少なめ、スーパーが近い(10分以内)、小学校徒歩10分以内、保育施設・幼稚園5分以内、公園5分以内、対面キッチン、パントリー、都市ガス、システムキッチン、ガス3口、対面キッチン、浄水器、パントリー(食器・食品の収納庫)、ユニットバス、追い焚き、浴室乾燥機、ウォシュレット、オートバス付き、トイレ2ヶ所、浴室1坪以上、浴室に窓、暖房便座、浴室暖房、バルコニー、テラス、南面バルコニー、2階建、LDK15畳以上、和室、採光2面、全室南向き、南向き、フローリング、クローゼット、押し入れ、収納、床下収納、物置、全居室収納、シャンプドレッサー付き、年内入居可、モニタ付きインターフォン、複層ガラス、火災警報器(報知機)、陽当り良好、24時間換気システム、建物10年保証

こだわり

敷地延長(旗竿地)、浴室換気乾燥暖房機、外食を楽しめる生活、子供の多い街に住む、区画整理分譲地内に住む、2階建て住宅限定、LDKは2階に、LDK15帖以上、主寝室 8帖以上、和室有り、対面キッチン、浴室1坪以上、パントリー、小学校10分以内、スーパー10分以内、コンビニ10分以内、小児科医院10分以内、保育園10分以内、幼稚園10分以内、公園10分以内、都市ガス、隣家との間隔たっぷり、道路広々(5m以上)、低層住居専用地域

特記事項

 不整形地:有/壁面後退:有/景観法:有/宅地造成工事規制区域:有/高度地区:有/日影制限:有/敷地面積最低限度:有/高さ限度:有/間取りSは納戸/敷地面積:路地状部分含む。

備考

最寄り駅徒歩8分 人気の「新百合ヶ丘」駅も徒歩圏内の好立地 主寝室8帖以上 和室付きの癒しの住宅

この一戸建てを見ている人におすすめの物件

お気軽にどうぞ!

お気に入りに追加済み

loading...