川崎市高津区溝口6丁目 新築一戸建 6690万円 D号棟

物件種別

新築一戸建て

価格

6,690万円

所在地

川崎市高津区 溝口6丁目 21

交通

田園都市線「高津」駅 徒歩 14 分

南武線「武蔵溝ノ口」駅 徒歩 17 分

土地面積

78.46㎡

建物面積

92.32㎡

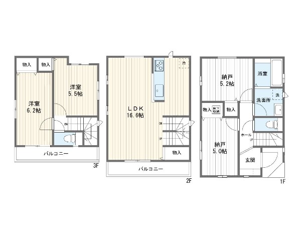
間取り

2LDK+2S

前回情報更新日 2026.03.26 | 次回情報更新予定日 2026.04.09

耐震に配慮された建物

断熱に配慮された建物

床暖房

1 | 12

この物件のココがオススメ!

商業施設が整う人気の「溝の口」駅まで徒歩圏内 豊かな自然と利便性を兼ね備えた住環境 充実の標準設備

  • システムキッチン
  • ガスコンロ
  • ガス3口
  • カウンタキッチン
  • 対面キッチン

お気軽にどうぞ!

お気に入りに追加済み

所在地マップ

間取り

お気軽にどうぞ!

お気に入りに追加済み

ローンシミュレーション

頭金・金利の場合

この物件の月々のお支払額

162,390

ボーナス時(年2回)お支払額

150,000

安全性をチェック! 年収に対する返済比率

- %

※会員登録し、詳細情報を記入されますと、全ての物件で自動的に金額が表示され、大変便利です。

※まだ会員登録をされていない方は、下記チェック欄をご記入ください。

※上記計算は物件価格 6,690万円+諸経費 8%込みの金額による結果となります。

※返済金額はあくまでも目安です。

お客様の条件からシミュレーションするには?

会員登録してローン情報を入力しておくと全ての物件に対してローンシミュレーションを表示できます。

周辺環境

溝の口駅北口ロータリー( 田園都市線、大井町線、南武線と多方面へと利便性が良い溝の口駅。川崎市営バスも本数が多いターミナル駅。)

周辺環境:溝の口駅北口ロータリー( 田園都市線、大井町線、南武線と多方面へと利便性が良い溝の口駅。川崎市営バスも本数が多いターミナル駅。)(1300m)

ノクティ1・2(丸井やノクティなど、多くの店舗が入る商業施設。)

ショッピングセンター

周辺環境:ノクティ1・2(丸井やノクティなど、多くの店舗が入る商業施設。)(1400m)

ライフ 溝口店(スーパーマーケット ライフは、「安全と安心」「鮮度と品質」「信頼とサービス」にこだわっています。 )

スーパー

周辺環境:ライフ 溝口店(スーパーマーケット ライフは、「安全と安心」「鮮度と品質」「信頼とサービス」にこだわっています。 )(550m)

ドン・キホーテ溝ノ口駅前店(「あれはどこに売ってるかな~」と思った時に最初に頭を過るのがドンキ。行ってみるとやっぱり売っているお店。)

その他環境写真

周辺環境:ドン・キホーテ溝ノ口駅前店(「あれはどこに売ってるかな~」と思った時に最初に頭を過るのがドンキ。行ってみるとやっぱり売っているお店。)(1400m)

高津図書館(緑に囲まれた高津図書館は、高津駅から徒歩5分、溝口緑地の中にあります。駐輪場も充実しており自転車でも来場も可能。)

図書館

周辺環境:高津図書館(緑に囲まれた高津図書館は、高津駅から徒歩5分、溝口緑地の中にあります。駐輪場も充実しており自転車でも来場も可能。)(1000m)

ファミリーマートMG溝口六丁目店(ファミリーマート人気のファミチキをはじめスナックメニューも大人気です。)

コンビニ

周辺環境:ファミリーマートMG溝口六丁目店(ファミリーマート人気のファミチキをはじめスナックメニューも大人気です。)(190m)

みぞのくち保育園(社会福祉法人大慈会に属する定員120名の保育園です。20時までの延長保育に対応しています。)

幼稚園・保育園

周辺環境:みぞのくち保育園(社会福祉法人大慈会に属する定員120名の保育園です。20時までの延長保育に対応しています。)(1000m)

高津小学校(お子様が一日の中でも長い時間を過ごす小学校。どんどん成長していくお子様の姿が目に浮かびます。)

小学校

周辺環境:高津小学校(お子様が一日の中でも長い時間を過ごす小学校。どんどん成長していくお子様の姿が目に浮かびます。)(800m)

西高津中学校(小学校より長い時間を過ごす中学校。この学校で過ごす時間は、お子様にとってとても大切な思い出となるはず。)

中学校

周辺環境:西高津中学校(小学校より長い時間を過ごす中学校。この学校で過ごす時間は、お子様にとってとても大切な思い出となるはず。)(400m)

お気軽にどうぞ!

お気に入りに追加済み

詳細情報

学区

高津小学校

西高津中学校

用途地域

第一種住居

地目

宅地

建ぺい率

60%

容積率

160%

駐車場

有り カースペース

接道

4.0m

権利

所有権

私道面積

無し

セットバック

無し

建物構造

木造

建物階数

3階

築年月

2026/08

入居日

2026/09

建築確認番号

第HPA-26-01576-1

都市計画

市街化区域

取引態様

仲介

物件番号

A2334-D

設備

都市ガス、公営水道、公共下水、設計住宅性能評価付、建設住宅性能評価書(新築時)、駐車場1台、緑豊かな住宅地、閑静な住宅地、平坦地、都市近郊、地盤調査済、市街地が近い、周辺交通量少なめ、スーパーが近い(10分以内)、駅まで平坦、始発駅、2沿線以上利用可、小学校徒歩10分以内、中学校徒歩10分以内、保育施設・幼稚園5分以内、公園5分以内、コンビニ5分以内、対面キッチン、都市ガス、システムキッチン、ガスコンロ、ガス3口、カウンタキッチン、対面キッチン、食器洗い機付き、浄水器、ユニットバス、追い焚き、浴室乾燥機、ウォシュレット、オートバス付き、トイレ2ヶ所、浴室1坪以上、浴室に窓、暖房便座、浴室暖房、バルコニー、南面バルコニー、3階建以上、LDK15畳以上、採光3面、南向き、全室2面採光、フローリング、全室フローリング、リビング階段、クローゼット、収納、床下収納、下駄箱、全居室収納、シャンプドレッサー付き、年内入居可、モニタ付きインターフォン、複層ガラス、火災警報器(報知機)、セキュリティ充実、24時間換気システム、建物10年保証

こだわり

耐震に配慮された建物、断熱に配慮された建物、床暖房、食器洗い洗浄乾燥機、浴室換気乾燥暖房機、外食を楽しめる生活、急行電車でスピード通勤、駅まで平坦ラクラク通勤、2沿線利用であんしん通勤、子供の多い街に住む、自然を感じる暮らし、リビングイン階段、LDKは2階に、LDK15帖以上、広々バルコニー、対面キッチン、浴室1坪以上、小学校10分以内、スーパー10分以内、コンビニ10分以内、小児科医院10分以内、保育園10分以内、公園10分以内、都市ガス、10棟以上の分譲地、道路と段差無し、3階建て以上建築可能地域

特記事項

 不整形地:有/景観法:有/宅地造成工事規制区域:有/高度地区:有/準防火地域:有/日影制限:有/高さ限度:有/敷地面積のうち路地状敷地面積約25平米含む、敷地面積のうち協定地部分含む、間取Sは納戸。

備考

商業施設が整う人気の「溝の口」駅まで徒歩圏内 豊かな自然と利便性を兼ね備えた住環境 充実の標準設備

この一戸建てを見ている人におすすめの物件

お気軽にどうぞ!

お気に入りに追加済み

loading...