値下げしました!今週末見学会開催中!「二俣川」駅利用 新築一戸建て 長期優良住宅

物件種別

新築一戸建て

価格

5,780万円

所在地

横浜市旭区 今宿1丁目 29-15

交通

相模鉄道線「二俣川」駅 バス停「ニュータウン第5」まで 徒歩 2 分 バス利用 7分

相模鉄道線「三ッ境」駅 バス停「ニュータウン第5」まで 徒歩 1 分 バス利用 9分

土地面積

193.37㎡

建物面積

105.99㎡

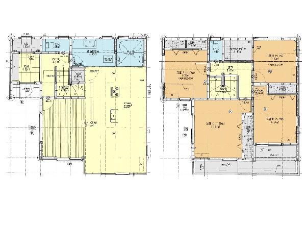
間取り

4LDK

前回情報更新日 2025.10.09 | 次回情報更新予定日 2025.10.23

シューズインクローク

耐震に配慮された建物

断熱に配慮された建物

省エネに配慮された建物

この物件のココがオススメ!

相鉄線「二俣川」駅利用。長期優良住宅。LDKは、ご家族との会話が弾む対面キッチン。収納に便利な玄関隣接のSIC完備。食洗器・浴室乾燥機が標準装備。

  • システムキッチン
  • ガス3口
  • カウンタキッチン
  • 対面キッチン
  • 食器洗い機付き

お気軽にどうぞ!

お気に入りに追加済み

所在地マップ

間取り

お気軽にどうぞ!

お気に入りに追加済み

ローンシミュレーション

頭金・金利の場合

この物件の月々のお支払額

136,895

ボーナス時(年2回)お支払額

150,000

安全性をチェック! 年収に対する返済比率

- %

※会員登録し、詳細情報を記入されますと、全ての物件で自動的に金額が表示され、大変便利です。

※まだ会員登録をされていない方は、下記チェック欄をご記入ください。

※上記計算は物件価格 5,780万円+諸経費 8%込みの金額による結果となります。

※返済金額はあくまでも目安です。

お客様の条件からシミュレーションするには?

会員登録してローン情報を入力しておくと全ての物件に対してローンシミュレーションを表示できます。

お気軽にどうぞ!

お気に入りに追加済み

詳細情報

学区

中沢小学校

旭中学校

用途地域

第二種低層住居専用

地目

宅地

建ぺい率

50%

容積率

80%

駐車場

有り カースペース

接道

北東 6.5m

権利

所有権

私道面積

無し

セットバック

無し

建物構造

木造

建物階数

2階

築年月

2025/08

入居日

即時

建築確認番号

第R07SHC102210号

都市計画

市街化区域

取引態様

仲介

物件番号

46907

設備

都市ガス、公営水道、公共下水、駐車場2台以上、緑豊かな住宅地、閑静な住宅地、前道6m以上、小学校徒歩10分以内、公園5分以内、コンビニ5分以内、シューズインクローク、対面キッチン、都市ガス、システムキッチン、ガス3口、カウンタキッチン、対面キッチン、食器洗い機付き、I型キッチン、ユニットバス、追い焚き、浴室乾燥機、ウォシュレット、トイレ2ヶ所、浴室に窓、暖房便座、浴室暖房、南面バルコニー、2階建、LDK20畳以上、採光3面、フローリング、クローゼット、収納、床下収納、シューズインクローク、シャンプドレッサー付き、フラット35Sに対応、モニタ付きインターフォン、24時間換気システム、建物10年保証

こだわり

耐震に配慮された建物、断熱に配慮された建物、省エネに配慮された建物、長期優良住宅、食器洗い洗浄乾燥機、浴室換気乾燥暖房機、急行電車でスピード通勤、大人の二人暮らし、LDKは1階に、2階建て住宅限定、シューズインクローク、LDK20帖以上、対面キッチン、小学校10分以内、コンビニ10分以内、保育園10分以内、公園10分以内、都市ガス、フラット35利用可、カースペース2台、道路広々(5m以上)

特記事項

壁面後退:有/宅地造成工事規制区域:有/高度地区:有/特別用途制限地域:有/日影制限:有/敷地内段差:有/敷地面積最低限度:有/高さ限度:有/その他制限事項:建築基準法第22条による区域 傾斜地含 第二用途地域:第一種低層住居専用地域(建蔽率50%容積率80%)。

備考

相鉄線「二俣川」駅利用。長期優良住宅。LDKは、ご家族との会話が弾む対面キッチン。収納に便利な玄関隣接のSIC完備。食洗器・浴室乾燥機が標準装備。

この一戸建てを見ている人におすすめの物件

お気軽にどうぞ!

お気に入りに追加済み

loading...