今週末モデルハウス見学会開催中!「金沢八景」駅利用 新築一戸建て 敷地面積約64坪!

物件種別

新築一戸建て

価格

4,890万円

所在地

横浜市栄区 長倉町 4-7

交通

京浜急行本線「金沢八景」駅 バス停「長倉町」まで 徒歩 4 分 バス利用 17分

東海道本線「大船」駅 バス停「長倉町」まで 徒歩 4 分 バス利用 27分

土地面積

211.86㎡

建物面積

95.64㎡

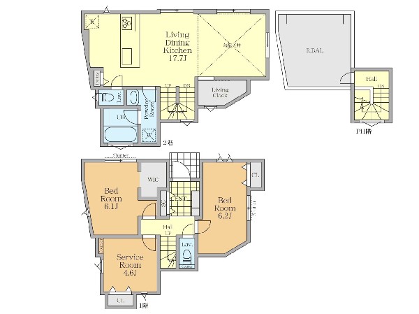
間取り

4LDK

前回情報更新日 2025.11.27 | 次回情報更新予定日 2025.12.11

道路広々(5m以上)

この物件のココがオススメ!

京急線「金沢八景」駅利用。敷地広々約211平米 全室2面採光なので、明るく通風良好。LDKは、ご家族との会話が弾む対面キッチン。南面ワイドバルコニー付。

  • システムキッチン
  • ガス3口
  • 対面キッチン
  • ユニットバス
  • 追い焚き

お気軽にどうぞ!

お気に入りに追加済み

所在地マップ

間取り

お気軽にどうぞ!

お気に入りに追加済み

ローンシミュレーション

頭金・金利の場合

この物件の月々のお支払額

111,970

ボーナス時(年2回)お支払額

150,000

安全性をチェック! 年収に対する返済比率

- %

※会員登録し、詳細情報を記入されますと、全ての物件で自動的に金額が表示され、大変便利です。

※まだ会員登録をされていない方は、下記チェック欄をご記入ください。

※上記計算は物件価格 4,890万円+諸経費 8%込みの金額による結果となります。

※返済金額はあくまでも目安です。

お客様の条件からシミュレーションするには?

会員登録してローン情報を入力しておくと全ての物件に対してローンシミュレーションを表示できます。

お気軽にどうぞ!

お気に入りに追加済み

詳細情報

学区

庄戸小学校

上郷中学校

用途地域

第一種低層住居専用

地目

宅地

建ぺい率

40%

容積率

80%

駐車場

有り カースペース

接道

西 5.0m

権利

所有権

私道面積

無し

セットバック

無し

建物構造

木造

建物階数

2階

築年月

2025/11

入居日

2025/12

建築確認番号

第HPA-25-06448-1号

都市計画

市街化区域

取引態様

仲介

物件番号

46856

設備

都市ガス、公営水道、公共下水、外壁サイディング、駐車場2台以上、緑豊かな住宅地、閑静な住宅地、土地50坪以上、2沿線以上利用可、公園5分以内、対面キッチン、都市ガス、システムキッチン、ガス3口、対面キッチン、浄水器、I型キッチン、ユニットバス、追い焚き、ウォシュレット、トイレ2ヶ所、浴室に窓、暖房便座、バルコニー、ワイドバルコニー、南面バルコニー、2階建、LDK18畳以上、全室2面採光、フローリング、クローゼット、収納、床下収納、下駄箱、全居室収納、シャンプドレッサー付き、モニタ付きインターフォン、複層ガラス、24時間換気システム

こだわり

急行電車でスピード通勤、大人の二人暮らし、LDKは1階に、2階建て住宅限定、LDK18帖以上、広々バルコニー、対面キッチン、浴室1坪以上、コンビニ10分以内、公園10分以内、都市ガス、道路広々(5m以上)

特記事項

壁面後退:有/宅地造成工事規制区域:有/高度地区:有/日影制限:有/敷地内段差:有/敷地面積最低限度:有/高さ限度:有/その他制限事項:建築基準法第22条区域 傾斜地含。

備考

京急線「金沢八景」駅利用。敷地広々約211平米 全室2面採光なので、明るく通風良好。LDKは、ご家族との会話が弾む対面キッチン。南面ワイドバルコニー付。

この一戸建てを見ている人におすすめの物件

お気軽にどうぞ!

お気に入りに追加済み

loading...