今週末モデルハウス見学会開催中!「緑園都市」駅徒歩15分 新築一戸建て 南東角地

物件種別

新築一戸建て

価格

5,388万円

所在地

横浜市泉区 新橋町 1323-15

交通

いずみ野線「緑園都市」駅 徒歩 15 分

いずみ野線「弥生台」駅 バス停「緑園2丁目」まで 徒歩 9 分 バス利用 8分

土地面積

102.48㎡

建物面積

98.12㎡

間取り

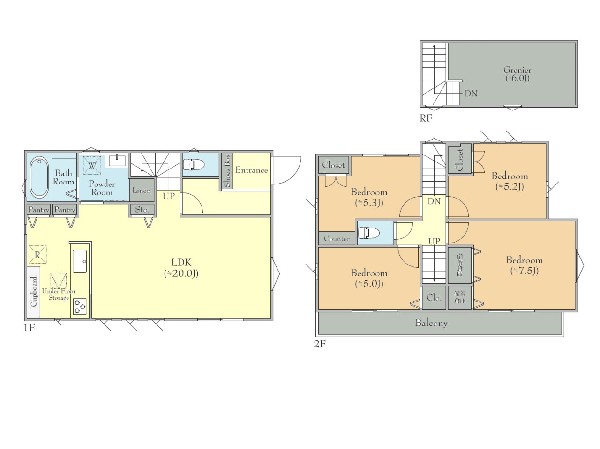
4LDK

前回情報更新日 2026.04.09 | 次回情報更新予定日 2026.04.23

LDK20帖以上

床暖房

角地限定

日当たり良好

この物件のココがオススメ!

相鉄いずみ野線「緑園都市」駅から徒歩15分。南東角地につき陽当たり良好。閑静な住宅地。約20帖LDKは対面式キッチン・リビングイン階段で、ご家族での会話が弾みます。

  • システムキッチン
  • ガス3口
  • 対面キッチン
  • 食器洗い機付き
  • ユニットバス

お気軽にどうぞ!

お気に入りに追加済み

所在地マップ

間取り

お気軽にどうぞ!

お気に入りに追加済み

ローンシミュレーション

頭金・金利の場合

この物件の月々のお支払額

125,924

ボーナス時(年2回)お支払額

150,000

安全性をチェック! 年収に対する返済比率

- %

※会員登録し、詳細情報を記入されますと、全ての物件で自動的に金額が表示され、大変便利です。

※まだ会員登録をされていない方は、下記チェック欄をご記入ください。

※上記計算は物件価格 5,388万円+諸経費 8%込みの金額による結果となります。

※返済金額はあくまでも目安です。

お客様の条件からシミュレーションするには?

会員登録してローン情報を入力しておくと全ての物件に対してローンシミュレーションを表示できます。

お気軽にどうぞ!

お気に入りに追加済み

詳細情報

学区

新橋小学校

岡津中学校

用途地域

第一種住居

地目

宅地

建ぺい率

60%

容積率

160%

駐車場

有り カースペース

接道

4.5m4.0m

権利

所有権

私道面積

無し

セットバック

無し

建物構造

木造

建物階数

2階

築年月

2026/03

入居日

2026/05

建築確認番号

第25UDI1K建00429号

都市計画

市街化区域

取引態様

仲介

物件番号

47472

設備

都市ガス、公営水道、公共下水、緑豊かな住宅地、閑静な住宅地、角地、南側道路面す、隣家との間隔が大きい、2沿線以上利用可、公園5分以内、コンビニ5分以内、対面キッチン、都市ガス、システムキッチン、ガス3口、対面キッチン、食器洗い機付き、浄水器、I型キッチン、ユニットバス、追い焚き、浴室乾燥機、ウォシュレット、トイレ2ヶ所、浴室1坪以上、浴室に窓、暖房便座、セカンド洗面台、バルコニー、バルコニー2面、南面バルコニー、2階建、LDK20畳以上、採光2面、フローリング、リビング階段、クローゼット、収納、下駄箱、シャンプドレッサー付き、洗面ボウル2ヶ所、フラット35Sに対応、モニタ付きインターフォン、インターフォン、24時間換気システム、建物10年保証

こだわり

床暖房、食器洗い洗浄乾燥機、大人の二人暮らし、おしゃれイメージな街に住む、LDKは1階に、2階建て住宅限定、リビングイン階段、LDK20帖以上、対面キッチン、浴室1坪以上、コンビニ10分以内、保育園10分以内、幼稚園10分以内、公園10分以内、都市ガス、フラット35利用可、隣家との間隔たっぷり、角地限定、日当たり良好、南道路限定

特記事項

不整形地:有/隅切り:有/宅地造成工事規制区域:有/高度地区:有/準防火地域:有/日影制限:有/敷地面積最低限度:有/高さ限度:有/その他制限事項:建築基準法第22条区域 第二用途地域:第一種低層住居専用地域(建ぺい率50%、容積率80%)別途私道通行承諾書有(私道所有者1名不明のため、その方の承諾書は取得できません。)北側前面道路に電柱・支柱・カーブミラーがあります。移設や撤去はできません。 過小宅地。

備考

相鉄いずみ野線「緑園都市」駅から徒歩15分。南東角地につき陽当たり良好。閑静な住宅地。約20帖LDKは対面式キッチン・リビングイン階段で、ご家族での会話が弾みます。

この一戸建てを見ている人におすすめの物件

お気軽にどうぞ!

お気に入りに追加済み

loading...