建物完成しました! 今週末内覧会開催中!「希望ケ丘」駅徒歩11分 新築一戸建て(2) 対面キッチン

物件種別

新築一戸建て

価格

4,980万円

所在地

横浜市旭区 中尾1丁目 19-15

交通

相模鉄道線「希望ヶ丘」駅 徒歩 11 分

相模鉄道線「二俣川」駅 徒歩 19 分

土地面積

100.12㎡

建物面積

92.96㎡

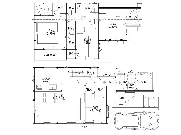
間取り

4LDK

前回情報更新日 2025.10.16 | 次回情報更新予定日 2025.10.30

断熱に配慮された建物

道路広々(5m以上)

1 | 18

この物件のココがオススメ!

相鉄線「希望ケ丘」駅から徒歩11分。LDKは対面キッチン・リビングイン階段なので、ご家族とのコミュニケーションがとりやすいですね。南面バルコニー付。

  • システムキッチン
  • ガス3口
  • 対面キッチン
  • 食器洗い機付き
  • ユニットバス

お気軽にどうぞ!

お気に入りに追加済み

所在地マップ

間取り

お気軽にどうぞ!

お気に入りに追加済み

ローンシミュレーション

頭金・金利の場合

この物件の月々のお支払額

114,486

ボーナス時(年2回)お支払額

150,000

安全性をチェック! 年収に対する返済比率

- %

※会員登録し、詳細情報を記入されますと、全ての物件で自動的に金額が表示され、大変便利です。

※まだ会員登録をされていない方は、下記チェック欄をご記入ください。

※上記計算は物件価格 4,980万円+諸経費 8%込みの金額による結果となります。

※返済金額はあくまでも目安です。

お客様の条件からシミュレーションするには?

会員登録してローン情報を入力しておくと全ての物件に対してローンシミュレーションを表示できます。

周辺環境

中尾保育園(中尾保育園まで184m)

幼稚園・保育園

周辺環境:中尾保育園(中尾保育園まで184m)(184m)

横浜市立中尾小学校(横浜市立中尾小学校まで657m)

小学校

周辺環境:横浜市立中尾小学校(横浜市立中尾小学校まで657m)(657m)

東希望が丘ふれあいひろば公園(東希望が丘ふれあいひろば公園まで250m)

公園

周辺環境:東希望が丘ふれあいひろば公園(東希望が丘ふれあいひろば公園まで250m)(250m)

そうてつローゼン希望が丘店(そうてつローゼン希望が丘店まで762m)

スーパー

周辺環境:そうてつローゼン希望が丘店(そうてつローゼン希望が丘店まで762m)(762m)

地方独立行政法人神奈川県立病院機構神奈川県立がんセンター(地方独立行政法人神奈川県立病院機構神奈川県立がんセンターまで1110m)

病院

周辺環境:地方独立行政法人神奈川県立病院機構神奈川県立がんセンター(地方独立行政法人神奈川県立病院機構神奈川県立がんセンターまで1110m)(1110m)

横浜市立希望が丘中学校(横浜市立希望が丘中学校まで714m)

中学校

周辺環境:横浜市立希望が丘中学校(横浜市立希望が丘中学校まで714m)(714m)

お気軽にどうぞ!

お気に入りに追加済み

詳細情報

学区

中尾小学校

希望ケ丘中学校

用途地域

第一種低層住居専用

地目

宅地

建ぺい率

50%

容積率

100%

駐車場

有り カースペース

接道

北東 6.5m

権利

所有権

私道面積

無し

セットバック

無し

建物構造

木造

建物階数

2階

築年月

2025/08

入居日

即時

都市計画

市街化区域

取引態様

仲介

物件番号

47542-2

設備

都市ガス、公営水道、公共下水、駐車場1台、緑豊かな住宅地、閑静な住宅地、前道6m以上、小学校徒歩10分以内、保育施設・幼稚園5分以内、公園5分以内、対面キッチン、都市ガス、システムキッチン、ガス3口、対面キッチン、食器洗い機付き、浄水器、I型キッチン、ユニットバス、追い焚き、浴室乾燥機、ウォシュレット、トイレ2ヶ所、浴室に窓、暖房便座、バルコニー、南面バルコニー、2階建、LDK15畳以上、和室、採光3面、全室2面採光、全室東南向き、フローリング、リビング階段、クローゼット、収納、床下収納、下駄箱、全居室収納、シャンプドレッサー付き、フラット35Sに対応、モニタ付きインターフォン、複層ガラス、建物10年保証

こだわり

断熱に配慮された建物、食器洗い洗浄乾燥機、急行電車でスピード通勤、大人の二人暮らし、LDKは1階に、2階建て住宅限定、リビングイン階段、LDK15帖以上、和室有り、対面キッチン、コンビニ10分以内、小児科医院10分以内、保育園10分以内、幼稚園10分以内、公園10分以内、都市ガス、道路広々(5m以上)

特記事項

崖下につき建築制限:有/崖上につき建築制限:有/宅地造成工事規制区域:有/高度地区:有/準防火地域:有/特別用途制限地域:有/日影制限:有/敷地内段差:有/敷地面積最低限度:有/高さ限度:有/その他制限事項:建築基準法第22条による区域 建物建築・再建築の際、深基礎、基礎杭、擁壁の補修・再構築、外壁後退等の対策が必要となる場合有。建物建築・再建築の際、防護壁の設置、高基礎、外壁後退等の対策が必要となる場合有。傾斜地含。

備考

相鉄線「希望ケ丘」駅から徒歩11分。LDKは対面キッチン・リビングイン階段なので、ご家族とのコミュニケーションがとりやすいですね。南面バルコニー付。

この一戸建てを見ている人におすすめの物件

お気軽にどうぞ!

お気に入りに追加済み

loading...