今週末モデルハウス見学会開催中!「瀬谷」駅利用 新築一戸建て(1) 対面キッチン・リビングイン階段

物件種別

新築一戸建て

価格

3,880万円

所在地

横浜市瀬谷区 宮沢2丁目 6-9

交通

相模鉄道線「瀬谷」駅 徒歩 26 分

相模鉄道線「三ッ境」駅 バス停「南台B会場」まで 徒歩 5 分 バス利用 7分

土地面積

101.86㎡

建物面積

77.76㎡

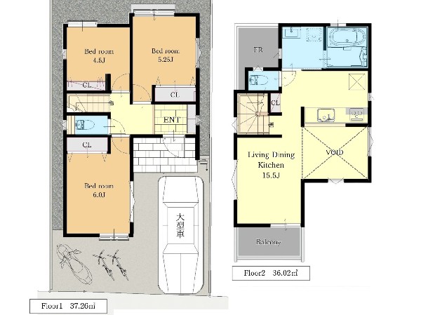
間取り

2SLDK

前回情報更新日 2025.11.27 | 次回情報更新予定日 2025.12.11

断熱に配慮された建物

カースペース2台

1 | 2

この物件のココがオススメ!

相鉄線「瀬谷」駅利用。帖LDKは対面キッチン・リビングイン階段なので、ご家族とのコミュニケーションがとりやすいですね。全居室収納付。浴室乾燥機完備。

  • システムキッチン
  • ガス3口
  • 対面キッチン
  • ユニットバス
  • 追い焚き

お気軽にどうぞ!

お気に入りに追加済み

所在地マップ

間取り

お気軽にどうぞ!

お気に入りに追加済み

ローンシミュレーション

頭金・金利の場合

この物件の月々のお支払額

83,673

ボーナス時(年2回)お支払額

150,000

安全性をチェック! 年収に対する返済比率

- %

※会員登録し、詳細情報を記入されますと、全ての物件で自動的に金額が表示され、大変便利です。

※まだ会員登録をされていない方は、下記チェック欄をご記入ください。

※上記計算は物件価格 3,880万円+諸経費 8%込みの金額による結果となります。

※返済金額はあくまでも目安です。

お客様の条件からシミュレーションするには?

会員登録してローン情報を入力しておくと全ての物件に対してローンシミュレーションを表示できます。

お気軽にどうぞ!

お気に入りに追加済み

詳細情報

学区

南瀬谷小学校

南瀬谷中学校

用途地域

第一種低層住居専用

地目

宅地

建ぺい率

50%

容積率

100%

駐車場

有り カースペース

接道

4.0m

権利

所有権

私道面積

無し

セットバック

無し

建物構造

木造

建物階数

2階

築年月

2025/11

入居日

2025/12

建築確認番号

第KBI-SGM25-10-2777号

都市計画

市街化区域

取引態様

仲介

物件番号

47608-1

設備

都市ガス、公営水道、公共下水、駐車場2台以上、緑豊かな住宅地、閑静な住宅地、小学校徒歩10分以内、中学校徒歩10分以内、公園5分以内、コンビニ5分以内、ウォークインクローゼット、対面キッチン、都市ガス、システムキッチン、ガス3口、対面キッチン、I型キッチン、ユニットバス、追い焚き、浴室乾燥機、ウォシュレット、トイレ2ヶ所、浴室に窓、暖房便座、浴室暖房、バルコニー、ワイドバルコニー、2階建、LDK15畳以上、採光2面、フローリング、リビング階段、クローゼット、ウォークインクローゼット、収納、床下収納、下駄箱、全居室収納、シャンプドレッサー付き、フラット35Sに対応、モニタ付きインターフォン、全居室複層ガラスか複層サッシ、24時間換気システム、建物10年保証

こだわり

敷地延長(旗竿地)、断熱に配慮された建物、浴室換気乾燥暖房機、急行電車でスピード通勤、子供の多い街に住む、大人の二人暮らし、LDKは1階に、2階建て住宅限定、ウォークインクローゼット、リビングイン階段、LDK15帖以上、広々バルコニー、対面キッチン、小学校10分以内、コンビニ10分以内、保育園10分以内、公園10分以内、都市ガス、フラット35利用可、カースペース2台

特記事項

不整形地:有/宅地造成工事規制区域:有/高度地区:有/準防火地域:有/日影制限:有/敷地面積最低限度:有/高さ限度:有/その他制限事項:建築基準法第22条による区域。

備考

相鉄線「瀬谷」駅利用。帖LDKは対面キッチン・リビングイン階段なので、ご家族とのコミュニケーションがとりやすいですね。全居室収納付。浴室乾燥機完備。

この一戸建てを見ている人におすすめの物件

お気軽にどうぞ!

お気に入りに追加済み

loading...