今週末モデルハウス見学会開催中!「上大岡」駅利用 新築一戸建て(1) リビング吹抜

物件種別

新築一戸建て

価格

5,390万円

所在地

横浜市港南区 芹が谷3丁目 10-6

交通

京浜急行本線「上大岡」駅 バス停「芹が谷」まで 徒歩 5 分 バス利用 14分

横須賀線「東戸塚」駅 バス停「芹が谷」まで 徒歩 5 分 バス利用 14分

土地面積

167.88㎡

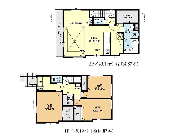
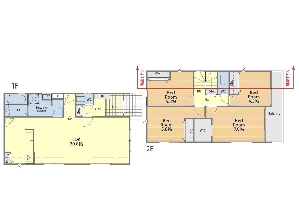
建物面積

109.30㎡

間取り

3SLDK

前回情報更新日 2025.11.27 | 次回情報更新予定日 2025.12.11

シューズインクローク

カースペース3台以上

角地限定

日当たり良好

1 | 2

この物件のココがオススメ!

京急線・BL「上大岡」駅、横須賀線「東戸塚」駅利用。リビングは開放的な吹抜け。玄関隣接のSIC、大物の収納に便利なWIC完備。南面ワイドバルコニー付。

  • システムキッチン
  • ガス3口
  • 対面キッチン
  • ユニットバス
  • 追い焚き

お気軽にどうぞ!

お気に入りに追加済み

所在地マップ

間取り

お気軽にどうぞ!

お気に入りに追加済み

ローンシミュレーション

頭金・金利の場合

この物件の月々のお支払額

125,976

ボーナス時(年2回)お支払額

150,000

安全性をチェック! 年収に対する返済比率

- %

※会員登録し、詳細情報を記入されますと、全ての物件で自動的に金額が表示され、大変便利です。

※まだ会員登録をされていない方は、下記チェック欄をご記入ください。

※上記計算は物件価格 5,390万円+諸経費 8%込みの金額による結果となります。

※返済金額はあくまでも目安です。

お客様の条件からシミュレーションするには?

会員登録してローン情報を入力しておくと全ての物件に対してローンシミュレーションを表示できます。

お気軽にどうぞ!

お気に入りに追加済み

詳細情報

学区

芹が谷小学校

芹が谷中学校

用途地域

第一種低層住居専用

地目

宅地

建ぺい率

50%

容積率

80%

駐車場

有り カースペース

接道

南西 4.0m 北西 4.0m

権利

所有権

私道面積

無し

セットバック

無し

建物構造

木造

建物階数

2階

築年月

2025/12

入居日

2026/01

建築確認番号

第KAK建確01097号

都市計画

市街化区域

取引態様

仲介

物件番号

47786-1

設備

都市ガス、公営水道、公共下水、駐車場2台以上、緑豊かな住宅地、閑静な住宅地、角地、南側道路面す、隣家との間隔が大きい、スーパーが近い(10分以内)、2沿線以上利用可、小学校徒歩10分以内、中学校徒歩10分以内、公園5分以内、コンビニ5分以内、シューズインクローク、ウォークインクローゼット、対面キッチン、パントリー、都市ガス、システムキッチン、ガス3口、対面キッチン、I型キッチン、パントリー(食器・食品の収納庫)、ユニットバス、追い焚き、ウォシュレット、トイレ2ヶ所、浴室に窓、暖房便座、バルコニー、ワイドバルコニー、南面バルコニー、2階建、LDK18畳以上、採光2面、フローリング、リビング階段、クローゼット、ウォークインクローゼット、収納、床下収納、全居室収納、シューズインクローク、シャンプドレッサー付き、フラット35Sに対応、モニタ付きインターフォン、24時間換気システム、建物10年保証

こだわり

急行電車でスピード通勤、2沿線利用であんしん通勤、子供の多い街に住む、大人の二人暮らし、LDKは1階に、2階建て住宅限定、シューズインクローク、ウォークインクローゼット、リビングイン階段、LDK18帖以上、吹き抜け有り、広々バルコニー、対面キッチン、パントリー、小学校10分以内、スーパー10分以内、コンビニ10分以内、保育園10分以内、幼稚園10分以内、公園10分以内、都市ガス、フラット35利用可、カースペース3台以上、隣家との間隔たっぷり、角地限定、日当たり良好

特記事項

崖上につき建築制限:有/隅切り:有/宅地造成工事規制区域:有/高度地区:有/準防火地域:有/日影制限:有/敷地面積最低限度:有/高さ限度:有/その他制限事項:建築基準法第22条による区域 建物建築・再建築の際、深基礎、基礎杭、擁壁の補修・再構築、外壁後退等の対策が必要となる場合有。

備考

京急線・BL「上大岡」駅、横須賀線「東戸塚」駅利用。リビングは開放的な吹抜け。玄関隣接のSIC、大物の収納に便利なWIC完備。南面ワイドバルコニー付。

この一戸建てを見ている人におすすめの物件

お気軽にどうぞ!

お気に入りに追加済み

loading...