値下げしました!建物完成しました!「洋光台」駅利用 新築一戸建て(1) 角地 敷地150平米以上

物件種別

新築一戸建て

価格

5,499万円

所在地

横浜市港南区 日野中央2丁目 23

交通

根岸線「洋光台」駅 徒歩 20 分

京浜急行本線「上大岡」駅 バス停「洋光台北口」まで 徒歩 7 分 バス利用 13分

土地面積

150.52㎡

建物面積

105.78㎡

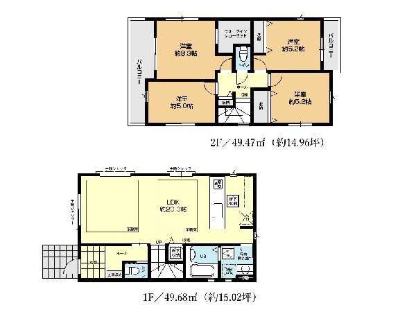
間取り

4LDK

前回情報更新日 2026.01.15 | 次回情報更新予定日 2026.01.29

省エネに配慮された建物

カースペース2台

LDK20帖以上

床暖房

この物件のココがオススメ!

JR根岸線「洋光台」駅利用。閑静な住宅地。敷地面積150平米以上。広々LDKは会話が弾む対面キッチン。食洗機、床暖房他、設備充実。カースペース並列2台。

  • システムキッチン
  • ガス3口
  • 対面キッチン
  • 食器洗い機付き
  • ユニットバス

お気軽にどうぞ!

お気に入りに追加済み

所在地マップ

間取り

お気軽にどうぞ!

お気に入りに追加済み

ローンシミュレーション

頭金・金利の場合

この物件の月々のお支払額

129,010

ボーナス時(年2回)お支払額

150,000

安全性をチェック! 年収に対する返済比率

- %

※会員登録し、詳細情報を記入されますと、全ての物件で自動的に金額が表示され、大変便利です。

※まだ会員登録をされていない方は、下記チェック欄をご記入ください。

※上記計算は物件価格 5,499万円+諸経費 8%込みの金額による結果となります。

※返済金額はあくまでも目安です。

お客様の条件からシミュレーションするには?

会員登録してローン情報を入力しておくと全ての物件に対してローンシミュレーションを表示できます。

お気軽にどうぞ!

お気に入りに追加済み

詳細情報

学区

日野小学校

日野南中学校

用途地域

第一種低層住居専用

地目

宅地

建ぺい率

50%

容積率

80%

駐車場

有り カースペース

接道

6.0m6.0m

権利

所有権

私道面積

無し

セットバック

無し

建物構造

木造

建物階数

2階

築年月

2025/09

入居日

即時

都市計画

市街化区域

取引態様

仲介

物件番号

47769-1

設備

都市ガス、公営水道、公共下水、駐車場2台以上、緑豊かな住宅地、閑静な住宅地、角地、前道6m以上、2沿線以上利用可、小学校徒歩10分以内、保育施設・幼稚園5分以内、公園5分以内、ウォークインクローゼット、対面キッチン、都市ガス、システムキッチン、ガス3口、対面キッチン、食器洗い機付き、浄水器、I型キッチン、ユニットバス、追い焚き、浴室乾燥機、ウォシュレット、トイレ2ヶ所、暖房便座、バルコニー、南面バルコニー、2階建、LDK20畳以上、省エネ給湯器、採光2面、全室2面採光、フローリング、リビング階段、クローゼット、ウォークインクローゼット、収納、床下収納、下駄箱、シャンプドレッサー付き、フラット35Sに対応、モニタ付きインターフォン、インターフォン、複層ガラス、24時間換気システム、建物10年保証

こだわり

省エネに配慮された建物、床暖房、食器洗い洗浄乾燥機、浴室換気乾燥暖房機、LDKは1階に、2階建て住宅限定、ウォークインクローゼット、リビングイン階段、LDK20帖以上、主寝室 8帖以上、対面キッチン、小学校10分以内、大規模公園10分以内、有料道路インター2キロ以内、大型商業施設15分以内、コンビニ10分以内、保育園10分以内、幼稚園10分以内、公園10分以内、都市ガス、フラット35利用可、カースペース2台、隣家との間隔たっぷり、角地限定、道路広々(5m以上)、日当たり良好

特記事項

隅切り:有/宅地造成工事規制区域:有/高度地区:有/日影制限:有/敷地面積最低限度:有/高さ限度:有/その他制限事項:港南日野地区地区計画 建築基準法第22条区域 横浜市建築基準条例第3条による制限有 建物建築・再建築の際、深基礎、基礎杭、擁壁の補修・再構築、外壁後退等の対策が必要となる場合があります。

備考

JR根岸線「洋光台」駅利用。閑静な住宅地。敷地面積150平米以上。広々LDKは会話が弾む対面キッチン。食洗機、床暖房他、設備充実。カースペース並列2台。

この一戸建てを見ている人におすすめの物件

お気軽にどうぞ!

お気に入りに追加済み

loading...