建物完成しました! 今週末内覧会開催中!「保土ヶ谷」駅利用 新築一戸建て(2) 南道路に接道

物件種別

新築一戸建て

価格

3,590万円

所在地

横浜市保土ケ谷区 法泉3丁目 18

交通

横須賀線「保土ヶ谷」駅 バス停「法泉下」まで 徒歩 2 分 バス利用 13分

相模鉄道線「二俣川」駅 バス停「法泉下」まで 徒歩 2 分 バス利用 29分

土地面積

95.57㎡

建物面積

95.84㎡

間取り

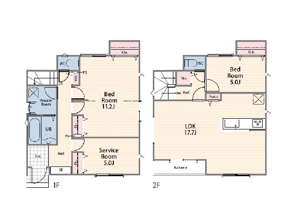
2LDK+2S

前回情報更新日 2026.01.29 | 次回情報更新予定日 2026.02.12

カースペース2台

1 | 20

この物件のココがオススメ!

JR「保土ヶ谷」駅利用。閑静な住環境。ご家族との会話が弾む対面キッチンのLDK。食洗機・浴室乾燥機他設備充実のお住まいです。

  • システムキッチン
  • ガス3口
  • 対面キッチン
  • 食器洗い機付き
  • ユニットバス

お気軽にどうぞ!

お気に入りに追加済み

所在地マップ

間取り

お気軽にどうぞ!

お気に入りに追加済み

ローンシミュレーション

頭金・金利の場合

この物件の月々のお支払額

75,555

ボーナス時(年2回)お支払額

150,000

安全性をチェック! 年収に対する返済比率

- %

※会員登録し、詳細情報を記入されますと、全ての物件で自動的に金額が表示され、大変便利です。

※まだ会員登録をされていない方は、下記チェック欄をご記入ください。

※上記計算は物件価格 3,590万円+諸経費 8%込みの金額による結果となります。

※返済金額はあくまでも目安です。

お客様の条件からシミュレーションするには?

会員登録してローン情報を入力しておくと全ての物件に対してローンシミュレーションを表示できます。

周辺環境

さかいぎ幼稚園

幼稚園・保育園

周辺環境:さかいぎ幼稚園(1200m)

サミット権太坂スクエア店

スーパー

周辺環境:サミット権太坂スクエア店(1400m)

境木保育園

幼稚園・保育園

周辺環境:境木保育園(550m)

関小児科医院

病院

周辺環境:関小児科医院(600m)

オーロラモール

ショッピングセンター

周辺環境:オーロラモール(2000m)

横浜市立橘中学校

中学校

周辺環境:横浜市立橘中学校(2100m)

法泉公園

公園

周辺環境:法泉公園(450m)

横浜市立初音が丘小学校

小学校

周辺環境:横浜市立初音が丘小学校(1300m)

境木第四公園

公園

周辺環境:境木第四公園(270m)

お気軽にどうぞ!

お気に入りに追加済み

詳細情報

学区

初音が丘小学校

橘中学校

用途地域

第一種住居

地目

宅地

建ぺい率

60%

容積率

160%

駐車場

有り カースペース

接道

4.0m

権利

所有権

私道面積

無し

セットバック

無し

建物構造

木造

建物階数

2階

築年月

2026/01

入居日

2026/02

建築確認番号

第2025SBC-確00335H号

都市計画

市街化区域

取引態様

仲介

物件番号

48133-2

設備

都市ガス、公営水道、公共下水、緑豊かな住宅地、閑静な住宅地、南側道路面す、2沿線以上利用可、保育施設・幼稚園5分以内、駐車場1台、対面キッチン、パントリー、都市ガス、システムキッチン、ガス3口、対面キッチン、食器洗い機付き、I型キッチン、パントリー(食器・食品の収納庫)、ユニットバス、浴室乾燥機、ウォシュレット、トイレ2ヶ所、浴室に窓、バルコニー、南面バルコニー、2階建、LDK15畳以上、全室2面採光、フローリング、クローゼット、収納、床下収納、下駄箱、全居室収納、シューズインクローク、シャンプドレッサー付き、モニタ付きインターフォン、24時間換気システム、建物10年保証

こだわり

道路狭い(4メートル未満)、敷地延長(旗竿地)、食器洗い洗浄乾燥機、浴室換気乾燥暖房機、2階建て住宅限定、LDKは2階に、LDK15帖以上、対面キッチン、パントリー、有料道路インター2キロ以内、コンビニ10分以内、小児科医院10分以内、保育園10分以内、公園10分以内、都市ガス、カースペース2台

特記事項

不整形地:有/宅地造成工事規制区域:有/高度地区:有/準防火地域:有/日影制限:有/その他制限事項:建築基準法第22条区域 別途私道持分1号棟から4号棟で34.29平米有。

備考

JR「保土ヶ谷」駅利用。閑静な住環境。ご家族との会話が弾む対面キッチンのLDK。食洗機・浴室乾燥機他設備充実のお住まいです。

この一戸建てを見ている人におすすめの物件

お気軽にどうぞ!

お気に入りに追加済み

loading...