今週末モデルハウス見学会開催中!「高田」駅徒歩12分 新築一戸建て(2) カースペース2台

物件種別

新築一戸建て

価格

6,990万円

所在地

横浜市港北区 新吉田東1丁目 19-14

交通

グリーンライン「高田」駅 徒歩 12 分

東急東横線「綱島」駅 徒歩 26 分

土地面積

145.72㎡

建物面積

106.82㎡

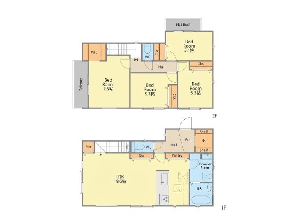
間取り

4LDK

前回情報更新日 2026.04.16 | 次回情報更新予定日 2026.04.30

シューズインクローク

カースペース2台

1 | 8

この物件のココがオススメ!

グリーンライン「高田」駅徒歩12分。緑豊かで閑静な住宅地。4LDKのゆとりの間取り、全居室収納付き。カップボード、パントリー、ウォークインクローゼット等設備充実。

  • システムキッチン
  • ガス3口
  • 対面キッチン
  • ユニットバス
  • 追い焚き

お気軽にどうぞ!

お気に入りに追加済み

所在地マップ

間取り

お気軽にどうぞ!

お気に入りに追加済み

ローンシミュレーション

頭金・金利の場合

この物件の月々のお支払額

170,794

ボーナス時(年2回)お支払額

150,000

安全性をチェック! 年収に対する返済比率

- %

※会員登録し、詳細情報を記入されますと、全ての物件で自動的に金額が表示され、大変便利です。

※まだ会員登録をされていない方は、下記チェック欄をご記入ください。

※上記計算は物件価格 6,990万円+諸経費 8%込みの金額による結果となります。

※返済金額はあくまでも目安です。

お客様の条件からシミュレーションするには?

会員登録してローン情報を入力しておくと全ての物件に対してローンシミュレーションを表示できます。

周辺環境

いなげや横浜綱島店(いなげや横浜綱島店まで800m)

スーパー

周辺環境:いなげや横浜綱島店(いなげや横浜綱島店まで800m)(800m)

オーケー新吉田店(オーケー新吉田店まで700m)

スーパー

周辺環境:オーケー新吉田店(オーケー新吉田店まで700m)(700m)

しんよしだ幼稚園(しんよしだ幼稚園まで750m)

幼稚園・保育園

周辺環境:しんよしだ幼稚園(しんよしだ幼稚園まで750m)(750m)

横浜市立新吉田小学校(横浜市立新吉田小学校まで850m)

小学校

周辺環境:横浜市立新吉田小学校(横浜市立新吉田小学校まで850m)(850m)

横浜市立新田中学校(横浜市立新田中学校まで500m)

中学校

周辺環境:横浜市立新田中学校(横浜市立新田中学校まで500m)(500m)

新吉田第三公園(新吉田第三公園まで450m)

公園

周辺環境:新吉田第三公園(新吉田第三公園まで450m)(450m)

森のエルマー保育園(森のエルマー保育園まで500m)

幼稚園・保育園

周辺環境:森のエルマー保育園(森のエルマー保育園まで500m)(500m)

新吉田第一公園(新吉田第一公園まで850m)

公園

周辺環境:新吉田第一公園(新吉田第一公園まで850m)(850m)

斎藤小児科心とからだのクリニック(斎藤小児科心とからだのクリニックまで900m)

病院

周辺環境:斎藤小児科心とからだのクリニック(斎藤小児科心とからだのクリニックまで900m)(900m)

お気軽にどうぞ!

お気に入りに追加済み

詳細情報

学区

新吉田小学校

新田中学校

用途地域

第一種低層住居専用

地目

宅地

建ぺい率

60%

容積率

100%

駐車場

有り カースペース

接道

4.6m

権利

所有権

私道面積

無し

セットバック

無し

建物構造

木造

建物階数

2階

築年月

2026/07

入居日

2026/08

建築確認番号

第25KAK建確02768号

都市計画

市街化区域

取引態様

仲介

物件番号

48663-2

設備

都市ガス、公営水道、公共下水、駐車場2台以上、緑豊かな住宅地、閑静な住宅地、スーパーが近い(10分以内)、2沿線以上利用可、中学校徒歩10分以内、公園5分以内、システムキッチン、ガス3口、対面キッチン、I型キッチン、パントリー(食器・食品の収納庫)、ユニットバス、追い焚き、ウォシュレット、トイレ2ヶ所、浴室に窓、暖房便座、バルコニー、2階建、LDK18畳以上、採光2面、フローリング、リビング階段、クローゼット、ウォークインクローゼット、収納、床下収納、下駄箱、全居室収納、シューズインクローク、シャンプドレッサー付き、フラット35Sに対応、モニタ付きインターフォン、インターフォン、24時間換気システム、シューズインクローク、ウォークインクローゼット、対面キッチン、パントリー、都市ガス、建物10年保証

こだわり

敷地延長(旗竿地)、LDKは1階に、2階建て住宅限定、シューズインクローク、ウォークインクローゼット、リビングイン階段、LDK18帖以上、対面キッチン、パントリー、スーパー10分以内、コンビニ10分以内、保育園10分以内、幼稚園10分以内、公園10分以内、都市ガス、フラット35利用可、カースペース2台、5棟以上の分譲地

特記事項

不整形地:有/宅地造成工事規制区域:有/高度地区:有/準防火地域:有/日影制限:有/敷地内段差:有/敷地面積最低限度:有/高さ限度:有/その他制限事項:建築基準法第22条区域 横浜市建築基準条例第3条による制限有 建物建築・再建築の際、深基礎、基礎杭、擁壁の補修・再構築、外壁後退等の対策が必要となる場合があります 建物建築・再建築の際、防護壁の設置、高基礎、外壁後退等の対策が必要となる場合があります 傾斜地有。

備考

グリーンライン「高田」駅徒歩12分。緑豊かで閑静な住宅地。4LDKのゆとりの間取り、全居室収納付き。カップボード、パントリー、ウォークインクローゼット等設備充実。

この一戸建てを見ている人におすすめの物件

お気軽にどうぞ!

お気に入りに追加済み

loading...