今週末モデルハウス見学会開催中!「藤が丘」駅徒歩9分 新築一戸建て(3) 対面キッチン

物件種別

新築一戸建て

価格

6,888万円

所在地

横浜市青葉区 千草台 14

交通

田園都市線「藤が丘」駅 徒歩 9 分

田園都市線「市が尾」駅 徒歩 23 分

土地面積

127.95㎡

建物面積

99.15㎡

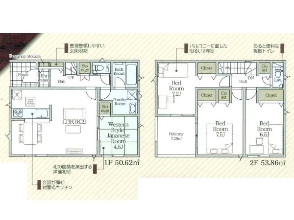
間取り

3SLDK

前回情報更新日 2026.04.17 | 次回情報更新予定日 2026.05.01

断熱に配慮された建物

カースペース2台

LDK20帖以上

道路広々(5m以上)

1 | 6

この物件のココがオススメ!

東急田園都市線「藤が丘」駅徒歩9分。LDKは、ご家族との会話が弾む対面キッチン。食洗機・浴室乾燥機・ペアガラス他設備充実。

  • システムキッチン
  • ガス3口
  • カウンタキッチン
  • 対面キッチン
  • 食器洗い機付き

お気軽にどうぞ!

お気に入りに追加済み

所在地マップ

間取り

お気軽にどうぞ!

お気に入りに追加済み

ローンシミュレーション

頭金・金利の場合

この物件の月々のお支払額

167,941

ボーナス時(年2回)お支払額

150,000

安全性をチェック! 年収に対する返済比率

- %

※会員登録し、詳細情報を記入されますと、全ての物件で自動的に金額が表示され、大変便利です。

※まだ会員登録をされていない方は、下記チェック欄をご記入ください。

※上記計算は物件価格 6,888万円+諸経費 8%込みの金額による結果となります。

※返済金額はあくまでも目安です。

お客様の条件からシミュレーションするには?

会員登録してローン情報を入力しておくと全ての物件に対してローンシミュレーションを表示できます。

周辺環境

横浜市立谷本小学校(横浜市立谷本小学校まで400m)

小学校

周辺環境:横浜市立谷本小学校(横浜市立谷本小学校まで400m)(400m)

藤が丘幼稚園(藤が丘幼稚園まで750m)

幼稚園・保育園

周辺環境:藤が丘幼稚園(藤が丘幼稚園まで750m)(750m)

千草台公園(千草台公園まで99m)

公園

周辺環境:千草台公園(千草台公園まで99m)(99m)

横浜市立緑が丘中学校(横浜市立緑が丘中学校まで750m)

中学校

周辺環境:横浜市立緑が丘中学校(横浜市立緑が丘中学校まで750m)(750m)

ちぐさのもり保育園(ちぐさのもり保育園まで800m)

幼稚園・保育園

周辺環境:ちぐさのもり保育園(ちぐさのもり保育園まで800m)(800m)

荻原医院(荻原医院まで400m)

病院

周辺環境:荻原医院(荻原医院まで400m)(400m)

西友市ヶ尾店(西友市ヶ尾店まで1400m)

スーパー

周辺環境:西友市ヶ尾店(西友市ヶ尾店まで1400m)(1400m)

東急ストア市ヶ尾店(東急ストア市ヶ尾店まで1500m)

スーパー

周辺環境:東急ストア市ヶ尾店(東急ストア市ヶ尾店まで1500m)(1500m)

千草台第三公園(千草台第三公園まで550m)

公園

周辺環境:千草台第三公園(千草台第三公園まで550m)(550m)

お気軽にどうぞ!

お気に入りに追加済み

詳細情報

学区

谷本小学校

緑が丘中学校

用途地域

第一種低層住居専用

地目

宅地

建ぺい率

50%

容積率

80%

駐車場

有り カースペース

接道

北東 5.0m

権利

所有権

私道面積

有 107.00m² 1/6

セットバック

無し

建物構造

木造

建物階数

2階

築年月

2026/08

入居日

2026/09

建築確認番号

第25KAK建確03889号

都市計画

市街化区域

取引態様

仲介

物件番号

48715-3

設備

都市ガス、公営水道、公共下水、外壁サイディング、駐車場2台以上、緑豊かな住宅地、閑静な住宅地、スーパーが近い(10分以内)、小学校徒歩10分以内、中学校徒歩10分以内、対面キッチン、都市ガス、システムキッチン、ガス3口、カウンタキッチン、対面キッチン、食器洗い機付き、勝手口、I型キッチン、ユニットバス、追い焚き、浴室乾燥機、ウォシュレット、トイレ2ヶ所、浴室に窓、暖房便座、浴室暖房、バルコニー、南面バルコニー、2階建、LDK20畳以上、採光2面、フローリング、クローゼット、収納、下駄箱、全居室収納、シャンプドレッサー付き、モニタ付きインターフォン、複層ガラス、建物10年保証

こだわり

敷地延長(旗竿地)、断熱に配慮された建物、食器洗い洗浄乾燥機、浴室換気乾燥暖房機、LDKは1階に、2階建て住宅限定、LDK20帖以上、対面キッチン、小学校10分以内、スーパー10分以内、コンビニ10分以内、小児科医院10分以内、保育園10分以内、幼稚園10分以内、都市ガス、カースペース2台、道路広々(5m以上)

特記事項

不整形地:有/壁面後退:有/宅地造成工事規制区域:有/高度地区:有/日影制限:有/敷地面積最低限度:有/高さ限度:有/その他制限事項:建築基準法第22条による区域。

備考

東急田園都市線「藤が丘」駅徒歩9分。LDKは、ご家族との会話が弾む対面キッチン。食洗機・浴室乾燥機・ペアガラス他設備充実。

この一戸建てを見ている人におすすめの物件

お気軽にどうぞ!

お気に入りに追加済み

loading...