今週末モデルハウス見学会開催中!「京急富岡」駅徒歩9分 新築一戸建て(2)カースペース2台 角地

物件種別

新築一戸建て

価格

5,780万円

所在地

横浜市金沢区 富岡西7丁目 53-33

交通

京浜急行本線「京急富岡」駅 徒歩 9 分

京浜急行本線「能見台」駅 徒歩 13 分

土地面積

125.01㎡

建物面積

98.82㎡

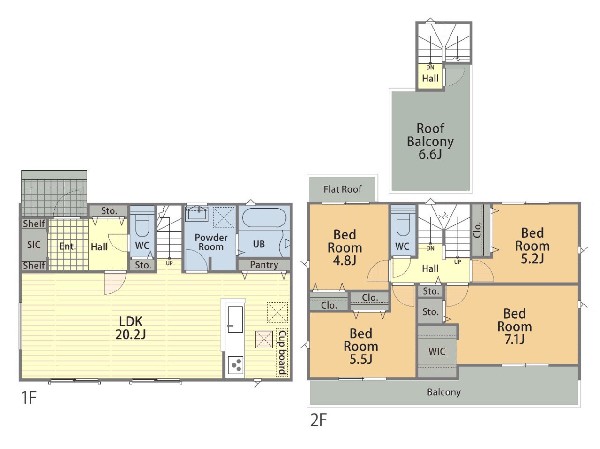
間取り

4LDK

前回情報更新日 2026.04.17 | 次回情報更新予定日 2026.05.01

耐震に配慮された建物

断熱に配慮された建物

長期優良住宅

カースペース2台

1 | 20

この物件のココがオススメ!

京急本線「京急富岡」駅から徒歩9分。角地の為、開放感有。カースペース2台駐車可能。多面採光で通風良好。ペアガラス他、設備充実。全居室収納有。

  • システムキッチン
  • ガス3口
  • 対面キッチン
  • 食器洗い機付き
  • ユニットバス

お気軽にどうぞ!

お気に入りに追加済み

所在地マップ

間取り

お気軽にどうぞ!

お気に入りに追加済み

ローンシミュレーション

頭金・金利の場合

この物件の月々のお支払額

136,895

ボーナス時(年2回)お支払額

150,000

安全性をチェック! 年収に対する返済比率

- %

※会員登録し、詳細情報を記入されますと、全ての物件で自動的に金額が表示され、大変便利です。

※まだ会員登録をされていない方は、下記チェック欄をご記入ください。

※上記計算は物件価格 5,780万円+諸経費 8%込みの金額による結果となります。

※返済金額はあくまでも目安です。

お客様の条件からシミュレーションするには?

会員登録してローン情報を入力しておくと全ての物件に対してローンシミュレーションを表示できます。

周辺環境

横浜市立富岡小学校(横浜市立富岡小学校まで500m)

小学校

周辺環境:横浜市立富岡小学校(横浜市立富岡小学校まで500m)(500m)

横浜市立富岡中学校(横浜市立富岡中学校まで1400m)

中学校

周辺環境:横浜市立富岡中学校(横浜市立富岡中学校まで1400m)(1400m)

富岡第二公園(富岡第二公園まで210m)

公園

周辺環境:富岡第二公園(富岡第二公園まで210m)(210m)

きらら保育園(きらら保育園まで700m)

幼稚園・保育園

周辺環境:きらら保育園(きらら保育園まで700m)(700m)

京急ストア富岡店(京急ストア富岡店まで800m)

スーパー

周辺環境:京急ストア富岡店(京急ストア富岡店まで800m)(800m)

富岡西公園(富岡西公園まで350m)

公園

周辺環境:富岡西公園(富岡西公園まで350m)(350m)

こすもす幼稚園(こすもす幼稚園まで1600m)

幼稚園・保育園

周辺環境:こすもす幼稚園(こすもす幼稚園まで1600m)(1600m)

イトーヨーカドー能見台店(イトーヨーカドー能見台店まで850m)

スーパー

周辺環境:イトーヨーカドー能見台店(イトーヨーカドー能見台店まで850m)(850m)

能見台こどもクリニック(能見台こどもクリニックまで700m)

病院

周辺環境:能見台こどもクリニック(能見台こどもクリニックまで700m)(700m)

お気軽にどうぞ!

お気に入りに追加済み

詳細情報

学区

富岡小学校

富岡中学校

用途地域

第一種低層住居専用

地目

宅地

建ぺい率

40%

容積率

80%

駐車場

有り カースペース

接道

5.0m5.0m

権利

所有権

私道面積

無し

セットバック

無し

建物構造

木造

建物階数

2階

築年月

2026/04

入居日

2026/05

建築確認番号

第R07SHC119049号

都市計画

市街化区域

取引態様

仲介

物件番号

48713-2

設備

都市ガス、公営水道、公共下水、駐車場2台以上、緑豊かな住宅地、閑静な住宅地、角地、スーパーが近い(10分以内)、2沿線以上利用可、小学校徒歩10分以内、公園5分以内、対面キッチン、都市ガス、システムキッチン、ガス3口、対面キッチン、食器洗い機付き、浄水器、I型キッチン、ユニットバス、追い焚き、浴室乾燥機、ウォシュレット、トイレ2ヶ所、浴室に窓、暖房便座、浴室暖房、バルコニー、南面バルコニー、2階建、LDK18畳以上、人感照明センサー、採光3面、全室2面採光、フローリング、クローゼット、収納、床下収納、下駄箱、全居室収納、シャンプドレッサー付き、フラット35Sに対応、モニタ付きインターフォン、複層ガラス、全居室複層ガラスか複層サッシ、24時間換気システム、建物10年保証

こだわり

前面道路急坂、カッコイイ系のこだわり建物、耐震に配慮された建物、断熱に配慮された建物、長期優良住宅、食器洗い洗浄乾燥機、浴室換気乾燥暖房機、2沿線利用であんしん通勤、自然を感じる暮らし、LDKは1階に、2階建て住宅限定、LDK18帖以上、対面キッチン、小学校10分以内、大規模公園10分以内、有料道路インター2キロ以内、スーパー10分以内、コンビニ10分以内、小児科医院10分以内、保育園10分以内、公園10分以内、都市ガス、カースペース2台、隣家との間隔たっぷり、角地限定、道路広々(5m以上)

特記事項

崖上につき建築制限:有/隅切り:有/壁面後退:有/宅地造成工事規制区域:有/高度地区:有/日影制限:有/敷地内段差:有/敷地面積最低限度:有/高さ限度:有/その他制限事項:建築基準法第22条区域 建物建築・再建築の際、深基礎、基礎杭、擁壁の補修・再構築、外壁後退等の対策が必要となる場合有。傾斜地含  。

備考

京急本線「京急富岡」駅から徒歩9分。角地の為、開放感有。カースペース2台駐車可能。多面採光で通風良好。ペアガラス他、設備充実。全居室収納有。

この一戸建てを見ている人におすすめの物件

お気軽にどうぞ!

お気に入りに追加済み

loading...