建物完成しました! 今週末内覧会開催中!「東戸塚」駅利用 新築一戸建て WIC・SIC完備

物件種別

新築一戸建て

価格

5,680万円

所在地

横浜市戸塚区 平戸3丁目 32-6

交通

横須賀線「東戸塚」駅 徒歩 25 分

横須賀線「東戸塚」駅 バス停「境木中学校前」まで 徒歩 4 分 バス利用 10分

土地面積

127.50㎡

建物面積

99.37㎡

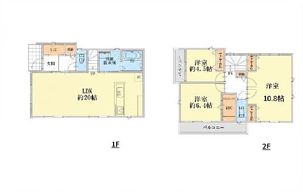
間取り

3LDK

前回情報更新日 2026.04.20 | 次回情報更新予定日 2026.05.04

シューズインクローク

LDK20帖以上

道路広々(5m以上)

1 | 20

この物件のココがオススメ!

横須賀線「東戸塚」駅利用。全室2面採光なので、明るく通風良好。LDKは、対面キッチン・リビングイン階段。玄関隣接のSIC、大物の収納に便利なWIC完備。

  • システムキッチン
  • ガス3口
  • 対面キッチン
  • ユニットバス
  • 追い焚き

お気軽にどうぞ!

お気に入りに追加済み

所在地マップ

間取り

お気軽にどうぞ!

お気に入りに追加済み

ローンシミュレーション

頭金・金利の場合

この物件の月々のお支払額

134,094

ボーナス時(年2回)お支払額

150,000

安全性をチェック! 年収に対する返済比率

- %

※会員登録し、詳細情報を記入されますと、全ての物件で自動的に金額が表示され、大変便利です。

※まだ会員登録をされていない方は、下記チェック欄をご記入ください。

※上記計算は物件価格 5,680万円+諸経費 8%込みの金額による結果となります。

※返済金額はあくまでも目安です。

お客様の条件からシミュレーションするには?

会員登録してローン情報を入力しておくと全ての物件に対してローンシミュレーションを表示できます。

周辺環境

オーロラモール(オーロラモールまで1700m)

ショッピングセンター

周辺環境:オーロラモール(オーロラモールまで1700m)(1700m)

横浜市立境木小学校(横浜市立境木小学校まで420m)

小学校

周辺環境:横浜市立境木小学校(横浜市立境木小学校まで420m)(420m)

横浜市立境木中学校(横浜市立境木中学校まで350m)

中学校

周辺環境:横浜市立境木中学校(横浜市立境木中学校まで350m)(350m)

平戸幼稚園(平戸幼稚園まで450m)

幼稚園・保育園

周辺環境:平戸幼稚園(平戸幼稚園まで450m)(450m)

育生会横浜病院(育生会横浜病院まで800m)

病院

周辺環境:育生会横浜病院(育生会横浜病院まで800m)(800m)

サミット権太坂スクエア店(サミット権太坂スクエア店まで550m)

スーパー

周辺環境:サミット権太坂スクエア店(サミット権太坂スクエア店まで550m)(550m)

あかいとり保育園(あかいとり保育園まで350m)

幼稚園・保育園

周辺環境:あかいとり保育園(あかいとり保育園まで350m)(350m)

横浜市児童遊園地(横浜市児童遊園地まで450m)

公園

周辺環境:横浜市児童遊園地(横浜市児童遊園地まで450m)(m)

三王山公園(三王山公園まで450m)

公園

周辺環境:三王山公園(三王山公園まで450m)(450m)

お気軽にどうぞ!

お気に入りに追加済み

詳細情報

学区

境木小学校

境木中学校

用途地域

第一種低層住居専用

地目

宅地

建ぺい率

50%

容積率

80%

駐車場

有り カースペース

接道

西 6.0m

権利

所有権

私道面積

無し

セットバック

無し

建物構造

木造

建物階数

2階

築年月

2026/02

入居日

即時

都市計画

市街化区域

取引態様

仲介

物件番号

48712

設備

都市ガス、公営水道、公共下水、駐車場1台、緑豊かな住宅地、閑静な住宅地、前道6m以上、スーパーが近い(10分以内)、2沿線以上利用可、総合病院徒歩10分以内、小学校徒歩10分以内、中学校徒歩10分以内、保育施設・幼稚園5分以内、シューズインクローク、ウォークインクローゼット、対面キッチン、都市ガス、システムキッチン、ガス3口、対面キッチン、I型キッチン、ユニットバス、追い焚き、ウォシュレット、トイレ2ヶ所、暖房便座、バルコニー、バルコニー2面、南面バルコニー、2階建、LDK20畳以上、全室2面採光、フローリング、リビング階段、クローゼット、ウォークインクローゼット、収納、全居室収納、シューズインクローク、シャンプドレッサー付き、モニタ付きインターフォン、建物10年保証

こだわり

大人の二人暮らし、LDKは1階に、2階建て住宅限定、シューズインクローク、ウォークインクローゼット、リビングイン階段、LDK20帖以上、主寝室 8帖以上、対面キッチン、小学校10分以内、大規模公園10分以内、スーパー10分以内、コンビニ10分以内、総合病院10分以内、保育園10分以内、幼稚園10分以内、公園10分以内、都市ガス、フラット35利用可、道路広々(5m以上)

特記事項

崖上につき建築制限:有/宅地造成工事規制区域:有/高度地区:有/日影制限:有/敷地内段差:有/敷地面積最低限度:有/高さ限度:有/その他制限事項:建築基準法第22条による区域 建物建築・再建築の際、深基礎、基礎杭、擁壁の補修・再構築、外壁後退等の対策が必要となる場合有。 傾斜地含。

備考

横須賀線「東戸塚」駅利用。全室2面採光なので、明るく通風良好。LDKは、対面キッチン・リビングイン階段。玄関隣接のSIC、大物の収納に便利なWIC完備。

この一戸建てを見ている人におすすめの物件

お気軽にどうぞ!

お気に入りに追加済み

loading...