川崎市宮前区菅生2丁目 一戸建 4680万円 A棟

物件種別

中古一戸建て

価格

4,680万円

所在地

川崎市宮前区 菅生2丁目 5

交通

田園都市線「鷺沼」駅 バス停「蔵敷」まで 徒歩 4 分 バス利用 12分

南武線「武蔵溝ノ口」駅 バス停「蔵敷」まで 徒歩 4 分 バス利用 19分

土地面積

74.25㎡

建物面積

115.72㎡

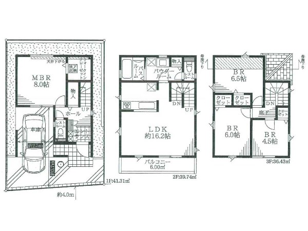
間取り

2LDK+2S

前回情報更新日 2025.10.03 | 次回情報更新予定日 2025.10.17

1 | 8

この物件のココがオススメ!

「武蔵溝ノ口」「あざみ野」等ターミナル駅バス利用可 南道路に面し、陽当たり良好 収納豊富なお住まい

  • システムキッチン
  • ガス3口
  • ユニットバス
  • 追い焚き
  • 浴室乾燥機

お気軽にどうぞ!

お気に入りに追加済み

所在地マップ

間取り

お気軽にどうぞ!

お気に入りに追加済み

ローンシミュレーション

頭金・金利の場合

この物件の月々のお支払額

106,082

ボーナス時(年2回)お支払額

150,000

安全性をチェック! 年収に対する返済比率

- %

※会員登録し、詳細情報を記入されますと、全ての物件で自動的に金額が表示され、大変便利です。

※まだ会員登録をされていない方は、下記チェック欄をご記入ください。

※上記計算は物件価格 4,680万円+諸経費 8%込みの金額による結果となります。

※返済金額はあくまでも目安です。

お客様の条件からシミュレーションするには?

会員登録してローン情報を入力しておくと全ての物件に対してローンシミュレーションを表示できます。

周辺環境

菅生中学校(「教育指導の充実」「豊かな心の育成」など教育目標に掲げる中学校。)

中学校

周辺環境:菅生中学校(「教育指導の充実」「豊かな心の育成」など教育目標に掲げる中学校。)(110m)

菅生第4公園(住宅街らしく近隣には公園が複数ありますので、お子様にも嬉しい住環境です。きっと、お気に入りの公園がみつかるはずです。)

公園

周辺環境:菅生第4公園(住宅街らしく近隣には公園が複数ありますので、お子様にも嬉しい住環境です。きっと、お気に入りの公園がみつかるはずです。)(500m)

食品館あおば初山店(神奈川県を中心に全32店舗を展開するスーパー。会社設立の1986年から積み重ねてきた信頼が神奈川県民には浸透している安できるお店!)

スーパー

周辺環境:食品館あおば初山店(神奈川県を中心に全32店舗を展開するスーパー。会社設立の1986年から積み重ねてきた信頼が神奈川県民には浸透している安できるお店!)(600m)

菅生小学校(2017年に創立50周年を迎えた歴史ある小学校。2019年も115名の1年生が入学し、700人超えの児童を44名の教員が支える学校。)

小学校

周辺環境:菅生小学校(2017年に創立50周年を迎えた歴史ある小学校。2019年も115名の1年生が入学し、700人超えの児童を44名の教員が支える学校。)(600m)

みなみすがお保育園(川崎市の認可保育所で定員90人。すごくお洒落な建物。)

幼稚園・保育園

周辺環境:みなみすがお保育園(川崎市の認可保育所で定員90人。すごくお洒落な建物。)(750m)

聖マリアンナ医科大学病院(診療部門も多く救急外来も受付しているので、ご家族の「いざ」と言う時にも安心です。)

病院

周辺環境:聖マリアンナ医科大学病院(診療部門も多く救急外来も受付しているので、ご家族の「いざ」と言う時にも安心です。)(900m)

マルエツ川崎宮前店(自転車や車で立ち寄りやすい駐車場完備のスーパーです。休日の買い出しや、お出かけ前やお帰りの立ち寄りにも便利です。)

スーパー

周辺環境:マルエツ川崎宮前店(自転車や車で立ち寄りやすい駐車場完備のスーパーです。休日の買い出しや、お出かけ前やお帰りの立ち寄りにも便利です。)(1000m)

菅生緑地(樹木が立ち並び、木漏れ日を愉しめる公園。落ち着きある空間が広がります。)

その他環境写真

周辺環境:菅生緑地(樹木が立ち並び、木漏れ日を愉しめる公園。落ち着きある空間が広がります。)(1200m)

生田緑地南遊園(生田緑地内にある、自然溢れる広場。遊具のある公園が近いというのは、ご家族にとっても嬉しいですね。)

公園

周辺環境:生田緑地南遊園(生田緑地内にある、自然溢れる広場。遊具のある公園が近いというのは、ご家族にとっても嬉しいですね。)(2400m)

お気軽にどうぞ!

お気に入りに追加済み

詳細情報

学区

菅生小学校

菅生中学校

用途地域

第二種中高層住居専用

地目

宅地

建ぺい率

60%

容積率

160%

駐車場

有り ビルトイン車庫

接道

3.6m

権利

所有権

私道面積

有 2.73m² 1/2

セットバック

無し

建物構造

木造

建物階数

3階

築年月

2024/06

入居日

即時

建築確認番号

第KBI-SGM23-10-4961

都市計画

市街化区域

取引態様

仲介

物件番号

A9438-A

設備

都市ガス、公営水道、公共下水、吹き抜け、ビルトインガレージ、駐車場1台、緑豊かな住宅地、閑静な住宅地、都市近郊、南側道路面す、市街地が近い、周辺交通量少なめ、スーパーが近い(10分以内)、始発駅、2沿線以上利用可、小学校徒歩10分以内、中学校徒歩10分以内、公園5分以内、コンビニ5分以内、都市ガス、システムキッチン、ガス3口、浄水器、ユニットバス、追い焚き、浴室乾燥機、ウォシュレット、トイレ2ヶ所、浴室1坪以上、浴室に窓、暖房便座、バルコニー、3階建以上、LDK15畳以上、採光2面、南向き、クローゼット、ウォークインクローゼット、収納、下駄箱、シャンプドレッサー付き、モニタ付きインターフォン、複層ガラス、火災警報器(報知機)、陽当り良好、24時間換気システム、建物10年保証

こだわり

道路狭い(4メートル未満)、急行電車でスピード通勤、自然を感じる暮らし、LDKは2階に、LDK15帖以上、吹き抜け有り、浴室1坪以上、小学校10分以内、コンビニ10分以内、保育園10分以内、公園10分以内、都市ガス、屋根付きカースペース、南道路限定、3階建て以上建築可能地域

特記事項

 景観法:有/宅地造成工事規制区域:有/高度地区:有/日影制限:有/高さ限度:有/建築基準法第22条による区域 間取りSは納戸。

備考

「武蔵溝ノ口」「あざみ野」等ターミナル駅バス利用可 南道路に面し、陽当たり良好 収納豊富なお住まい

この一戸建てを見ている人におすすめの物件

お気軽にどうぞ!

お気に入りに追加済み

loading...