横浜市港北区樽町3丁目 新築一戸建 5780万円 1号棟

物件種別

新築一戸建て

価格

5,780万円

所在地

横浜市港北区 樽町3丁目 10-26-6

交通

東急新横浜線「新綱島」駅 徒歩 16 分

東急東横線「綱島」駅 徒歩 17 分

土地面積

49.42㎡

建物面積

102.67㎡

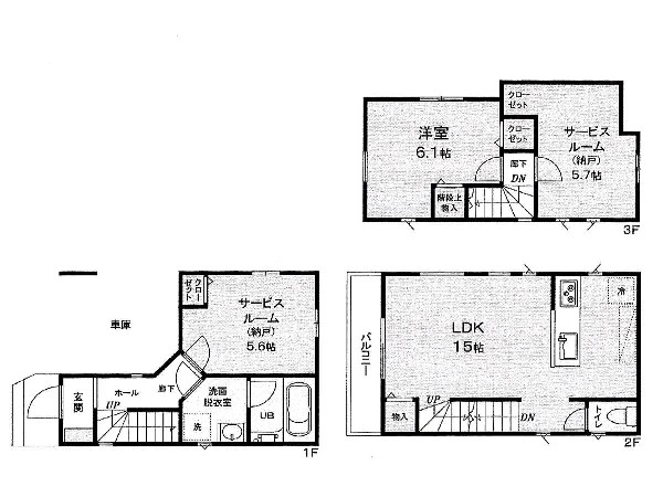
間取り

2SLDK

前回情報更新日 2025.10.03 | 次回情報更新予定日 2025.10.17

スカイバルコニー

道路広々(5m以上)

1 | 4

この物件のココがオススメ!

「綱島」「新綱島」駅徒歩圏 駅徒歩圏内で通勤・通学アクセス便利 整備された鶴見川の自然を身近に感じる

  • システムキッチン
  • ガス3口
  • 対面キッチン
  • 食器洗い機付き
  • ユニットバス

お気軽にどうぞ!

お気に入りに追加済み

所在地マップ

間取り

お気軽にどうぞ!

お気に入りに追加済み

ローンシミュレーション

頭金・金利の場合

この物件の月々のお支払額

136,895

ボーナス時(年2回)お支払額

150,000

安全性をチェック! 年収に対する返済比率

- %

※会員登録し、詳細情報を記入されますと、全ての物件で自動的に金額が表示され、大変便利です。

※まだ会員登録をされていない方は、下記チェック欄をご記入ください。

※上記計算は物件価格 5,780万円+諸経費 8%込みの金額による結果となります。

※返済金額はあくまでも目安です。

お客様の条件からシミュレーションするには?

会員登録してローン情報を入力しておくと全ての物件に対してローンシミュレーションを表示できます。

周辺環境

綱島駅(東横線の通勤特急・急行停車駅で、横浜へ9分、渋谷へ22分、通勤通学にアクセス便利です。近くには「新綱島」駅があります。)

周辺環境:綱島駅(東横線の通勤特急・急行停車駅で、横浜へ9分、渋谷へ22分、通勤通学にアクセス便利です。近くには「新綱島」駅があります。)(1300m)

スーパー ビッグヨーサン綱島樽町店(「お客様の喜ぶ顔が見たい」それがビッグヨーサンの原点です!築地市場と強いパイプがあり、特に鮮魚には定評があります!)

スーパー

周辺環境:スーパー ビッグヨーサン綱島樽町店(「お客様の喜ぶ顔が見たい」それがビッグヨーサンの原点です!築地市場と強いパイプがあり、特に鮮魚には定評があります!)(400m)

トレッサ横浜(トヨタが開発する首都圏初のオートモール複合施設!約220店舗の専門店で構成されたショッピングモール)

ショッピングセンター

周辺環境:トレッサ横浜(トヨタが開発する首都圏初のオートモール複合施設!約220店舗の専門店で構成されたショッピングモール)(750m)

樽町中学校(確かな学力、豊かな心、健やかな体、公共心と社会参画意識、国際社会に寄与する開かれた心、を磨いていく)

中学校

周辺環境:樽町中学校(確かな学力、豊かな心、健やかな体、公共心と社会参画意識、国際社会に寄与する開かれた心、を磨いていく)(700m)

師岡小学校(マンモス校で縦割り学級もあり、人とのつながりも学べます!学校のマスコットキャラクターは「ミマモリッっちゃん」です。)

小学校

周辺環境:師岡小学校(マンモス校で縦割り学級もあり、人とのつながりも学べます!学校のマスコットキャラクターは「ミマモリッっちゃん」です。)(1200m)

お気軽にどうぞ!

お気に入りに追加済み

詳細情報

学区

師岡小学校

樽町中学校

用途地域

準工業

地目

宅地

建ぺい率

60%

容積率

200%

駐車場

有り ビルトイン車庫

接道

北西 5.4m

権利

所有権

私道面積

無し

セットバック

無し

建物構造

木造

建物階数

3階

築年月

2025/04

入居日

即時

建築確認番号

第KBI-YKH24-10-2909号

都市計画

市街化区域

取引態様

仲介

物件番号

A0772-1

設備

都市ガス、公営水道、公共下水、省エネルギー対策、シックハウス対策、ビルトインガレージ、駐車場1台、都市近郊、地盤調査済、市街地が近い、リバーサイド、スーパーが近い(10分以内)、2沿線以上利用可、中学校徒歩10分以内、公園5分以内、コンビニ5分以内、対面キッチン、パントリー、都市ガス、システムキッチン、ガス3口、対面キッチン、食器洗い機付き、浄水器、パントリー(食器・食品の収納庫)、ユニットバス、追い焚き、浴室乾燥機、ウォシュレット、トイレ2ヶ所、浴室1坪以上、浴室に窓、暖房便座、浴室暖房、バルコニー、ルーフバルコニー、3階建以上、LDK18畳以上、省エネ給湯器、全室南向き、南向き、リビング階段、クローゼット、収納、下駄箱、全居室収納、シャンプドレッサー付き、フラット35Sに対応、モニタ付きインターフォン、複層ガラス、火災警報器(報知機)、24時間換気システム、建物10年保証

こだわり

食器洗い洗浄乾燥機、浴室換気乾燥暖房機、運転ラクラク生活、外食を楽しめる生活、大型商業施設のある街に住む、急行電車でスピード通勤、2沿線利用であんしん通勤、自然を感じる暮らし、スカイバルコニー、リビングイン階段、LDKは2階に、LDK18帖以上、広々バルコニー、対面キッチン、浴室1坪以上、パントリー、大規模公園10分以内、大型商業施設15分以内、スーパー10分以内、コンビニ10分以内、小児科医院10分以内、保育園10分以内、公園10分以内、都市ガス、フラット35利用可、道路広々(5m以上)、道路と段差無し、3階建て以上建築可能地域

特記事項

 高度地区:有/準防火地域:有/日影制限:有/間取りSは納戸 建物面積に車庫面積9.74m2含む。

備考

「綱島」「新綱島」駅徒歩圏 駅徒歩圏内で通勤・通学アクセス便利 整備された鶴見川の自然を身近に感じる

この一戸建てを見ている人におすすめの物件

お気軽にどうぞ!

お気に入りに追加済み

loading...