川崎市麻生区王禅寺西8丁目 新築一戸建 4780万円 3号棟

物件種別

新築一戸建て

価格

4,780万円

所在地

川崎市麻生区 王禅寺西8丁目 17-21

交通

小田急線「柿生」駅 徒歩 15 分

小田急線「新百合ヶ丘」駅 バス停「真福寺」まで 徒歩 1 分 バス利用 13分

土地面積

71.01㎡

建物面積

115.71㎡

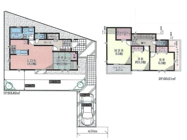
間取り

4LDK

前回情報更新日 2025.10.09 | 次回情報更新予定日 2025.10.23

建売だけど一味違うこだわり建物

耐震に配慮された建物

断熱に配慮された建物

省エネに配慮された建物

1 | 9

この物件のココがオススメ!

「柿生」駅徒歩15分 浴室TVやセカンド洗面、リネン庫などあったら嬉しい設備・仕様が標準装備 4LDK

  • システムキッチン
  • ガス3口
  • カウンタキッチン
  • 対面キッチン
  • 食器洗い機付き

お気軽にどうぞ!

お気に入りに追加済み

所在地マップ

間取り

お気軽にどうぞ!

お気に入りに追加済み

ローンシミュレーション

頭金・金利の場合

この物件の月々のお支払額

108,883

ボーナス時(年2回)お支払額

150,000

安全性をチェック! 年収に対する返済比率

- %

※会員登録し、詳細情報を記入されますと、全ての物件で自動的に金額が表示され、大変便利です。

※まだ会員登録をされていない方は、下記チェック欄をご記入ください。

※上記計算は物件価格 4,780万円+諸経費 8%込みの金額による結果となります。

※返済金額はあくまでも目安です。

お客様の条件からシミュレーションするには?

会員登録してローン情報を入力しておくと全ての物件に対してローンシミュレーションを表示できます。

周辺環境

柿生駅(長閑な雰囲気ですが、駅前にはスーパーや銀行等生活に必要な施設が揃っています。)

周辺環境:柿生駅(長閑な雰囲気ですが、駅前にはスーパーや銀行等生活に必要な施設が揃っています。)(1200m)

真福寺小学校(真福寺小学校は昭和57年4月に川崎市の100校目の公立小学校として開校しました。)

小学校

周辺環境:真福寺小学校(真福寺小学校は昭和57年4月に川崎市の100校目の公立小学校として開校しました。)(650m)

 HACドラッグ下麻生店(地域のお客様に、より便利で、安心して生活していただける超高齢社会のインフラとしてのドラッグストアです。)

ドラッグストア

周辺環境: HACドラッグ下麻生店(地域のお客様に、より便利で、安心して生活していただける超高齢社会のインフラとしてのドラッグストアです。)(350m)

マルエツ 柿生店(食品スーパーマーケットとしては店舗数・売上高で国内最大規模と言われ、全国にスーパーマーケットをチェーン展開しているマルエツ。)

スーパー

周辺環境:マルエツ 柿生店(食品スーパーマーケットとしては店舗数・売上高で国内最大規模と言われ、全国にスーパーマーケットをチェーン展開しているマルエツ。)(1100m)

柿生中学校(昭和22年開校の歴史ある中学校です。中学校内に郷土の史料館が設置されています。)

中学校

周辺環境:柿生中学校(昭和22年開校の歴史ある中学校です。中学校内に郷土の史料館が設置されています。)(850m)

王禅寺源内谷公園(住宅街に位置し、複合遊具やすべり台、砂場がある公園です。)

公園

周辺環境:王禅寺源内谷公園(住宅街に位置し、複合遊具やすべり台、砂場がある公園です。)(600m)

柿の実幼稚園 (自然豊かな4万坪の敷地と、およそ900名の園児の数は関東最大級です。)

幼稚園・保育園

周辺環境:柿の実幼稚園 (自然豊かな4万坪の敷地と、およそ900名の園児の数は関東最大級です。)(900m)

西友新ゆりグリーンタウン店(年中無休で営業しています。新百合ヶ丘駅よりバスにて約10分の距離にあります。)

スーパー

周辺環境:西友新ゆりグリーンタウン店(年中無休で営業しています。新百合ヶ丘駅よりバスにて約10分の距離にあります。)(1100m)

お気軽にどうぞ!

お気に入りに追加済み

詳細情報

学区

真福寺小学校

柿生中学校

用途地域

第二種中高層住居専用

地目

宅地

建ぺい率

60%

容積率

150%

駐車場

有り ビルトイン車庫

接道

16.0m

権利

所有権

私道面積

無し

セットバック

無し

建物構造

木造

建物階数

3階

築年月

2025/09

入居日

2025/10

建築確認番号

第KBI-SGM25-10-0259号

都市計画

市街化区域

取引態様

仲介

物件番号

A1052-3

設備

都市ガス、公営水道、公共下水、耐震構造、外壁サイディング、ビルトインガレージ、駐車場1台、緑豊かな住宅地、平坦地、都市近郊、地盤調査済、前道6m以上、市街地が近い、駅まで平坦、小学校徒歩10分以内、保育施設・幼稚園5分以内、コンビニ5分以内、対面キッチン、パントリー、都市ガス、整形地、眺望良好、システムキッチン、ガス3口、カウンタキッチン、対面キッチン、食器洗い機付き、浄水器、ユニットバス、追い焚き、浴室乾燥機、ウォシュレット、オートバス付き、トイレ2ヶ所、浴室1坪以上、浴室に窓、暖房便座、セカンド洗面台、浴室暖房、バルコニー、3階建以上、LDK15畳以上、採光3面、全室2面採光、フローリング、全室フローリング、クローゼット、収納、床下収納、下駄箱、全居室収納、洗面室収納、シャンプドレッサー付き、モニタ付きインターフォン、カードキー、複層ガラス、火災警報器(報知機)、通風良好、陽当り良好、眺望良好、24時間換気システム、建物10年保証

こだわり

建売だけど一味違うこだわり建物、カワイイ系のこだわり建物、耐震に配慮された建物、断熱に配慮された建物、省エネに配慮された建物、食器洗い洗浄乾燥機、浴室換気乾燥暖房機、運転ラクラク生活、自然を感じる暮らし、LDKは2階に、LDK15帖以上、広々バルコニー、対面キッチン、浴室1坪以上、パントリー、小学校10分以内、コンビニ10分以内、保育園10分以内、公園10分以内、都市ガス、屋根付きカースペース、道路広々(5m以上)、日当たり良好、整形地、眺望良好、道路と段差無し

特記事項

 景観法:有/宅地造成工事規制区域:有/高度地区:有/日影制限:有/高さ限度:有/建築基準法22条による区域/建物面積:1階車庫面積約13.04平米含。

備考

「柿生」駅徒歩15分 浴室TVやセカンド洗面、リネン庫などあったら嬉しい設備・仕様が標準装備 4LDK

この一戸建てを見ている人におすすめの物件

お気軽にどうぞ!

お気に入りに追加済み

loading...