川崎市多摩区長尾2丁目 新築一戸建 5380万円 D号棟

物件種別

新築一戸建て

価格

5,380万円

所在地

川崎市多摩区 長尾2丁目 5-9

交通

小田急線「向ヶ丘遊園」駅 徒歩 13 分

南武線「登戸」駅 徒歩 15 分

土地面積

55.79㎡

建物面積

103.70㎡

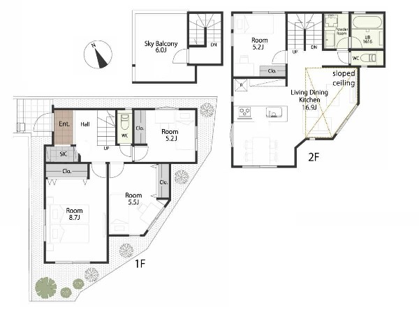
間取り

4LDK

前回情報更新日 2026.01.16 | 次回情報更新予定日 2026.01.30

省エネに配慮された建物

日当たり良好

1 | 4

この物件のココがオススメ!

「登戸」駅 3駅2沿線徒歩圏内の好立地 生田緑地ばら苑や藤子・F・不二雄ミュージアムも近く住環境良好

  • システムキッチン
  • ガスコンロ
  • ガス3口
  • カウンタキッチン
  • 対面キッチン

お気軽にどうぞ!

お気に入りに追加済み

所在地マップ

間取り

お気軽にどうぞ!

お気に入りに追加済み

ローンシミュレーション

頭金・金利の場合

この物件の月々のお支払額

125,690

ボーナス時(年2回)お支払額

150,000

安全性をチェック! 年収に対する返済比率

- %

※会員登録し、詳細情報を記入されますと、全ての物件で自動的に金額が表示され、大変便利です。

※まだ会員登録をされていない方は、下記チェック欄をご記入ください。

※上記計算は物件価格 5,380万円+諸経費 8%込みの金額による結果となります。

※返済金額はあくまでも目安です。

お客様の条件からシミュレーションするには?

会員登録してローン情報を入力しておくと全ての物件に対してローンシミュレーションを表示できます。

周辺環境

藤子F不二雄ミュージアム(藤子・F・不二雄の「夢」と「ふしぎ」と「遊びゴコロ」に出会えるミュージアムです。)

その他環境写真

周辺環境:藤子F不二雄ミュージアム(藤子・F・不二雄の「夢」と「ふしぎ」と「遊びゴコロ」に出会えるミュージアムです。)(270m)

登戸駅(JR南武線と小田急線の乗換駅です。新宿へのアクセスが便利なだけではなく、代々木上原駅より「東京メトロ千代田線」へも乗り入れています。)

周辺環境:登戸駅(JR南武線と小田急線の乗換駅です。新宿へのアクセスが便利なだけではなく、代々木上原駅より「東京メトロ千代田線」へも乗り入れています。)(1200m)

向ヶ丘遊園駅(小田急線急行停車駅の「向ヶ丘遊園」駅。周辺には商業施設や銀行等の施設が揃っています。)

周辺環境:向ヶ丘遊園駅(小田急線急行停車駅の「向ヶ丘遊園」駅。周辺には商業施設や銀行等の施設が揃っています。)(1000m)

ビッグ・エー川崎宿河原店(国産品にこだわりを持つスーパーマーケット。生鮮食料品、酒類などを扱い、セールも頻繁に行っている。)

スーパー

周辺環境:ビッグ・エー川崎宿河原店(国産品にこだわりを持つスーパーマーケット。生鮮食料品、酒類などを扱い、セールも頻繁に行っている。)(1000m)

宿河原小学校(お子様が一日の中でも長い時間を過ごす小学校。どんどん成長していくお子様の姿が目に浮かびます。)

小学校

周辺環境:宿河原小学校(お子様が一日の中でも長い時間を過ごす小学校。どんどん成長していくお子様の姿が目に浮かびます。)(860m)

稲田中学校(昭和22年開校の歴史ある中学校。全校生徒が870人のマンモス校。これだけ子供が多いのは人が集まるエリアを証明しています。)

中学校

周辺環境:稲田中学校(昭和22年開校の歴史ある中学校。全校生徒が870人のマンモス校。これだけ子供が多いのは人が集まるエリアを証明しています。)(1360m)

お気軽にどうぞ!

お気に入りに追加済み

詳細情報

学区

宿河原小学校

稲田中学校

用途地域

第一種住居

地目

宅地

建ぺい率

60%

容積率

160%

駐車場

有り ビルトイン車庫

接道

南西 4.0m

権利

所有権

私道面積

有 51.28m² 1/9

セットバック

無し

建物構造

木造

建物階数

3階

築年月

2025/07

入居日

即時

建築確認番号

第2024SBC-確02102Y

都市計画

市街化区域

取引態様

仲介

物件番号

A1280-D

設備

都市ガス、公営水道、公共下水、省エネルギー対策、シックハウス対策、ビルトインガレージ、駐車場1台、緑豊かな住宅地、閑静な住宅地、平坦地、都市近郊、地盤調査済、南側道路面す、市街地が近い、スーパーが近い(10分以内)、駅まで平坦、2沿線以上利用可、公園5分以内、コンビニ5分以内、対面キッチン、都市ガス、システムキッチン、ガスコンロ、ガス3口、カウンタキッチン、対面キッチン、食器洗い機付き、浄水器、ユニットバス、追い焚き、浴室乾燥機、ウォシュレット、オートバス付き、トイレ2ヶ所、浴室1坪以上、浴室に窓、暖房便座、浴室暖房、バルコニー、南面バルコニー、3階建以上、LDK15畳以上、省エネ給湯器、採光3面、全室2面採光、南西向き、フローリング、全室フローリング、リビング階段、スマートキー、クローゼット、収納、下駄箱、全居室収納、シャンプドレッサー付き、フラット35Sに対応、年内入居可、モニタ付きインターフォン、複層ガラス、火災警報器(報知機)、通風良好、陽当り良好、24時間換気システム、建物10年保証

こだわり

ごみ置き場隣接、省エネに配慮された建物、食器洗い洗浄乾燥機、浴室換気乾燥暖房機、急行電車でスピード通勤、2沿線利用であんしん通勤、リビングイン階段、LDKは2階に、LDK15帖以上、対面キッチン、浴室1坪以上、スーパー10分以内、コンビニ10分以内、保育園10分以内、幼稚園10分以内、公園10分以内、都市ガス、フラット35利用可、屋根付きカースペース、5棟以上の分譲地、日当たり良好、南道路限定、道路と段差無し、3階建て以上建築可能地域

特記事項

 景観法:有/宅地造成工事規制区域:有/高度地区:有/準防火地域:有/日影制限:有/高さ限度:有/ゴミ置場持分:1/9有、車庫面積約11.19平米含、備蓄倉庫1.55平米含。

備考

「登戸」駅 3駅2沿線徒歩圏内の好立地 生田緑地ばら苑や藤子・F・不二雄ミュージアムも近く住環境良好

この一戸建てを見ている人におすすめの物件

お気軽にどうぞ!

お気に入りに追加済み

loading...