川崎市麻生区東百合丘1丁目 新築一戸建 5399万円

物件種別

新築一戸建て

価格

5,399万円

所在地

川崎市麻生区 東百合丘1丁目 16-14

交通

小田急線「百合ヶ丘」駅 バス停「中の台」まで 徒歩 4 分 バス利用 7分

小田急線「新百合ヶ丘」駅 バス停「中の台」まで 徒歩 4 分 バス利用 12分

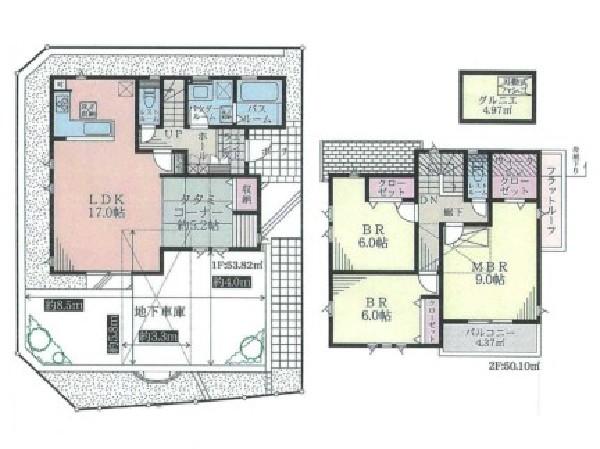
土地面積

147.12㎡

建物面積

108.47㎡

間取り

4LDK

前回情報更新日 2025.10.10 | 次回情報更新予定日 2025.10.24

シューズインクローク

断熱に配慮された建物

省エネに配慮された建物

カースペース2台

1 | 5

この物件のココがオススメ!

「百合ヶ丘」「新百合ヶ丘」駅の2駅利用可能 駐車スペース2台の広々4LDKが誕生

  • システムキッチン
  • ガス3口
  • 対面キッチン
  • 食器洗い機付き
  • ユニットバス

お気軽にどうぞ!

お気に入りに追加済み

所在地マップ

間取り

お気軽にどうぞ!

お気に入りに追加済み

ローンシミュレーション

頭金・金利の場合

この物件の月々のお支払額

126,209

ボーナス時(年2回)お支払額

150,000

安全性をチェック! 年収に対する返済比率

- %

※会員登録し、詳細情報を記入されますと、全ての物件で自動的に金額が表示され、大変便利です。

※まだ会員登録をされていない方は、下記チェック欄をご記入ください。

※上記計算は物件価格 5,399万円+諸経費 8%込みの金額による結果となります。

※返済金額はあくまでも目安です。

お客様の条件からシミュレーションするには?

会員登録してローン情報を入力しておくと全ての物件に対してローンシミュレーションを表示できます。

周辺環境

長沢小学校(教育方針は自ら考え判断し、主体的に行動できる子、認め合い、励まし合い、させ合うやさしい子、苦手なことにも挑戦し、最後までやり遂げる子)

小学校

周辺環境:長沢小学校(教育方針は自ら考え判断し、主体的に行動できる子、認め合い、励まし合い、させ合うやさしい子、苦手なことにも挑戦し、最後までやり遂げる子)(750m)

長沢中学校(広いグランドで部活や体育祭など、団体競技で青春を謳歌。1学年4クラス、約440人の生徒数。確かな学力、豊かな心を育てるのが目標の学校。)

中学校

周辺環境:長沢中学校(広いグランドで部活や体育祭など、団体競技で青春を謳歌。1学年4クラス、約440人の生徒数。確かな学力、豊かな心を育てるのが目標の学校。)(750m)

いなげや 新ゆりヨネッティー王禅寺前店(営業時間9時から22時、駐車場226台完備の大型スーパーです。)

スーパー

周辺環境:いなげや 新ゆりヨネッティー王禅寺前店(営業時間9時から22時、駐車場226台完備の大型スーパーです。)(1400m)

ファミリーマート 川崎東百合丘店(ファミリーマート人気のファミチキをはじめスナックメニューも大人気です。)

コンビニ

周辺環境:ファミリーマート 川崎東百合丘店(ファミリーマート人気のファミチキをはじめスナックメニューも大人気です。)(650m)

百合丘さくら幼稚園(自然に囲まれた幼稚園です。特別指導として絵画、英語、お習字、体操等各専門の先生が指導します。)

幼稚園・保育園

周辺環境:百合丘さくら幼稚園(自然に囲まれた幼稚園です。特別指導として絵画、英語、お習字、体操等各専門の先生が指導します。)(550m)

フィットケアデポ長沢(今やドラックストアは薬だけではありません。日用雑貨から食料品まで品ぞろえが豊富です。)

ドラッグストア

周辺環境:フィットケアデポ長沢(今やドラックストアは薬だけではありません。日用雑貨から食料品まで品ぞろえが豊富です。)(800m)

お気軽にどうぞ!

お気に入りに追加済み

詳細情報

学区

長沢小学校

長沢中学校

用途地域

第一種低層住居専用

地目

宅地

建ぺい率

50%

容積率

80%

駐車場

有り カースペース

接道

南西 4.0m

権利

所有権

私道面積

有 19.00m² 1/1

セットバック

無し

建物構造

木造

建物階数

2階

築年月

2025/06

入居日

即時

建築確認番号

第24UDI1W建09871号

都市計画

市街化区域

取引態様

仲介

物件番号

A1324

設備

都市ガス、公営水道、公共下水、防犯シャッター、省エネルギー対策、駐車場2台以上、整形地、閑静な住宅地、都市近郊、地盤調査済、南側道路面す、市街地が近い、周辺交通量少なめ、始発駅、2沿線以上利用可、公園5分以内、シューズインクローク、対面キッチン、都市ガス、整形地、眺望良好、システムキッチン、ガス3口、対面キッチン、食器洗い機付き、浄水器、ユニットバス、追い焚き、浴室乾燥機、ウォシュレット、トイレ2ヶ所、浴室1坪以上、浴室に窓、暖房便座、バルコニー、2階建、LDK20畳以上、採光3面、南向き、全室2面採光、フローリング、全室フローリング、クローゼット、収納、下駄箱、全居室収納、シューズインクローク、シャンプドレッサー付き、庭、フラット35Sに対応、年内入居可、モニタ付きインターフォン、複層ガラス、火災警報器(報知機)、通風良好、陽当り良好、24時間換気システム、建物10年保証

こだわり

道路狭い(4メートル未満)、断熱に配慮された建物、省エネに配慮された建物、食器洗い洗浄乾燥機、浴室換気乾燥暖房機、LDKは1階に、2階建て住宅限定、シューズインクローク、LDK20帖以上、主寝室 8帖以上、対面キッチン、浴室1坪以上、コンビニ10分以内、幼稚園10分以内、公園10分以内、都市ガス、フラット35利用可、カースペース2台、日当たり良好、南道路限定、整形地、眺望良好、道路と段差無し、建物35坪以上建築可能、低層住居専用地域

特記事項

 壁面後退:有/景観法:有/宅地造成工事規制区域:有/高度地区:有/日影制限:有/敷地面積最低限度:有/高さ限度:有/建築基準法第22条による区域 接道私道 駐車は車種により2台可。

備考

「百合ヶ丘」「新百合ヶ丘」駅の2駅利用可能 駐車スペース2台の広々4LDKが誕生

この一戸建てを見ている人におすすめの物件

お気軽にどうぞ!

お気に入りに追加済み

loading...