横浜市都筑区荏田南3丁目 新築一戸建 7990万円 2号棟

物件種別

新築一戸建て

価格

7,990万円

所在地

横浜市都筑区 荏田南3丁目 20-2

交通

田園都市線「市が尾」駅 徒歩 18 分

グリーンライン「都筑ふれあいの丘」駅 徒歩 20 分

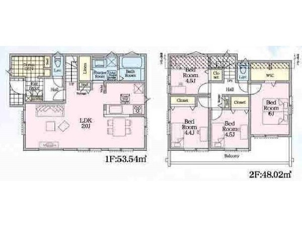
土地面積

166.01㎡

建物面積

114.48㎡

間取り

4LDK

前回情報更新日 2026.01.22 | 次回情報更新予定日 2026.02.05

シューズインクローク

省エネに配慮された建物

カースペース2台

道路広々(5m以上)

1 | 2

この物件のココがオススメ!

閑静な住宅地 敷地広々約50坪にゆとりの4LDK 西側ひな壇の為眺望良好 WICやパントリー等収納豊富

  • システムキッチン
  • ガス3口
  • 対面キッチン
  • 食器洗い機付き
  • ユニットバス

お気軽にどうぞ!

お気に入りに追加済み

所在地マップ

間取り

お気軽にどうぞ!

お気に入りに追加済み

ローンシミュレーション

頭金・金利の場合

この物件の月々のお支払額

198,805

ボーナス時(年2回)お支払額

150,000

安全性をチェック! 年収に対する返済比率

- %

※会員登録し、詳細情報を記入されますと、全ての物件で自動的に金額が表示され、大変便利です。

※まだ会員登録をされていない方は、下記チェック欄をご記入ください。

※上記計算は物件価格 7,990万円+諸経費 8%込みの金額による結果となります。

※返済金額はあくまでも目安です。

お客様の条件からシミュレーションするには?

会員登録してローン情報を入力しておくと全ての物件に対してローンシミュレーションを表示できます。

周辺環境

業務スーパー 荏田西店(食べ盛りのお子様がいらっしゃるご家庭の強い味方、魅力の量・価格のスーパーが近くにあると、とても心強いです。)

スーパー

周辺環境:業務スーパー 荏田西店(食べ盛りのお子様がいらっしゃるご家庭の強い味方、魅力の量・価格のスーパーが近くにあると、とても心強いです。)(500m)

ハーモス荏田店(スーパー、ドラッグストア、100円ショップ、しまむら等、生活に便利な店が多数入っています。)

スーパー

周辺環境:ハーモス荏田店(スーパー、ドラッグストア、100円ショップ、しまむら等、生活に便利な店が多数入っています。)(1300m)

荏田南幼稚園(「ひろい心・ゆたかな創造性・すこやかな体」の3つのことを大切にし、「意欲を育て、可能性を広げる」を保育の基盤としたいます。)

幼稚園・保育園

周辺環境:荏田南幼稚園(「ひろい心・ゆたかな創造性・すこやかな体」の3つのことを大切にし、「意欲を育て、可能性を広げる」を保育の基盤としたいます。)(500m)

荏田富士塚公園(住宅街らしく近隣には公園が複数ありますので、お子様にも嬉しい住環境です。きっと、お気に入りの公園がみつかるはずです。)

公園

周辺環境:荏田富士塚公園(住宅街らしく近隣には公園が複数ありますので、お子様にも嬉しい住環境です。きっと、お気に入りの公園がみつかるはずです。)(1300m)

ホームズ荏田店(日用品、ペット用品、家電から建築資材まで何でもそろうホームセンターです。)

ホームセンター

周辺環境:ホームズ荏田店(日用品、ペット用品、家電から建築資材まで何でもそろうホームセンターです。)(1500m)

荏田南中学校(小学校よりもより長い時間を過ごす中学校。成長していくお子様の姿が目に浮かびます。この学校で過ごす時間はお子様にとって大切な思い出となるはずです。)

中学校

周辺環境:荏田南中学校(小学校よりもより長い時間を過ごす中学校。成長していくお子様の姿が目に浮かびます。この学校で過ごす時間はお子様にとって大切な思い出となるはずです。)(450m)

お気軽にどうぞ!

お気に入りに追加済み

詳細情報

学区

荏田南小学校

荏田南中学校

用途地域

第一種低層住居専用

地目

宅地

建ぺい率

40%

容積率

80%

駐車場

有り カースペース

接道

北東 8.9m

権利

所有権

私道面積

無し

セットバック

無し

建物構造

木造

建物階数

2階

築年月

2025/09

入居日

即時

建築確認番号

第24KAK建確02689号

都市計画

市街化区域

取引態様

仲介

物件番号

A1589-2

設備

都市ガス、公営水道、公共下水、駐車場2台以上、緑豊かな住宅地、閑静な住宅地、都市近郊、地盤調査済、土地50坪以上、土地100坪以上、前道6m以上、整備された歩道、スーパーが近い(10分以内)、2沿線以上利用可、小学校徒歩10分以内、中学校徒歩10分以内、公園5分以内、シューズインクローク、ウォークインクローゼット、対面キッチン、パントリー、都市ガス、システムキッチン、ガス3口、対面キッチン、食器洗い機付き、浄水器、パントリー(食器・食品の収納庫)、ユニットバス、追い焚き、浴室乾燥機、ウォシュレット、オートバス付き、トイレ2ヶ所、浴室に窓、暖房便座、バルコニー、2階建、LDK18畳以上、省エネ給湯器、採光3面、南向き、リビング階段、クローゼット、ウォークインクローゼット、収納、床下収納、下駄箱、全居室収納、シューズインクローク、シャンプドレッサー付き、庭、フラット35Sに対応、モニタ付きインターフォン、複層ガラス、火災警報器(報知機)、陽当り良好、24時間換気システム、建物10年保証

こだわり

敷地延長(旗竿地)、省エネに配慮された建物、食器洗い洗浄乾燥機、浴室換気乾燥暖房機、運転ラクラク生活、2沿線利用であんしん通勤、LDKは1階に、2階建て住宅限定、シューズインクローク、ウォークインクローゼット、リビングイン階段、LDK18帖以上、広々バルコニー、対面キッチン、浴室1坪以上、パントリー、小学校10分以内、スーパー10分以内、コンビニ10分以内、小児科医院10分以内、幼稚園10分以内、公園10分以内、都市ガス、フラット35利用可、カースペース2台、隣家との間隔たっぷり、道路広々(5m以上)、道路と段差無し、低層住居専用地域

特記事項

 不整形地:有/壁面後退:有/宅地造成工事規制区域:有/高度地区:有/日影制限:有/敷地面積最低限度:有/高さ限度:有/緑化地域、建築基準法第22条区域、港北ニュータウン街づくり協議地区、敷地面積に路地状部分約52.2平米含む、駐車は車種により2台可。

備考

閑静な住宅地 敷地広々約50坪にゆとりの4LDK 西側ひな壇の為眺望良好 WICやパントリー等収納豊富

この一戸建てを見ている人におすすめの物件

お気軽にどうぞ!

お気に入りに追加済み

loading...