川崎市宮前区南平台 新築一戸建 4980万円 4号棟

物件種別

新築一戸建て

価格

4,980万円

所在地

川崎市宮前区 南平台 18-1

交通

田園都市線「宮前平」駅 徒歩 23 分

南武線「武蔵溝ノ口」駅 バス停「東名向丘入口」まで 徒歩 1 分 バス利用 16分

土地面積

85.24㎡

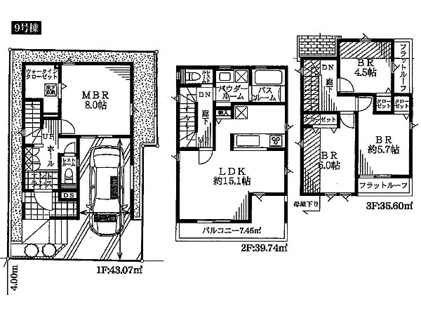
建物面積

108.48㎡

間取り

2LDK+2S

前回情報更新日 2026.01.15 | 次回情報更新予定日 2026.01.29

建売だけど一味違うこだわり建物

断熱に配慮された建物

省エネに配慮された建物

角地限定

1 | 10

この物件のココがオススメ!

スタイリッシュな内外観は、まるで注文住宅のようなこだわりのあるデザイナーズ住宅 周辺にはお買物施設も充実

  • システムキッチン
  • ガス3口
  • 対面キッチン
  • 食器洗い機付き
  • ユニットバス

お気軽にどうぞ!

お気に入りに追加済み

所在地マップ

間取り

お気軽にどうぞ!

お気に入りに追加済み

ローンシミュレーション

頭金・金利の場合

この物件の月々のお支払額

114,486

ボーナス時(年2回)お支払額

150,000

安全性をチェック! 年収に対する返済比率

- %

※会員登録し、詳細情報を記入されますと、全ての物件で自動的に金額が表示され、大変便利です。

※まだ会員登録をされていない方は、下記チェック欄をご記入ください。

※上記計算は物件価格 4,980万円+諸経費 8%込みの金額による結果となります。

※返済金額はあくまでも目安です。

お客様の条件からシミュレーションするには?

会員登録してローン情報を入力しておくと全ての物件に対してローンシミュレーションを表示できます。

周辺環境

FUJI南平台店(午前10時から23時までと比較的遅くまで営業している店舗。バスを降りてすぐにあります。)

スーパー

周辺環境:FUJI南平台店(午前10時から23時までと比較的遅くまで営業している店舗。バスを降りてすぐにあります。)(270m)

業務用スーパー宮前店(食べ盛りのお子様がいらっしゃるご家庭の強い味方、魅力の量・価格のスーパーが近くにあると、とても心強いです。)

スーパー

周辺環境:業務用スーパー宮前店(食べ盛りのお子様がいらっしゃるご家庭の強い味方、魅力の量・価格のスーパーが近くにあると、とても心強いです。)(1800m)

クリエイトS・D 川崎宮前平店(商品は医薬品のほかに食品や日用品、化粧品など幅広く取り扱っており、種類はあまり多くないながらお酒も販売しています。)

ドラッグストア

周辺環境:クリエイトS・D 川崎宮前平店(商品は医薬品のほかに食品や日用品、化粧品など幅広く取り扱っており、種類はあまり多くないながらお酒も販売しています。)(1700m)

ファミリーマート川崎宮前南平台店(コンビニが近いのは何かと助かります。いまや買物だけではなく、行政、銀行、民間サービス等、日常生活に深く関係する最重要施設。)

コンビニ

周辺環境:ファミリーマート川崎宮前南平台店(コンビニが近いのは何かと助かります。いまや買物だけではなく、行政、銀行、民間サービス等、日常生活に深く関係する最重要施設。)(160m)

ヤマダデンキテックランド向ヶ丘店(引越しに伴う電化製品の購入は近所のヤマダ電機で。しかも最近は電化製品だけではなく、リフォーム事業も行っています。)

その他環境写真

周辺環境:ヤマダデンキテックランド向ヶ丘店(引越しに伴う電化製品の購入は近所のヤマダ電機で。しかも最近は電化製品だけではなく、リフォーム事業も行っています。)(600m)

ひばり幼稚園(教育方針は「丈夫な子・やさしい心・よく考えさいごまで頑張る子」園児数約560人と大きな規模の幼稚園です。)

幼稚園・保育園

周辺環境:ひばり幼稚園(教育方針は「丈夫な子・やさしい心・よく考えさいごまで頑張る子」園児数約560人と大きな規模の幼稚園です。)(1300m)

かわさき犬蔵保育園(自然に囲まれ園舎・園庭から子供達の元気な声が聞こえてきます。お子様の成長が楽しみです。)

幼稚園・保育園

周辺環境:かわさき犬蔵保育園(自然に囲まれ園舎・園庭から子供達の元気な声が聞こえてきます。お子様の成長が楽しみです。)(1800m)

白幡台小学校(1972年創立の全校生徒300人弱の小学校。教育目標は豊かな人間性の備わった子どもを育成すること。)

小学校

周辺環境:白幡台小学校(1972年創立の全校生徒300人弱の小学校。教育目標は豊かな人間性の備わった子どもを育成すること。)(450m)

犬蔵中学校(教育目標は、「生命・いのちを尊重し、生きる力を育む」。生徒たちにとって伸び伸びと過ごせる楽しい環境づくりを目指しています。)

中学校

周辺環境:犬蔵中学校(教育目標は、「生命・いのちを尊重し、生きる力を育む」。生徒たちにとって伸び伸びと過ごせる楽しい環境づくりを目指しています。)(1200m)

お気軽にどうぞ!

お気に入りに追加済み

詳細情報

学区

白幡台小学校

犬蔵中学校

用途地域

第一種中高層住居専用

地目

宅地

建ぺい率

60%

容積率

200%

駐車場

有り ビルトイン車庫

接道

北東 7.0m 北西 4.5m

権利

所有権

私道面積

有 91.00m² 1/7

セットバック

無し

建物構造

木造

建物階数

2階

築年月

2025/12

入居日

2026/01

建築確認番号

第2025SBC-確01125H号

都市計画

市街化区域

取引態様

仲介

物件番号

A1769-4

設備

都市ガス、公営水道、公共下水、ビルトインガレージ、駐車場1台、緑豊かな住宅地、閑静な住宅地、角地、都市近郊、地盤調査済、前道6m以上、市街地が近い、スーパーが近い(10分以内)、2沿線以上利用可、小学校徒歩10分以内、保育施設・幼稚園5分以内、公園5分以内、コンビニ5分以内、ウォークインクローゼット、対面キッチン、パントリー、都市ガス、システムキッチン、ガス3口、対面キッチン、食器洗い機付き、浄水器、パントリー(食器・食品の収納庫)、ユニットバス、追い焚き、浴室乾燥機、ウォシュレット、オートバス付き、トイレ2ヶ所、浴室1坪以上、浴室に窓、暖房便座、浴室暖房、バルコニー、2階建、LDK18畳以上、省エネ給湯器、全室2面採光、東南向き、クローゼット、ウォークインクローゼット、下駄箱、全居室収納、シャンプドレッサー付き、モニタ付きインターフォン、複層ガラス、火災警報器(報知機)、通風良好、陽当り良好、24時間換気システム、建物10年保証

こだわり

建売だけど一味違うこだわり建物、カッコイイ系のこだわり建物、断熱に配慮された建物、省エネに配慮された建物、食器洗い洗浄乾燥機、浴室換気乾燥暖房機、外食を楽しめる生活、子供の多い街に住む、2階建て住宅限定、ウォークインクローゼット、LDKは2階に、LDK18帖以上、対面キッチン、浴室1坪以上、パントリー、小学校10分以内、有料道路インター2キロ以内、スーパー10分以内、コンビニ10分以内、小児科医院10分以内、保育園10分以内、公園10分以内、都市ガス、屋根付きカースペース、角地限定、道路広々(5m以上)

特記事項

 隅切り:有/景観法:有/宅地造成工事規制区域:有/高度地区:有/準防火地域:有/日影制限:有/高さ限度:有/間取りSは納戸、建物面積のうち車庫部分面積12.42m2含む。

備考

スタイリッシュな内外観は、まるで注文住宅のようなこだわりのあるデザイナーズ住宅 周辺にはお買物施設も充実

この一戸建てを見ている人におすすめの物件

お気軽にどうぞ!

お気に入りに追加済み

loading...