川崎市麻生区王禅寺東4丁目 新築一戸建 5480万円 5号棟

物件種別

新築一戸建て

価格

5,480万円

所在地

川崎市麻生区 王禅寺東4丁目 30-20

交通

小田急線「柿生」駅 徒歩 19 分

田園都市線「あざみ野」駅 バス停「真福寺」まで 徒歩 6 分 バス利用 23分

土地面積

132.00㎡

建物面積

105.26㎡

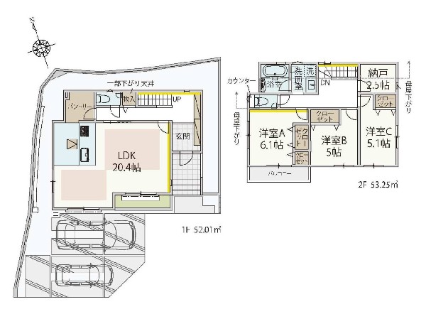
間取り

3SLDK

前回情報更新日 2025.11.06 | 次回情報更新予定日 2025.11.20

建売だけど一味違うこだわり建物

断熱に配慮された建物

省エネに配慮された建物

カースペース2台

1 | 10

この物件のココがオススメ!

全棟駐車2台の広々とした敷地。ご家族のライフスタイルに合わせて、お好みの間取りをお選びいただけます。

  • システムキッチン
  • ガスコンロ
  • ガス3口
  • カウンタキッチン
  • 対面キッチン

お気軽にどうぞ!

お気に入りに追加済み

所在地マップ

間取り

お気軽にどうぞ!

お気に入りに追加済み

ローンシミュレーション

頭金・金利の場合

この物件の月々のお支払額

128,491

ボーナス時(年2回)お支払額

150,000

安全性をチェック! 年収に対する返済比率

- %

※会員登録し、詳細情報を記入されますと、全ての物件で自動的に金額が表示され、大変便利です。

※まだ会員登録をされていない方は、下記チェック欄をご記入ください。

※上記計算は物件価格 5,480万円+諸経費 8%込みの金額による結果となります。

※返済金額はあくまでも目安です。

お客様の条件からシミュレーションするには?

会員登録してローン情報を入力しておくと全ての物件に対してローンシミュレーションを表示できます。

周辺環境

ゆりストア王禅寺店(百合ヶ丘を中心に5店舗展開する地域の老舗スーパー。常に新しいものを取り入れ、お客様の幸せを本気で考える、地元に根付く人気のお店。)

スーパー

周辺環境:ゆりストア王禅寺店(百合ヶ丘を中心に5店舗展開する地域の老舗スーパー。常に新しいものを取り入れ、お客様の幸せを本気で考える、地元に根付く人気のお店。)(750m)

業務スーパー上麻生店(食べ盛りのお子様がいらっしゃるご家庭の強い味方、魅力の量・価格のスーパーが近くにあると、とても心強いです。)

スーパー

周辺環境:業務スーパー上麻生店(食べ盛りのお子様がいらっしゃるご家庭の強い味方、魅力の量・価格のスーパーが近くにあると、とても心強いです。)(1200m)

スーパー三和町田三輪店(東京都町田市に本社を持ち、東京西部、多摩地域、 神奈川県東部に展開するスーパーマーケットチェーン「三和」。)

スーパー

周辺環境:スーパー三和町田三輪店(東京都町田市に本社を持ち、東京西部、多摩地域、 神奈川県東部に展開するスーパーマーケットチェーン「三和」。)(1500m)

島忠ホームズ町田三輪店(株式会社島忠による大型ホームセンターで、さまざまなテナントが入る複合型の商業施設です。)

ホームセンター

周辺環境:島忠ホームズ町田三輪店(株式会社島忠による大型ホームセンターで、さまざまなテナントが入る複合型の商業施設です。)(1500m)

真福寺小学校(学校教育目標は「真剣に進んで学習する子」「みんなの幸福を願いなかよく助け合う子」など)

小学校

周辺環境:真福寺小学校(学校教育目標は「真剣に進んで学習する子」「みんなの幸福を願いなかよく助け合う子」など)(800m)

王禅寺中央中学校(川崎市麻生区の王禅寺中学校と白山中学校が統合されて、平成20年4月に開校した学校です。)

中学校

周辺環境:王禅寺中央中学校(川崎市麻生区の王禅寺中学校と白山中学校が統合されて、平成20年4月に開校した学校です。)(600m)

柿の実幼稚園(自然豊かな4万坪の敷地と、およそ900名の園児の数は関東最大級です。)

幼稚園・保育園

周辺環境:柿の実幼稚園(自然豊かな4万坪の敷地と、およそ900名の園児の数は関東最大級です。)(1100m)

麻生総合病院(内科、呼吸器内科、循環器内科、消化器内科、糖尿病科などがあります。土曜日診察・日曜日診察・祝日診察・駐車場あり。)

病院

周辺環境:麻生総合病院(内科、呼吸器内科、循環器内科、消化器内科、糖尿病科などがあります。土曜日診察・日曜日診察・祝日診察・駐車場あり。)(1800m)

柿生記念病院(診療部門も多く救急外来も受付しているので、ご家族の「いざ」と言う時にも安心です。バスの運行も多く交通手段も豊富です。)

病院

周辺環境:柿生記念病院(診療部門も多く救急外来も受付しているので、ご家族の「いざ」と言う時にも安心です。バスの運行も多く交通手段も豊富です。)(1700m)

お気軽にどうぞ!

お気に入りに追加済み

詳細情報

学区

真福寺小学校

王禅寺中央中学校

用途地域

第一種低層住居専用

地目

宅地

建ぺい率

40%

容積率

80%

駐車場

有り カースペース

接道

南西 4.5m

権利

所有権

私道面積

無し

セットバック

無し

建物構造

木造

建物階数

2階

築年月

2025/11

入居日

2025/11

建築確認番号

KBI-SGM25-10-2021

都市計画

市街化区域

取引態様

仲介

物件番号

A1827-5

設備

都市ガス、公営水道、公共下水、宅配ロッカー、省エネルギー対策、駐車場2台以上、緑豊かな住宅地、閑静な住宅地、都市近郊、地盤調査済、南側道路面す、市街地が近い、隣家との間隔が大きい、スーパーが近い(10分以内)、2沿線以上利用可、小学校徒歩10分以内、中学校徒歩10分以内、公園5分以内、コンビニ5分以内、対面キッチン、パントリー、都市ガス、システムキッチン、ガスコンロ、ガス3口、カウンタキッチン、対面キッチン、食器洗い機付き、浄水器、パントリー(食器・食品の収納庫)、ユニットバス、追い焚き、浴室乾燥機、ウォシュレット、オートバス付き、トイレ2ヶ所、浴室1坪以上、浴室に窓、高機能トイレ、暖房便座、浴室暖房、バルコニー、テラス、南面バルコニー、2階建、LDK20畳以上、省エネ給湯器、人感照明センサー、採光3面、全室2面採光、南西向き、フローリング、全室フローリング、スマートキー、クローゼット、収納、床下収納、下駄箱、全居室収納、シャンプドレッサー付き、南庭、庭、年内入居可、モニタ付きインターフォン、カードキー、複層ガラス、火災警報器(報知機)、全居室複層ガラスか複層サッシ、セキュリティ充実、通風良好、陽当り良好、24時間換気システム、建物10年保証

こだわり

建売だけど一味違うこだわり建物、カッコイイ系のこだわり建物、断熱に配慮された建物、省エネに配慮された建物、床暖房、食器洗い洗浄乾燥機、浴室換気乾燥暖房機、運転ラクラク生活、自然を感じる暮らし、広い庭のある暮らし、LDKは1階に、2階建て住宅限定、LDK20帖以上、対面キッチン、浴室1坪以上、パントリー、小学校10分以内、大規模公園10分以内、スーパー10分以内、コンビニ10分以内、保育園10分以内、公園10分以内、都市ガス、カースペース2台、5棟以上の分譲地、道路広々(5m以上)、日当たり良好、南道路限定、低層住居専用地域

特記事項

 不整形地:有/隅切り:有/壁面後退:有/景観法:有/宅地造成工事規制区域:有/高度地区:有/日影制限:有/敷地面積最低限度:有/高さ限度:有/建築基準法22条による区域、土砂災害警戒区域、間取Sは納戸、駐車は車種により2台可。

備考

全棟駐車2台の広々とした敷地。ご家族のライフスタイルに合わせて、お好みの間取りをお選びいただけます。

この一戸建てを見ている人におすすめの物件

お気軽にどうぞ!

お気に入りに追加済み

loading...