川崎市中原区井田杉山町 新築一戸建 6980万円 A号棟

物件種別

新築一戸建て

価格

6,980万円

所在地

川崎市中原区 井田杉山町 2-34

交通

南武線「武蔵中原」駅 徒歩 18 分

東急東横線「元住吉」駅 徒歩 19 分

土地面積

53.47㎡

建物面積

113.26㎡

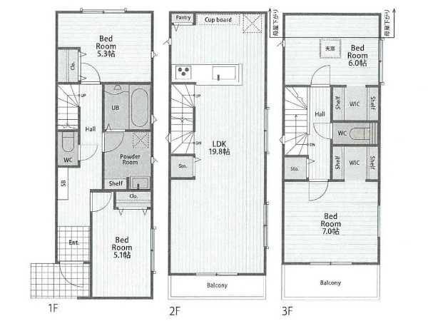
間取り

3SLDK

前回情報更新日 2026.01.16 | 次回情報更新予定日 2026.01.30

道路広々(5m以上)

日当たり良好

1 | 6

この物件のココがオススメ!

「武蔵中原」駅徒歩18分 小・中学校や小児科が徒歩5分以内、周辺には商店が多く子育てしやすい環境です

  • システムキッチン
  • ガス3口
  • 対面キッチン
  • 食器洗い機付き
  • ユニットバス

お気軽にどうぞ!

お気に入りに追加済み

所在地マップ

間取り

お気軽にどうぞ!

お気に入りに追加済み

ローンシミュレーション

頭金・金利の場合

この物件の月々のお支払額

170,508

ボーナス時(年2回)お支払額

150,000

安全性をチェック! 年収に対する返済比率

- %

※会員登録し、詳細情報を記入されますと、全ての物件で自動的に金額が表示され、大変便利です。

※まだ会員登録をされていない方は、下記チェック欄をご記入ください。

※上記計算は物件価格 6,980万円+諸経費 8%込みの金額による結果となります。

※返済金額はあくまでも目安です。

お客様の条件からシミュレーションするには?

会員登録してローン情報を入力しておくと全ての物件に対してローンシミュレーションを表示できます。

周辺環境

武蔵中原駅( JR南武線快速電車停車駅です。駅直結の商業施設もありますので、お出かけのついでのお買い物にも便利です。)

周辺環境:武蔵中原駅( JR南武線快速電車停車駅です。駅直結の商業施設もありますので、お出かけのついでのお買い物にも便利です。)(1300m)

下小田中小学校(学校教育目標 「共に学び、明日が楽しみになる学校」)

小学校

周辺環境:下小田中小学校(学校教育目標 「共に学び、明日が楽しみになる学校」)(300m)

井田中学校(知・徳・体の調和のとれた人間性豊かな、しなやかで たくましい人を育成する)

中学校

周辺環境:井田中学校(知・徳・体の調和のとれた人間性豊かな、しなやかで たくましい人を育成する)(110m)

業務スーパーマーケット河内屋(食べ盛りのお子様がいらっしゃるご家庭の強い味方、魅力の量・価格のスーパーが近くにあると、とても心強いです。)

スーパー

周辺環境:業務スーパーマーケット河内屋(食べ盛りのお子様がいらっしゃるご家庭の強い味方、魅力の量・価格のスーパーが近くにあると、とても心強いです。)(210m)

セブンイレブン川崎井田三舞町店(「イトーヨーカドー」や有名百貨店などを傘下に収める大手流通企業が運営するコンビニエンスストア。)

コンビニ

周辺環境:セブンイレブン川崎井田三舞町店(「イトーヨーカドー」や有名百貨店などを傘下に収める大手流通企業が運営するコンビニエンスストア。)(120m)

井田杉山町北公園(住宅街らしく近隣には公園が複数ありますので、お子様にも嬉しい住環境です。きっと、お気に入りの公園がみつかるはずです。)

公園

周辺環境:井田杉山町北公園(住宅街らしく近隣には公園が複数ありますので、お子様にも嬉しい住環境です。きっと、お気に入りの公園がみつかるはずです。)(200m)

お気軽にどうぞ!

お気に入りに追加済み

詳細情報

学区

下小田中小学校

井田中学校

用途地域

第二種中高層住居専用

地目

宅地

建ぺい率

60%

容積率

196%

駐車場

有り ビルトイン車庫

接道

4.9m

権利

所有権

私道面積

無し

セットバック

無し

建物構造

木造

建物階数

3階

築年月

2025/12

入居日

2026/01

建築確認番号

第25KAK建確00747号

都市計画

市街化区域

取引態様

仲介

物件番号

A1961-A

設備

都市ガス、公営水道、公共下水、ビルトインガレージ、駐車場1台、整形地、閑静な住宅地、平坦地、都市近郊、地盤調査済、南側道路面す、市街地が近い、周辺交通量少なめ、スーパーが近い(10分以内)、駅まで平坦、始発駅、2沿線以上利用可、中学校徒歩10分以内、保育施設・幼稚園5分以内、公園5分以内、コンビニ5分以内、対面キッチン、都市ガス、整形地、システムキッチン、ガス3口、対面キッチン、食器洗い機付き、浄水器、ユニットバス、追い焚き、浴室乾燥機、ウォシュレット、トイレ2ヶ所、浴室に窓、暖房便座、浴室暖房、バルコニー、南面バルコニー、3階建以上、LDK18畳以上、採光3面、南向き、リビング階段、クローゼット、収納、下駄箱、全居室収納、シャンプドレッサー付き、年度内入居可、モニタ付きインターフォン、複層ガラス、火災警報器(報知機)、陽当り良好、24時間換気システム、建物10年保証

こだわり

食器洗い洗浄乾燥機、浴室換気乾燥暖房機、運転ラクラク生活、急行電車でスピード通勤、始発で座ってゆったり通勤、駅まで平坦ラクラク通勤、2沿線利用であんしん通勤、子供の多い街に住む、自然を感じる暮らし、リビングイン階段、LDKは2階に、LDK18帖以上、対面キッチン、小学校10分以内、スーパー10分以内、コンビニ10分以内、小児科医院10分以内、保育園10分以内、公園10分以内、都市ガス、屋根付きカースペース、道路広々(5m以上)、日当たり良好、南道路限定、整形地、道路と段差無し、3階建て以上建築可能地域

特記事項

 景観法:有/宅地造成工事規制区域:有/高度地区:有/準防火地域:有/日影制限:有/高さ限度:有/間取りSは納戸 建物面積に車庫面積13.91平米を含む。

備考

「武蔵中原」駅徒歩18分 小・中学校や小児科が徒歩5分以内、周辺には商店が多く子育てしやすい環境です

この一戸建てを見ている人におすすめの物件

お気軽にどうぞ!

お気に入りに追加済み

loading...