横浜市青葉区元石川町 中古一戸建 8999万円

物件種別

中古一戸建て

価格

8,999万円

所在地

横浜市青葉区 元石川町 3701

交通

田園都市線「たまプラーザ」駅 徒歩 15 分

ブルーライン「あざみ野」駅 徒歩 16 分

土地面積

265.90㎡

建物面積

194.12㎡

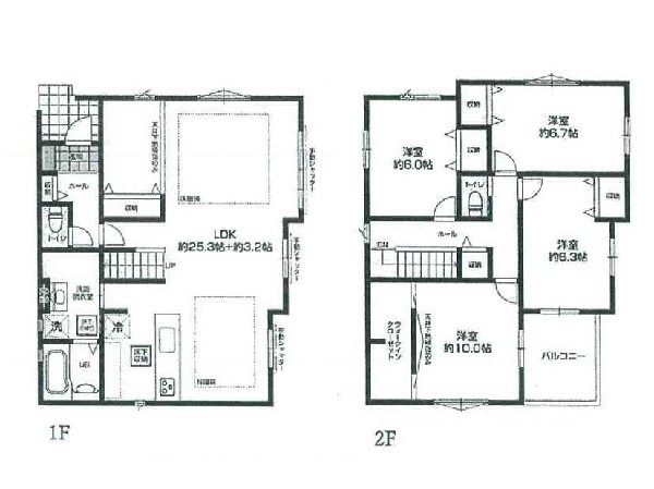
間取り

5LDK

前回情報更新日 2025.12.26 | 次回情報更新予定日 2026.01.09

カースペース3台以上

LDK20帖以上

角地限定

道路広々(5m以上)

この物件のココがオススメ!

「たまプラーザ」「あざみ野」駅 2駅2沿線利用可能 リノベーション完成済の広々賃貸併用住宅です

  • システムキッチン
  • ガス3口
  • 食器洗い機付き
  • ユニットバス
  • 追い焚き

お気軽にどうぞ!

お気に入りに追加済み

所在地マップ

間取り

お気軽にどうぞ!

お気に入りに追加済み

ローンシミュレーション

頭金・金利の場合

この物件の月々のお支払額

227,050

ボーナス時(年2回)お支払額

150,000

安全性をチェック! 年収に対する返済比率

- %

※会員登録し、詳細情報を記入されますと、全ての物件で自動的に金額が表示され、大変便利です。

※まだ会員登録をされていない方は、下記チェック欄をご記入ください。

※上記計算は物件価格 8,999万円+諸経費 8%込みの金額による結果となります。

※返済金額はあくまでも目安です。

お客様の条件からシミュレーションするには?

会員登録してローン情報を入力しておくと全ての物件に対してローンシミュレーションを表示できます。

周辺環境

たまプラーザ駅(洗練された田園都市線のイメージそのままに、たまプラーザテラス・東急百貨店などの商業施設が揃う、急行停車駅です。)

周辺環境:たまプラーザ駅(洗練された田園都市線のイメージそのままに、たまプラーザテラス・東急百貨店などの商業施設が揃う、急行停車駅です。)(1100m)

元石川小学校(お子様が一日の中でも長い時間を過ごす小学校。のびのびと過ごし、広い校庭で元気に駆け回ったり、どんどん成長していく姿が目に浮かびます。)

小学校

周辺環境:元石川小学校(お子様が一日の中でも長い時間を過ごす小学校。のびのびと過ごし、広い校庭で元気に駆け回ったり、どんどん成長していく姿が目に浮かびます。)(950m)

べじたフル王国さどや(新鮮な青果から、食料品・日用品も取り扱っています。日曜定休。営業時間は10時~20時)

スーパー

周辺環境:べじたフル王国さどや(新鮮な青果から、食料品・日用品も取り扱っています。日曜定休。営業時間は10時~20時)(70m)

セイジョーあざみ野店(横浜に本社を置き、首都圏だけで160店舗以上の店舗を持ち全国に展開しているココカラファイングループのドラッグストアです。)

ドラッグストア

周辺環境:セイジョーあざみ野店(横浜に本社を置き、首都圏だけで160店舗以上の店舗を持ち全国に展開しているココカラファイングループのドラッグストアです。)(900m)

美しの森幼稚園(敷地面積約3000坪!広大な自然環境の中で自発的な活動を通して、子供たちの豊かな感性を育みます。 )

幼稚園・保育園

周辺環境:美しの森幼稚園(敷地面積約3000坪!広大な自然環境の中で自発的な活動を通して、子供たちの豊かな感性を育みます。 )(1200m)

あざみ野ガーデンズ(あざみ野の毎日が、べんりでおいしく楽しくなる。あざみ野ガーデンズ。18のショップ&レストラン、スポーツ施設がございます。)

ショッピングセンター

周辺環境:あざみ野ガーデンズ(あざみ野の毎日が、べんりでおいしく楽しくなる。あざみ野ガーデンズ。18のショップ&レストラン、スポーツ施設がございます。)(1500m)

お気軽にどうぞ!

お気に入りに追加済み

詳細情報

学区

元石川小学校

山内中学校

用途地域

無指

建ぺい率

50%

容積率

80%

駐車場

有り カースペース

接道

南西 5.0m 南東 4.0m

権利

所有権

私道面積

無し

セットバック

無し

建物構造

軽量鉄骨

建物階数

2階

築年月

1993/01

入居日

相談

都市計画

市街化調整区域

取引態様

仲介

物件番号

A1958

設備

公営水道、公共下水、亜鉛メッキ鋼板葺、駐車場2台以上、緑豊かな住宅地、閑静な住宅地、角地、都市近郊、土地50坪以上、南側道路面す、市街地が近い、隣家との間隔が大きい、周辺交通量少なめ、スーパーが近い(10分以内)、2沿線以上利用可、中学校徒歩10分以内、公園5分以内、コンビニ5分以内、システムキッチン、ガス3口、食器洗い機付き、浄水器、ユニットバス、追い焚き、浴室乾燥機、ウォシュレット、トイレ2ヶ所、浴室に窓、暖房便座、バルコニー、南面バルコニー、2階建、LDK20畳以上、照明器具付き、出窓、採光3面、南向き、フローリング、クローゼット、ウォークインクローゼット、収納、下駄箱、洗面室収納、シャンプドレッサー付き、年内入居可、陽当り良好

こだわり

お墓近接、プロパンガス、食器洗い洗浄乾燥機、運転ラクラク生活、大型商業施設のある街に住む、急行電車でスピード通勤、2沿線利用であんしん通勤、おしゃれイメージな街に住む、広い庭のある暮らし、2階建て住宅限定、LDKは2階に、LDK20帖以上、有料道路インター2キロ以内、大型商業施設15分以内、スーパー10分以内、コンビニ10分以内、小児科医院10分以内、保育園10分以内、公園10分以内、カースペース3台以上、隣家との間隔たっぷり、角地限定、道路広々(5m以上)、日当たり良好、南道路限定、道路と段差無し、建物45坪以上建築可能

特記事項

 文化財保護法:有/宅地造成工事規制区域:有/日影制限:有/緑化地域/建築基準法第22条による区域/土砂災害特別警戒区域/土砂災害警戒区域/建物面積に賃貸部分48.53平米を含む。 /市街化調整区域(建築許可:都市計画法施行令36条1項3号に該当)/≪内装リフォーム…(キッチン、浴室、トイレ、洗面所、給湯器、壁、床、その他 玄関ドア) 外装リフォーム…(外壁、屋根)≫

備考

「たまプラーザ」「あざみ野」駅 2駅2沿線利用可能 リノベーション完成済の広々賃貸併用住宅です

この一戸建てを見ている人におすすめの物件

お気軽にどうぞ!

お気に入りに追加済み

loading...