川崎市幸区下平間 新築一戸建 5980万円 B号棟

物件種別

新築一戸建て

価格

5,980万円

所在地

川崎市幸区 下平間 326-9

交通

南武線「鹿島田」駅 徒歩 15 分

横須賀線「新川崎」駅 徒歩 18 分

土地面積

51.41㎡

建物面積

93.65㎡

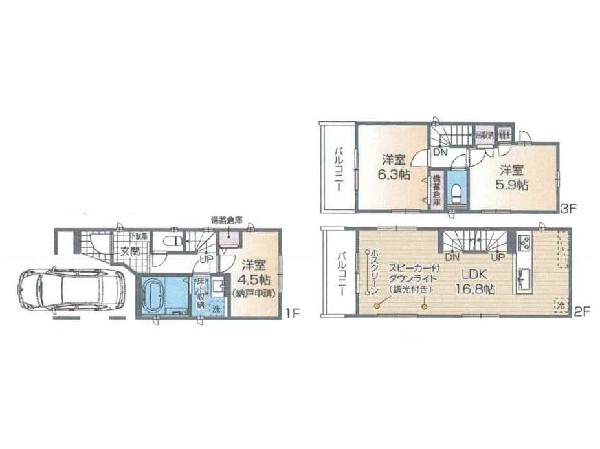
間取り

2SLDK

前回情報更新日 2026.04.10 | 次回情報更新予定日 2026.04.24

断熱に配慮された建物

1 | 5

この物件のココがオススメ!

「鹿島田」駅「新川崎」駅 2駅2路線徒歩圏内 平坦地なのでベビーカーや自転車もラクラク 車庫付き

  • システムキッチン
  • ガスコンロ
  • ガス3口
  • カウンタキッチン
  • 対面キッチン

お気軽にどうぞ!

お気に入りに追加済み

所在地マップ

間取り

お気軽にどうぞ!

お気に入りに追加済み

ローンシミュレーション

頭金・金利の場合

この物件の月々のお支払額

142,497

ボーナス時(年2回)お支払額

150,000

安全性をチェック! 年収に対する返済比率

- %

※会員登録し、詳細情報を記入されますと、全ての物件で自動的に金額が表示され、大変便利です。

※まだ会員登録をされていない方は、下記チェック欄をご記入ください。

※上記計算は物件価格 5,980万円+諸経費 8%込みの金額による結果となります。

※返済金額はあくまでも目安です。

お客様の条件からシミュレーションするには?

会員登録してローン情報を入力しておくと全ての物件に対してローンシミュレーションを表示できます。

周辺環境

下平間春風公園(広い芝生に遊具。花壇まである見ていても気持ちのいい公園。買い物ついでによるのもいいかもしれません。)

公園

周辺環境:下平間春風公園(広い芝生に遊具。花壇まである見ていても気持ちのいい公園。買い物ついでによるのもいいかもしれません。)(500m)

Olympic川崎鹿島田店(お手頃価格でなんでも揃う。首都圏のスーパーマーケット・総合ディスカウントストア。)

その他環境写真

周辺環境:Olympic川崎鹿島田店(お手頃価格でなんでも揃う。首都圏のスーパーマーケット・総合ディスカウントストア。)(240m)

クリエイトS・D川崎下平間店(大きな駐車場を完備したドラックストア。10時~23時までの営業時間です。)

ドラッグストア

周辺環境:クリエイトS・D川崎下平間店(大きな駐車場を完備したドラックストア。10時~23時までの営業時間です。)(220m)

セブンイレブン川崎古川町店(早朝や深夜など、時間帯を問わず、幅広い品物が揃うコンビニ。生活に欠かせない存在ですので、近くにあるとやっぱり便利ですね。)

コンビニ

周辺環境:セブンイレブン川崎古川町店(早朝や深夜など、時間帯を問わず、幅広い品物が揃うコンビニ。生活に欠かせない存在ですので、近くにあるとやっぱり便利ですね。)(500m)

区役所(幸区役所 引越しや出産、検診、保育園の入園、年金、税金、各種手続き等々、節目で必ず行く必要がある区役所。)

役所

周辺環境:区役所(幸区役所 引越しや出産、検診、保育園の入園、年金、税金、各種手続き等々、節目で必ず行く必要がある区役所。)(480m)

塚越中学校(成長の過程でより濃い時間を過ごす3年間。ここで過ごす時間は、お子様にとって、とても大切な思い出となるはずです。)

中学校

周辺環境:塚越中学校(成長の過程でより濃い時間を過ごす3年間。ここで過ごす時間は、お子様にとって、とても大切な思い出となるはずです。)(560m)

下平間小学校(創立昭和32年。教育目標「学びあい 高めあい みんなでよくなる下平間」)

小学校

周辺環境:下平間小学校(創立昭和32年。教育目標「学びあい 高めあい みんなでよくなる下平間」)(570m)

Spacekid保育園(幸区の認可保育所で最大定員80人。)

幼稚園・保育園

周辺環境:Spacekid保育園(幸区の認可保育所で最大定員80人。)(350m)

第二ひかり幼稚園(園庭から子供たちの元気な声が聞こえてきます。)

幼稚園・保育園

周辺環境:第二ひかり幼稚園(園庭から子供たちの元気な声が聞こえてきます。)(370m)

お気軽にどうぞ!

お気に入りに追加済み

詳細情報

学区

下平間小学校

塚越中学校

用途地域

第一種住居

地目

宅地

建ぺい率

60%

容積率

160%

駐車場

有り ビルトイン車庫

接道

南西 4.0m

権利

所有権

私道面積

無し

セットバック

無し

建物構造

木造

建物階数

3階

築年月

2026/09

入居日

2026/10

建築確認番号

第25UDI1T建04760

都市計画

市街化区域

取引態様

仲介

物件番号

A2283-B

設備

都市ガス、公営水道、公共下水、防犯シャッター、省エネルギー対策、外壁サイディング、ビルトインガレージ、駐車場1台、閑静な住宅地、平坦地、都市近郊、地盤調査済、市街地が近い、スーパーが近い(10分以内)、駅まで平坦、2沿線以上利用可、小学校徒歩10分以内、中学校徒歩10分以内、保育施設・幼稚園5分以内、公園5分以内、コンビニ5分以内、対面キッチン、都市ガス、システムキッチン、ガスコンロ、ガス3口、カウンタキッチン、対面キッチン、食器洗い機付き、浄水器、ユニットバス、追い焚き、浴室乾燥機、ウォシュレット、トイレ2ヶ所、浴室1坪以上、浴室に窓、暖房便座、浴室暖房、室内洗濯物干し、バルコニー、3階建以上、LDK15畳以上、採光3面、全室2面採光、南西向き、フローリング、全室フローリング、リビング階段、スマートキー、クローゼット、収納、床下収納、下駄箱、全居室収納、洗面室収納、シャンプドレッサー付き、フラット35Sに対応、年内入居可、モニタ付きインターフォン、複層ガラス、火災警報器(報知機)、通風良好、陽当り良好、24時間換気システム、建物10年保証

こだわり

断熱に配慮された建物、食器洗い洗浄乾燥機、浴室換気乾燥暖房機、外食を楽しめる生活、急行電車でスピード通勤、駅まで平坦ラクラク通勤、2沿線利用であんしん通勤、子供の多い街に住む、リビングイン階段、LDKは2階に、LDK15帖以上、広々バルコニー、対面キッチン、浴室1坪以上、小学校10分以内、スーパー10分以内、コンビニ10分以内、小児科医院10分以内、保育園10分以内、幼稚園10分以内、公園10分以内、都市ガス、フラット35利用可、屋根付きカースペース、道路と段差無し、3階建て以上建築可能地域

特記事項

 景観法:有/宅地造成工事規制区域:有/高度地区:有/防火地域:有/日影制限:有/高さ限度:有/建物面積に車庫部分10.18平米・備蓄倉庫1.79平米含む、間取Sは納戸。

備考

「鹿島田」駅「新川崎」駅 2駅2路線徒歩圏内 平坦地なのでベビーカーや自転車もラクラク 車庫付き

この一戸建てを見ている人におすすめの物件

お気軽にどうぞ!

お気に入りに追加済み

loading...