横浜市港北区下田町2丁目 中古一戸建 5080万円

物件種別

中古一戸建て

価格

5,080万円

所在地

横浜市港北区 下田町2丁目 7-34-2

交通

東急東横線「日吉」駅 徒歩 15 分

東急東横線「元住吉」駅 徒歩 24 分

土地面積

76.15㎡

建物面積

87.98㎡

間取り

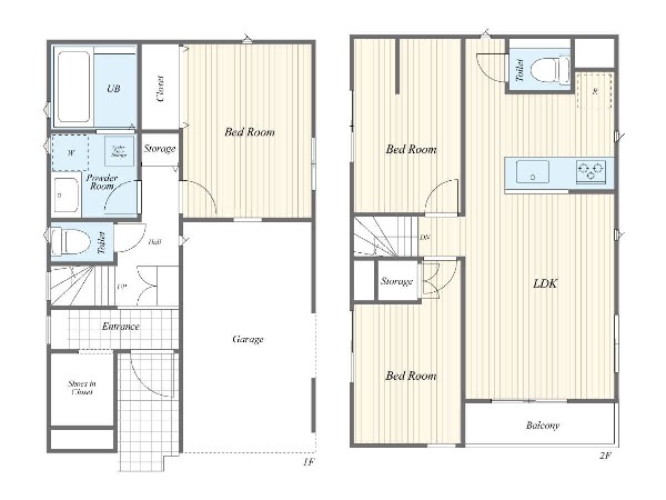
3LDK

前回情報更新日 2026.04.02 | 次回情報更新予定日 2026.04.16

シューズインクローク

床暖房

日当たり良好

低層住居専用地域

1 | 21

この物件のココがオススメ!

日吉駅 2023年築 南道路につき日当たり良好 リビングはアクセントクロスを使用しリラックスできる空間を演出

  • システムキッチン
  • ガス3口
  • 対面キッチン
  • 食器洗い機付き
  • ユニットバス

お気軽にどうぞ!

お気に入りに追加済み

所在地マップ

間取り

お気軽にどうぞ!

お気に入りに追加済み

ローンシミュレーション

頭金・金利の場合

この物件の月々のお支払額

117,287

ボーナス時(年2回)お支払額

150,000

安全性をチェック! 年収に対する返済比率

- %

※会員登録し、詳細情報を記入されますと、全ての物件で自動的に金額が表示され、大変便利です。

※まだ会員登録をされていない方は、下記チェック欄をご記入ください。

※上記計算は物件価格 5,080万円+諸経費 8%込みの金額による結果となります。

※返済金額はあくまでも目安です。

お客様の条件からシミュレーションするには?

会員登録してローン情報を入力しておくと全ての物件に対してローンシミュレーションを表示できます。

周辺環境

井田病院 (川崎市立井田病院は、自治体病院として、市民に信頼され、市民が安心してかかれる病院づくりを目指します。)

病院

周辺環境:井田病院 (川崎市立井田病院は、自治体病院として、市民に信頼され、市民が安心してかかれる病院づくりを目指します。)(200m)

日吉さくら幼稚園 (園舎・園庭から子供たちの元気な声が聞こえてきます。できることが増えていく、お子様の成長が楽しみです。)

幼稚園・保育園

周辺環境:日吉さくら幼稚園 (園舎・園庭から子供たちの元気な声が聞こえてきます。できることが増えていく、お子様の成長が楽しみです。)(450m)

ライフ中原井田店(ライフは、「安全と安心」「鮮度と品質」「信頼とサービス」にこだわっています。)

スーパー

周辺環境:ライフ中原井田店(ライフは、「安全と安心」「鮮度と品質」「信頼とサービス」にこだわっています。)(700m)

井田公園  (子どもが走り回れる広さの公園です。昭和後期につくられた第二次ベビーブームのための公園です。公園の設備にはトイレがあります。)

公園

周辺環境:井田公園  (子どもが走り回れる広さの公園です。昭和後期につくられた第二次ベビーブームのための公園です。公園の設備にはトイレがあります。)(700m)

佐々木内科クリニック(診療科目. 内科・消化器内科・胃腸内科・循環器内科・小児科。駐車場2台あり。)

病院

周辺環境:佐々木内科クリニック(診療科目. 内科・消化器内科・胃腸内科・循環器内科・小児科。駐車場2台あり。)(700m)

クリエイト港北下田町店 (スーパーやコンビニとともに生活に欠かせないという方も多いドラッグストアは、近所にあると頼もしい限りですね。)

ドラッグストア

周辺環境:クリエイト港北下田町店 (スーパーやコンビニとともに生活に欠かせないという方も多いドラッグストアは、近所にあると頼もしい限りですね。)(900m)

下田小学校(小中一貫教育を推進している小学校。義務教育9年間の学習指導と生活指導の円滑な接続が図れるよう、中学校区を基本として推進しています。)

小学校

周辺環境:下田小学校(小中一貫教育を推進している小学校。義務教育9年間の学習指導と生活指導の円滑な接続が図れるよう、中学校区を基本として推進しています。)(1200m)

日吉台西中学校 (自然が多く残る環境に和気あいあいとした雰囲気の中学校。小中一貫推進プランを進めているので、小学校との連携がとれている。)

中学校

周辺環境:日吉台西中学校 (自然が多く残る環境に和気あいあいとした雰囲気の中学校。小中一貫推進プランを進めているので、小学校との連携がとれている。)(1900m)

島忠ホームズ港北高田店 (2014年12月にオープンした店舗、家庭用品から家具、家電製品、ペット関連などを取り扱っており、約300台の大型駐車場完備!)

ホームセンター

周辺環境:島忠ホームズ港北高田店 (2014年12月にオープンした店舗、家庭用品から家具、家電製品、ペット関連などを取り扱っており、約300台の大型駐車場完備!)(2800m)

お気軽にどうぞ!

お気に入りに追加済み

詳細情報

学区

下田小学校

日吉台西中学校

用途地域

第一種低層住居専用

地目

宅地

建ぺい率

50%

容積率

100%

駐車場

有り ビルトイン車庫

接道

4.0m

権利

所有権

私道面積

無し

セットバック

無し

建物構造

木造

建物階数

2階

築年月

2023/11

入居日

即時

都市計画

市街化区域

取引態様

専任

物件番号

A2333

設備

都市ガス、公営水道、公共下水、ビルトインガレージ、駐車場1台、整形地、閑静な住宅地、都市近郊、地盤調査済、南側道路面す、市街地が近い、周辺交通量少なめ、スーパーが近い(10分以内)、始発駅、2沿線以上利用可、総合病院徒歩10分以内、保育施設・幼稚園5分以内、公園5分以内、シューズインクローク、対面キッチン、都市ガス、整形地、システムキッチン、ガス3口、対面キッチン、食器洗い機付き、浄水器、ユニットバス、追い焚き、浴室乾燥機、ウォシュレット、オートバス付き、トイレ2ヶ所、浴室1坪以上、浴室に窓、暖房便座、浴室暖房、バルコニー、南面バルコニー、2階建、採光3面、南向き、フローリング、全室フローリング、リビング階段、クローゼット、収納、床下収納、下駄箱、全居室収納、シューズインクローク、シャンプドレッサー付き、モニタ付きインターフォン、複層ガラス、火災警報器(報知機)、通風良好、陽当り良好、24時間換気システム

こだわり

床暖房、食器洗い洗浄乾燥機、浴室換気乾燥暖房機、急行電車でスピード通勤、始発で座ってゆったり通勤、2沿線利用であんしん通勤、子供の多い街に住む、おしゃれイメージな街に住む、2階建て住宅限定、シューズインクローク、リビングイン階段、LDKは2階に、対面キッチン、浴室1坪以上、スーパー10分以内、コンビニ10分以内、総合病院10分以内、小児科医院10分以内、幼稚園10分以内、公園10分以内、都市ガス、屋根付きカースペース、日当たり良好、南道路限定、整形地、低層住居専用地域

特記事項

 宅地造成工事規制区域:有/高度地区:有/準防火地域:有/日影制限:有/敷地面積最低限度:有/高さ限度:有/緑化地域/建物面積:1階車庫面積約13.04平米含。

備考

日吉駅 2023年築 南道路につき日当たり良好 リビングはアクセントクロスを使用しリラックスできる空間を演出

この一戸建てを見ている人におすすめの物件

お気軽にどうぞ!

お気に入りに追加済み

loading...