稲城市平尾1丁目 新築一戸建 5780万円 1号棟

物件種別

新築一戸建て

価格

5,780万円

所在地

稲城市 平尾1丁目 52-5

交通

小田急線「新百合ヶ丘」駅 バス停「ひらお苑入口」まで 徒歩 1 分 バス利用 5分

小田急多摩線「栗平」駅 バス停「台原」まで 徒歩 4 分 バス利用 7分

土地面積

117.20㎡

建物面積

97.71㎡

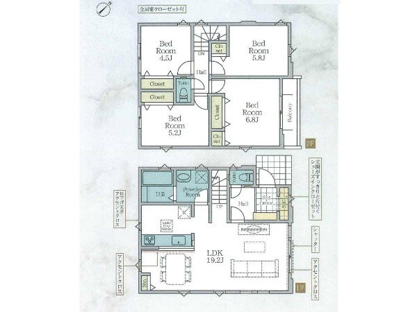
間取り

1LDK+2S

前回情報更新日 2026.04.16 | 次回情報更新予定日 2026.04.30

シューズインクローク

日当たり良好

低層住居専用地域

この物件のココがオススメ!

室内の壁にヨーロッパ漆喰を採用した自然素材の家、7.5帖ロフトやWIC、パントリーなど収納充実

  • システムキッチン
  • ガス3口
  • 対面キッチン
  • 食器洗い機付き
  • ユニットバス

お気軽にどうぞ!

お気に入りに追加済み

所在地マップ

間取り

お気軽にどうぞ!

お気に入りに追加済み

ローンシミュレーション

頭金・金利の場合

この物件の月々のお支払額

136,895

ボーナス時(年2回)お支払額

150,000

安全性をチェック! 年収に対する返済比率

- %

※会員登録し、詳細情報を記入されますと、全ての物件で自動的に金額が表示され、大変便利です。

※まだ会員登録をされていない方は、下記チェック欄をご記入ください。

※上記計算は物件価格 5,780万円+諸経費 8%込みの金額による結果となります。

※返済金額はあくまでも目安です。

お客様の条件からシミュレーションするには?

会員登録してローン情報を入力しておくと全ての物件に対してローンシミュレーションを表示できます。

周辺環境

稲城市立平尾小学校(教育目標 「人にやさしさ 自分につよさ めあてをもって取り組む子」)

小学校

周辺環境:稲城市立平尾小学校(教育目標 「人にやさしさ 自分につよさ めあてをもって取り組む子」)(700m)

ひらお保育園(稲城市の認可保育園。1971年創立。各年齢約30名、合計約160名の定員。午前6時から午後7時まで預かってくれる。)

幼稚園・保育園

周辺環境:ひらお保育園(稲城市の認可保育園。1971年創立。各年齢約30名、合計約160名の定員。午前6時から午後7時まで預かってくれる。)(900m)

ユーコープ千代ヶ丘店(こだわりの食材や調味料、お惣菜などを取り扱っており、お料理の幅が広がりそうです。新しいお料理にチャレンジしてみたくなりそうです。)

スーパー

周辺環境:ユーコープ千代ヶ丘店(こだわりの食材や調味料、お惣菜などを取り扱っており、お料理の幅が広がりそうです。新しいお料理にチャレンジしてみたくなりそうです。)(1100m)

イオンスタイル新百合ケ丘(映画館やイオンをはじめとして様々な商業施設があり、大変便利な施設です。)

ショッピングセンター

周辺環境:イオンスタイル新百合ケ丘(映画館やイオンをはじめとして様々な商業施設があり、大変便利な施設です。)(1500m)

稲城市立稲城第二中学校(緑豊かな環境で、豊かな未来を育む。本校の教育目標は、「進んで学ぶ人、心の豊かな人、たくましく生きる人、助け合って働く人」。)

中学校

周辺環境:稲城市立稲城第二中学校(緑豊かな環境で、豊かな未来を育む。本校の教育目標は、「進んで学ぶ人、心の豊かな人、たくましく生きる人、助け合って働く人」。)(1600m)

SOCOLA若葉台坂浜(2020年3月に開業した三和の食品スーパーをメインにテナント数18店が入る「地域密着型商業施設」です。)

ショッピングセンター

周辺環境:SOCOLA若葉台坂浜(2020年3月に開業した三和の食品スーパーをメインにテナント数18店が入る「地域密着型商業施設」です。)(1700m)

お気軽にどうぞ!

お気に入りに追加済み

詳細情報

学区

稲城市立平尾小学校

稲城市立稲城第二中学校

用途地域

第一種低層住居専用

地目

宅地

建ぺい率

50%

容積率

100%

駐車場

有り カースペース

接道

南東 6.0m

権利

所有権

私道面積

無し

セットバック

無し

建物構造

木造

建物階数

2階

築年月

2026/04

入居日

2026/05

建築確認番号

第A1建築確認00-2500290号

都市計画

市街化区域

取引態様

仲介

物件番号

A2378-1

設備

都市ガス、公営水道、公共下水、駐車場1台、閑静な住宅地、都市近郊、地盤調査済、南側道路面す、前道6m以上、市街地が近い、周辺交通量少なめ、2沿線以上利用可、小学校徒歩10分以内、保育施設・幼稚園5分以内、公園5分以内、コンビニ5分以内、シューズインクローク、ウォークインクローゼット、対面キッチン、都市ガス、システムキッチン、ガス3口、対面キッチン、食器洗い機付き、浄水器、パントリー(食器・食品の収納庫)、ユニットバス、追い焚き、浴室乾燥機、ウォシュレット、トイレ2ヶ所、浴室1坪以上、浴室に窓、暖房便座、バルコニー、南面バルコニー、2階建、LDK18畳以上、採光3面、全室2面採光、東南向き、リビング階段、クローゼット、ウォークインクローゼット、収納、全居室収納、シューズインクローク、シャンプドレッサー付き、モニタ付きインターフォン、複層ガラス、火災警報器(報知機)、通風良好、陽当り良好、24時間換気システム、建物10年保証

こだわり

運転ラクラク生活、LDKは1階に、2階建て住宅限定、シューズインクローク、ウォークインクローゼット、リビングイン階段、LDK18帖以上、主寝室 8帖以上、対面キッチン、浴室1坪以上、ロフト・小屋裏収納、小学校10分以内、コンビニ10分以内、幼稚園10分以内、公園10分以内、都市ガス、日当たり良好、低層住居専用地域

特記事項

 景観法:有/高度地区:有/準防火地域:有/日影制限:有/高さ限度:有/間取りSは納戸。

備考

室内の壁にヨーロッパ漆喰を採用した自然素材の家、7.5帖ロフトやWIC、パントリーなど収納充実

この一戸建てを見ている人におすすめの物件

お気軽にどうぞ!

お気に入りに追加済み

loading...