横浜市鶴見区獅子ヶ谷2丁目 新築一戸建 5980万円

物件種別

新築一戸建て

価格

5,980万円

所在地

横浜市鶴見区 獅子ケ谷2丁目 3-15

交通

京浜東北線「鶴見」駅 バス停「獅子ヶ谷」まで 徒歩 4 分 バス利用 10分

東急新横浜線「新横浜」駅 バス停「獅子ヶ谷」まで 徒歩 5 分 バス利用 22分

土地面積

150.33㎡

建物面積

100.19㎡

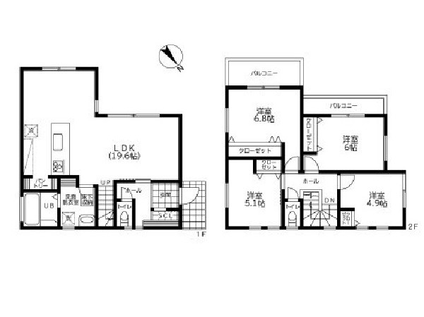
間取り

4LDK

前回情報更新日 2026.01.16 | 次回情報更新予定日 2026.01.30

シューズインクローク

カースペース3台以上

角地限定

道路広々(5m以上)

1 | 5

この物件のココがオススメ!

45坪のゆとりの敷地 カースペース3台+広い庭 開放感のある角地 19.6帖の広々LDK 収納充実♪

  • システムキッチン
  • 対面キッチン
  • 食器洗い機付き
  • ユニットバス
  • 追い焚き

お気軽にどうぞ!

お気に入りに追加済み

所在地マップ

間取り

お気軽にどうぞ!

お気に入りに追加済み

ローンシミュレーション

頭金・金利の場合

この物件の月々のお支払額

142,497

ボーナス時(年2回)お支払額

150,000

安全性をチェック! 年収に対する返済比率

- %

※会員登録し、詳細情報を記入されますと、全ての物件で自動的に金額が表示され、大変便利です。

※まだ会員登録をされていない方は、下記チェック欄をご記入ください。

※上記計算は物件価格 5,980万円+諸経費 8%込みの金額による結果となります。

※返済金額はあくまでも目安です。

お客様の条件からシミュレーションするには?

会員登録してローン情報を入力しておくと全ての物件に対してローンシミュレーションを表示できます。

周辺環境

業務スーパー駒岡店(食べ盛りのお子様がいらっしゃるご家庭の強い味方!量・価格が魅力のスーパー。9時~営業。酒取扱い有。)

スーパー

周辺環境:業務スーパー駒岡店(食べ盛りのお子様がいらっしゃるご家庭の強い味方!量・価格が魅力のスーパー。9時~営業。酒取扱い有。)(1200m)

クリエイトS・D 鶴見北寺尾店(医薬品、化粧品、日用品、ベビー用品はもちろん、野菜、精肉、酒、たばこも取扱う。駐車場が広く便利。)

ドラッグストア

周辺環境:クリエイトS・D 鶴見北寺尾店(医薬品、化粧品、日用品、ベビー用品はもちろん、野菜、精肉、酒、たばこも取扱う。駐車場が広く便利。)(280m)

トレッサ横浜(フランス・リヨン市の市街地をイメージして作られたお洒落な大型ショッピングモール。駐車場は全日無料。)

ショッピングセンター

周辺環境:トレッサ横浜(フランス・リヨン市の市街地をイメージして作られたお洒落な大型ショッピングモール。駐車場は全日無料。)(1300m)

ねむの樹北寺尾保育園(遊びを通して丈夫な体や思いやりの心を育てます。季節に合った製作を行い、廊下やお部屋に飾っています。)

幼稚園・保育園

周辺環境:ねむの樹北寺尾保育園(遊びを通して丈夫な体や思いやりの心を育てます。季節に合った製作を行い、廊下やお部屋に飾っています。)(800m)

セブン-イレブン 横浜獅子ヶ谷1丁目店(近くて便利、期待以上の品質を提供するコンビニエンスストアです。酒たばこ取扱い有。無料Wi-Fi有。)

コンビニ

周辺環境:セブン-イレブン 横浜獅子ヶ谷1丁目店(近くて便利、期待以上の品質を提供するコンビニエンスストアです。酒たばこ取扱い有。無料Wi-Fi有。)(400m)

寺尾幼稚園(子供たちの「自由と主体性」を育てる幼稚園。木工の家や巨大絵画を共同制作する。園庭の木登りが大人気。)

幼稚園・保育園

周辺環境:寺尾幼稚園(子供たちの「自由と主体性」を育てる幼稚園。木工の家や巨大絵画を共同制作する。園庭の木登りが大人気。)(700m)

獅子ヶ谷小学校(獅子ヶ谷市民の森が近くにあり自然環境に恵まれている。春の全校遠足は縦割りで高学年と低学年が交流する。)

小学校

周辺環境:獅子ヶ谷小学校(獅子ヶ谷市民の森が近くにあり自然環境に恵まれている。春の全校遠足は縦割りで高学年と低学年が交流する。)(600m)

宮川医院(循環器内科、小児科、内科のある病院。親子で通うことができるので近所にあると便利ですね。駐車場有。)

病院

周辺環境:宮川医院(循環器内科、小児科、内科のある病院。親子で通うことができるので近所にあると便利ですね。駐車場有。)(650m)

獅子ヶ谷公園(公園内には花壇や緑も多く、お散歩にも最適な公園。砂場、滑り台等の遊具もあり、お子様も楽しく遊べます。)

公園

周辺環境:獅子ヶ谷公園(公園内には花壇や緑も多く、お散歩にも最適な公園。砂場、滑り台等の遊具もあり、お子様も楽しく遊べます。)(750m)

お気軽にどうぞ!

お気に入りに追加済み

詳細情報

学区

獅子ヶ谷小学校

上の宮中学校

用途地域

第一種低層住居専用

地目

宅地

建ぺい率

50%

容積率

100%

駐車場

有り カースペース

接道

北東 4.0m 北西 4.0m

権利

所有権

私道面積

無し

セットバック

無し

建物構造

木造

建物階数

2階

築年月

2025/12

入居日

2026/01

建築確認番号

第24KAK建変00063

都市計画

市街化区域

取引態様

仲介

物件番号

P1001

設備

都市ガス、公営水道、公共下水、駐車場2台以上、緑豊かな住宅地、閑静な住宅地、角地、都市近郊、地盤調査済、市街地が近い、隣家との間隔が大きい、周辺交通量少なめ、スーパーが近い(10分以内)、始発駅、2沿線以上利用可、小学校徒歩10分以内、コンビニ5分以内、シューズインクローク、対面キッチン、パントリー、都市ガス、システムキッチン、対面キッチン、食器洗い機付き、浄水器、パントリー(食器・食品の収納庫)、ユニットバス、追い焚き、浴室乾燥機、ウォシュレット、オートバス付き、トイレ2ヶ所、浴室1坪以上、浴室に窓、暖房便座、浴室暖房、バルコニー、南面バルコニー、2階建、LDK18畳以上、全室2面採光、東南向き、フローリング、リビング階段、クローゼット、収納、床下収納、下駄箱、全居室収納、洗面室収納、シューズインクローク、シャンプドレッサー付き、南庭、庭、10㎡以上の庭、年度内入居可、モニタ付きインターフォン、複層ガラス、火災警報器(報知機)、通風良好、陽当り良好、24時間換気システム、建物10年保証

こだわり

食器洗い洗浄乾燥機、始発で座ってゆったり通勤、自然を感じる暮らし、広い庭のある暮らし、LDKは1階に、2階建て住宅限定、シューズインクローク、リビングイン階段、LDK18帖以上、対面キッチン、浴室1坪以上、パントリー、小学校10分以内、スーパー10分以内、コンビニ10分以内、都市ガス、カースペース3台以上、角地限定、道路広々(5m以上)、低層住居専用地域

特記事項

 不整形地:有/宅地造成工事規制区域:有/高度地区:有/準防火地域:有/日影制限:有/敷地面積最低限度:有/高さ限度:有/駐車は車種により3台可。

備考

45坪のゆとりの敷地 カースペース3台+広い庭 開放感のある角地 19.6帖の広々LDK 収納充実♪

この一戸建てを見ている人におすすめの物件

お気軽にどうぞ!

お気に入りに追加済み

loading...