横浜市鶴見区下末吉5丁目 新築一戸建 6380万円 20号棟

物件種別

新築一戸建て

価格

6,380万円

所在地

横浜市鶴見区 下末吉5丁目 19-40

交通

京浜東北線「鶴見」駅 徒歩 20 分

京浜急行本線「京急鶴見」駅 バス停「宮の下」まで 徒歩 3 分 バス利用 7分

土地面積

143.93㎡

建物面積

101.22㎡

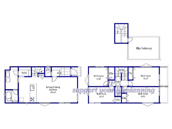
間取り

4LDK

前回情報更新日 2026.04.17 | 次回情報更新予定日 2026.05.01

スカイバルコニー

断熱に配慮された建物

省エネに配慮された建物

道路広々(5m以上)

1 | 6

この物件のココがオススメ!

<20号棟>ルーフバルコニー ウォークスルー型パントリー 水回り集中し家事動線良好 リビング収納

  • システムキッチン
  • 対面キッチン
  • 食器洗い機付き
  • 追い焚き
  • 浴室乾燥機

お気軽にどうぞ!

お気に入りに追加済み

所在地マップ

間取り

お気軽にどうぞ!

お気に入りに追加済み

ローンシミュレーション

頭金・金利の場合

この物件の月々のお支払額

153,702

ボーナス時(年2回)お支払額

150,000

安全性をチェック! 年収に対する返済比率

- %

※会員登録し、詳細情報を記入されますと、全ての物件で自動的に金額が表示され、大変便利です。

※まだ会員登録をされていない方は、下記チェック欄をご記入ください。

※上記計算は物件価格 6,380万円+諸経費 8%込みの金額による結果となります。

※返済金額はあくまでも目安です。

お客様の条件からシミュレーションするには?

会員登録してローン情報を入力しておくと全ての物件に対してローンシミュレーションを表示できます。

周辺環境

三ツ池公園(春には1600本の桜が開花する名所。テニスコート、プール、ロング滑り台等があり1日中楽しめます。)

公園

周辺環境:三ツ池公園(春には1600本の桜が開花する名所。テニスコート、プール、ロング滑り台等があり1日中楽しめます。)(900m)

ライフ鶴見店(食品の他にも日用品や衣料品も取扱う大型スーパー。書籍、100円ショップ有。駐車場は164台可能。)

スーパー

周辺環境:ライフ鶴見店(食品の他にも日用品や衣料品も取扱う大型スーパー。書籍、100円ショップ有。駐車場は164台可能。)(650m)

ファミリーマート鶴見旭台店(ホットスナックのファミチキが人気。酒たばこ取扱い有。無料Wi-Fi有。各種バーコード決済利用可能。)

コンビニ

周辺環境:ファミリーマート鶴見旭台店(ホットスナックのファミチキが人気。酒たばこ取扱い有。無料Wi-Fi有。各種バーコード決済利用可能。)(600m)

佐々木病院(内科、消化器科、循環器科、整形外科、眼科、耳鼻咽喉科等がある総合病院。人間ドック、健診可能。)

病院

周辺環境:佐々木病院(内科、消化器科、循環器科、整形外科、眼科、耳鼻咽喉科等がある総合病院。人間ドック、健診可能。)(400m)

末吉小学校(明治6年に創設された歴史ある小学校。教育目標は「かかわる・わかる・かがやく 末吉っ子」。)

小学校

周辺環境:末吉小学校(明治6年に創設された歴史ある小学校。教育目標は「かかわる・わかる・かがやく 末吉っ子」。)(600m)

末吉にこにこ保育園(各クラス10人の少人数制の保育園。「家庭と変わらぬ環境で過ごせるように」暖かい雰囲気で保育する。)

幼稚園・保育園

周辺環境:末吉にこにこ保育園(各クラス10人の少人数制の保育園。「家庭と変わらぬ環境で過ごせるように」暖かい雰囲気で保育する。)(450m)

Fit Care DEPOT下末吉店(営業時間は9時~21時半。駐車場も広く、くすりや日用品に加えて食料品、お酒、たばこも販売しています。)

ドラッグストア

周辺環境:Fit Care DEPOT下末吉店(営業時間は9時~21時半。駐車場も広く、くすりや日用品に加えて食料品、お酒、たばこも販売しています。)(350m)

びっくりドンキー鶴見店(木製皿にハンバーグとご飯が乗ったディッシュメニューが人気のハンバーグレストラン。個性的なメニューにワクワク。)

飲食店

周辺環境:びっくりドンキー鶴見店(木製皿にハンバーグとご飯が乗ったディッシュメニューが人気のハンバーグレストラン。個性的なメニューにワクワク。)(750m)

ベルク・フォルテ森永橋店(「おいしく、安く」を提供する地域密着型のスーパー。建物内にマツキヨ、百均、飲食店、美容室があり便利。)

ショッピングセンター

周辺環境:ベルク・フォルテ森永橋店(「おいしく、安く」を提供する地域密着型のスーパー。建物内にマツキヨ、百均、飲食店、美容室があり便利。)(1300m)

お気軽にどうぞ!

お気に入りに追加済み

詳細情報

学区

末吉小学校

末吉中学校

用途地域

第二種中高層住居専用

地目

宅地

建ぺい率

60%

容積率

150%

駐車場

有り カースペース

接道

5.5m

権利

所有権

私道面積

無し

セットバック

無し

建物構造

木造

建物階数

2階

築年月

2026/03

入居日

2026/05

建築確認番号

第2025SBC-確00612M号

都市計画

市街化区域

取引態様

仲介

物件番号

P0725-20

設備

都市ガス、公営水道、公共下水、省エネルギー対策、シックハウス対策、駐車場2台以上、高台に立地、閑静な住宅地、都市近郊、開発分譲地内、地盤調査済、市街地が近い、周辺交通量少なめ、ゴルフ場が近い、テニスコートが近い、スーパーが近い(10分以内)、始発駅、2沿線以上利用可、総合病院徒歩10分以内、小学校徒歩10分以内、保育施設・幼稚園5分以内、公園5分以内、コンビニ5分以内、対面キッチン、パントリー、都市ガス、眺望良好、システムキッチン、対面キッチン、食器洗い機付き、浄水器、パントリー(食器・食品の収納庫)、追い焚き、浴室乾燥機、ウォシュレット、オートバス付き、トイレ2ヶ所、シャワー、浴室1坪以上、浴室に窓、暖房便座、浴室暖房、バルコニー、バルコニー2面、ルーフバルコニー、ワイドバルコニー、南面バルコニー、2階建、LDK18畳以上、省エネ給湯器、採光2面、南向き、全室2面採光、フローリング、リビング階段、クローゼット、収納、下駄箱、全居室収納、シャンプドレッサー付き、フラット35Sに対応、モニタ付きインターフォン、複層ガラス、火災警報器(報知機)、通風良好、陽当り良好、眺望良好、24時間換気システム、建物10年保証

こだわり

断熱に配慮された建物、省エネに配慮された建物、食器洗い洗浄乾燥機、浴室換気乾燥暖房機、外食を楽しめる生活、急行電車でスピード通勤、始発で座ってゆったり通勤、2沿線利用であんしん通勤、LDKは1階に、2階建て住宅限定、スカイバルコニー、リビングイン階段、LDK18帖以上、広々バルコニー、対面キッチン、浴室1坪以上、パントリー、小学校10分以内、大型商業施設15分以内、スーパー10分以内、コンビニ10分以内、総合病院10分以内、小児科医院10分以内、保育園10分以内、公園10分以内、都市ガス、フラット35利用可、20棟以上の分譲地、道路広々(5m以上)、眺望良好、3階建て以上建築可能地域

特記事項

 不整形地:有/航空法:有/宅地造成工事規制区域:有/高度地区:有/準防火地域:有/日影制限:有/敷地内段差:有/緑化地域 横浜市建築基準条例第3条による制限有 私道持分別途あり 土地面積に路地状部分24.8平米含む 駐車は車種により2台可。

備考

<20号棟>ルーフバルコニー ウォークスルー型パントリー 水回り集中し家事動線良好 リビング収納

この一戸建てを見ている人におすすめの物件

お気軽にどうぞ!

お気に入りに追加済み

loading...