立川市幸町5丁目 新築一戸建て 6700万円 2号棟

物件種別

新築一戸建て

価格

6,700万円

所在地

立川市 幸町5丁目 66

交通

多摩都市モノレール「砂川七番」駅 徒歩 9 分

西武拝島線「玉川上水」駅 徒歩 11 分

土地面積

121.71㎡

建物面積

93.15㎡

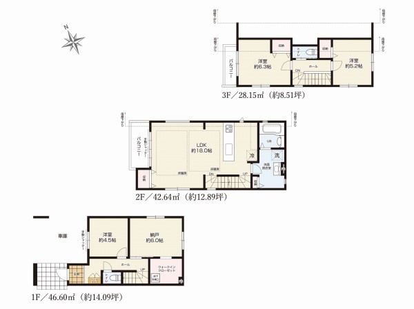
間取り

3LDK

前回情報更新日 2026.01.08 | 次回情報更新予定日 2026.01.22

断熱に配慮された建物

省エネに配慮された建物

長期優良住宅

カースペース2台

1 | 4

この物件のココがオススメ!

エアコンの設置がいらないZ空調が付いた家です。季節物などたっぷり収納できるグルニエなど収納豊富。

  • システムキッチン
  • カウンタキッチン
  • 対面キッチン
  • 追い焚き
  • 浴室乾燥機

お気軽にどうぞ!

お気に入りに追加済み

所在地マップ

間取り

お気軽にどうぞ!

お気に入りに追加済み

ローンシミュレーション

頭金・金利の場合

この物件の月々のお支払額

162,676

ボーナス時(年2回)お支払額

150,000

安全性をチェック! 年収に対する返済比率

- %

※会員登録し、詳細情報を記入されますと、全ての物件で自動的に金額が表示され、大変便利です。

※まだ会員登録をされていない方は、下記チェック欄をご記入ください。

※上記計算は物件価格 6,700万円+諸経費 8%込みの金額による結果となります。

※返済金額はあくまでも目安です。

お客様の条件からシミュレーションするには?

会員登録してローン情報を入力しておくと全ての物件に対してローンシミュレーションを表示できます。

周辺環境

立川市立幸小学校

小学校

周辺環境:立川市立幸小学校(70m)

立川市立立川第四中学校

中学校

周辺環境:立川市立立川第四中学校(500m)

中砂保育園

幼稚園・保育園

周辺環境:中砂保育園(1180m)

南台病院

病院

周辺環境:南台病院(2030m)

砂川七番

周辺環境:砂川七番(720m)

お気軽にどうぞ!

お気に入りに追加済み

詳細情報

学区

立川市立幸小学校

立川市立立川第四中学校

用途地域

第一種低層住居専用

地目

宅地

建ぺい率

40%

容積率

80%

駐車場

有り カースペース

接道

西 6.0m

権利

所有権

私道面積

無し

セットバック

無し

建物構造

木造

建物階数

2階

築年月

2026/03

入居日

2026/04

建築確認番号

第SJK-KX256006350号

都市計画

市街化区域

取引態様

仲介

物件番号

T290191

設備

都市ガス、公営水道、公共下水、閑静な住宅地、地盤調査済、前道6m以上、2沿線以上利用可、ウォークインクローゼット、対面キッチン、パントリー、都市ガス、システムキッチン、カウンタキッチン、対面キッチン、追い焚き、浴室乾燥機、トイレ2ヶ所、浴室1坪以上、浴室に窓、南面バルコニー、2階建、LDK18畳以上、グルニエ、全室2面採光、リビング階段、ウォークインクローゼット、床下収納、全居室収納、モニタ付きインターフォン、複層ガラス、通風良好、陽当り良好

こだわり

断熱に配慮された建物、省エネに配慮された建物、長期優良住宅、浴室換気乾燥暖房機、運転ラクラク生活、急行電車でスピード通勤、始発で座ってゆったり通勤、子供の多い街に住む、LDKは1階に、2階建て住宅限定、ウォークインクローゼット、リビングイン階段、LDK18帖以上、対面キッチン、浴室1坪以上、ロフト・小屋裏収納、パントリー、小学校10分以内、スーパー10分以内、コンビニ10分以内、保育園10分以内、幼稚園10分以内、公園10分以内、都市ガス、カースペース2台、隣家との間隔たっぷり、道路広々(5m以上)、道路と段差無し、低層住居専用地域

特記事項

 景観法:有/航空法:有/高度地区:有/日影制限:有/高さ限度:有。

備考

エアコンの設置がいらないZ空調が付いた家です。季節物などたっぷり収納できるグルニエなど収納豊富。

この一戸建てを見ている人におすすめの物件

お気軽にどうぞ!

お気に入りに追加済み

loading...