小平市大沼町6丁目 新築一戸建て 5380万円 2号棟

物件種別

新築一戸建て

価格

5,380万円

所在地

小平市 大沼町6丁目 8

交通

西武新宿線「花小金井」駅 徒歩 21 分

西武新宿線「小平」駅 徒歩 21 分

土地面積

114.75㎡

建物面積

91.17㎡

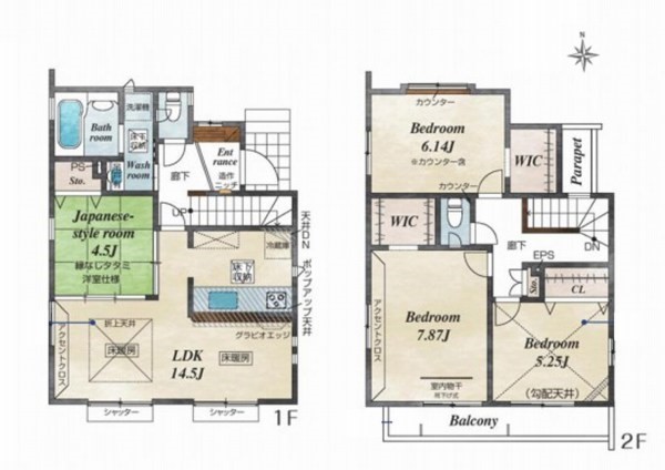
間取り

4LDK

前回情報更新日 2026.04.02 | 次回情報更新予定日 2026.04.16

耐震に配慮された建物

断熱に配慮された建物

省エネに配慮された建物

カースペース2台

この物件のココがオススメ!

太陽光パネル搭載住宅です。LDKは和室開放で19帖の広さで寛げます。2階に便利な納戸を設けています。

  • システムキッチン
  • カウンタキッチン
  • 対面キッチン
  • 食器洗い機付き
  • 追い焚き

お気軽にどうぞ!

お気に入りに追加済み

所在地マップ

間取り

お気軽にどうぞ!

お気に入りに追加済み

ローンシミュレーション

頭金・金利の場合

この物件の月々のお支払額

125,690

ボーナス時(年2回)お支払額

150,000

安全性をチェック! 年収に対する返済比率

- %

※会員登録し、詳細情報を記入されますと、全ての物件で自動的に金額が表示され、大変便利です。

※まだ会員登録をされていない方は、下記チェック欄をご記入ください。

※上記計算は物件価格 5,380万円+諸経費 8%込みの金額による結果となります。

※返済金額はあくまでも目安です。

お客様の条件からシミュレーションするには?

会員登録してローン情報を入力しておくと全ての物件に対してローンシミュレーションを表示できます。

周辺環境

小平市立小平第七小学校

小学校

周辺環境:小平市立小平第七小学校(1000m)

小平市立小平第六中学校

中学校

周辺環境:小平市立小平第六中学校(180m)

大沼保育園

幼稚園・保育園

周辺環境:大沼保育園(1500m)

公立昭和病院

病院

周辺環境:公立昭和病院(80m)

花小金井駅

周辺環境:花小金井駅(1680m)

お気軽にどうぞ!

お気に入りに追加済み

詳細情報

学区

小平市立小平第七小学校

小平市立小平第六中学校

用途地域

第一種低層住居専用

地目

建ぺい率

40%

容積率

80%

駐車場

有り カースペース

接道

6.0m

権利

所有権

私道面積

無し

セットバック

無し

建物構造

木造

建物階数

2階

築年月

2026/04

入居日

2026/05

建築確認番号

第R07SHC122733号

都市計画

市街化区域

取引態様

仲介

物件番号

T293189

設備

都市ガス、公営水道、公共下水、設計住宅性能評価付、外壁サイディング、整形地、閑静な住宅地、地盤調査済、前道6m以上、2沿線以上利用可、太陽光発電システム、対面キッチン、都市ガス、整形地、システムキッチン、カウンタキッチン、対面キッチン、食器洗い機付き、追い焚き、浴室乾燥機、トイレ2ヶ所、浴室1坪以上、浴室に窓、南面バルコニー、2階建、和室、太陽光発電システム、全室2面採光、床下収納、全居室収納、フラット35Sに対応、モニタ付きインターフォン、複層ガラス、通風良好、陽当り良好

こだわり

耐震に配慮された建物、断熱に配慮された建物、省エネに配慮された建物、床暖房、食器洗い洗浄乾燥機、浴室換気乾燥暖房機、太陽光発電システム、運転ラクラク生活、急行電車でスピード通勤、始発で座ってゆったり通勤、駅まで平坦ラクラク通勤、区画整理分譲地内に住む、LDKは1階に、2階建て住宅限定、和室有り、対面キッチン、浴室1坪以上、スーパー10分以内、コンビニ10分以内、総合病院10分以内、小児科医院10分以内、公園10分以内、都市ガス、フラット35利用可、カースペース2台、5棟以上の分譲地、隣家との間隔たっぷり、道路広々(5m以上)、整形地、道路と段差無し、低層住居専用地域

特記事項

 法22条区域・駐車2台可(車種による)・地目引渡しまでに宅地変更/景観法:有/航空法:有/高度地区:有/日影制限:有/農地法届出要:有/高さ限度:有。

備考

太陽光パネル搭載住宅です。LDKは和室開放で19帖の広さで寛げます。2階に便利な納戸を設けています。

この一戸建てを見ている人におすすめの物件

お気軽にどうぞ!

お気に入りに追加済み

loading...