小金井市前原町2丁目 新築一戸建て 5780万円 1号棟

物件種別

新築一戸建て

価格

5,780万円

所在地

小金井市 前原町2丁目 13-5

交通

中央線「武蔵小金井」駅 徒歩 17 分

西武多摩川線「新小金井」駅 徒歩 24 分

土地面積

77.39㎡

建物面積

77.32㎡

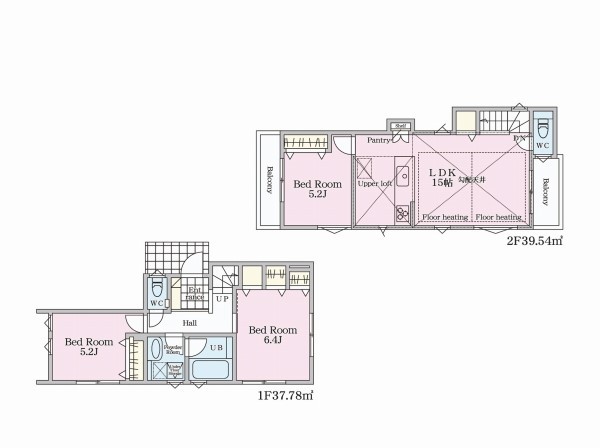
間取り

3LDK

前回情報更新日 2026.04.20 | 次回情報更新予定日 2026.05.04

耐震に配慮された建物

床暖房

低層住居専用地域

1 | 18

この物件のココがオススメ!

耐震等級3、高耐性コート光セラの外壁採用。2階にLDKを配置しているので人の目を気にせず寛げます。

  • システムキッチン
  • カウンタキッチン
  • 対面キッチン
  • 追い焚き
  • トイレ2ヶ所

お気軽にどうぞ!

お気に入りに追加済み

所在地マップ

間取り

お気軽にどうぞ!

お気に入りに追加済み

ローンシミュレーション

頭金・金利の場合

この物件の月々のお支払額

136,895

ボーナス時(年2回)お支払額

150,000

安全性をチェック! 年収に対する返済比率

- %

※会員登録し、詳細情報を記入されますと、全ての物件で自動的に金額が表示され、大変便利です。

※まだ会員登録をされていない方は、下記チェック欄をご記入ください。

※上記計算は物件価格 5,780万円+諸経費 8%込みの金額による結果となります。

※返済金額はあくまでも目安です。

お客様の条件からシミュレーションするには?

会員登録してローン情報を入力しておくと全ての物件に対してローンシミュレーションを表示できます。

周辺環境

小金井市立南小学校(子供たち一人一人の資質・能力を引き出し育て、伸ばし、みがきをかけ自己実現できる力を育みます。)

小学校

周辺環境:小金井市立南小学校(子供たち一人一人の資質・能力を引き出し育て、伸ばし、みがきをかけ自己実現できる力を育みます。)(550m)

小金井市立小金井第二中学校(学校の特色を生かしながら、全ての生徒が安全・安心で、将来の夢や希望に向かってチャレンジできる学校を目指す。)

中学校

周辺環境:小金井市立小金井第二中学校(学校の特色を生かしながら、全ての生徒が安全・安心で、将来の夢や希望に向かってチャレンジできる学校を目指す。)(400m)

ひまわり保育園

幼稚園・保育園

周辺環境:ひまわり保育園(400m)

小金井太陽病院(病院理念「全ては患者様のために」のもと、常に患者様には明るく笑顔で接しています。)

病院

周辺環境:小金井太陽病院(病院理念「全ては患者様のために」のもと、常に患者様には明るく笑顔で接しています。)(1260m)

武蔵小金井駅(JR中央本線)

周辺環境:武蔵小金井駅(JR中央本線)(1360m)

オーケー小金井店

スーパー

周辺環境:オーケー小金井店(1150m)

イトーヨーカドー武蔵小金井店(食料品、生活用品、ファッション、キッズコーナーと幅広い品揃えを誇る売り場が展開されている武蔵小金井の中心的なスーパーです。)

スーパー

周辺環境:イトーヨーカドー武蔵小金井店(食料品、生活用品、ファッション、キッズコーナーと幅広い品揃えを誇る売り場が展開されている武蔵小金井の中心的なスーパーです。)(1300m)

ソコラ武蔵小金井(スーパーやドラッグストア、100円ショップやアパレルブランド店多数の店舗が入る複合ショッピングモールです。)

ショッピングセンター

周辺環境:ソコラ武蔵小金井(スーパーやドラッグストア、100円ショップやアパレルブランド店多数の店舗が入る複合ショッピングモールです。)(1200m)

ココカラファイン武蔵小金井店

ドラッグストア

周辺環境:ココカラファイン武蔵小金井店(1200m)

野川公園(調布市・小金井市・三鷹市の3市にわたる、約40万平方メートルの広大な都立公園です。)

公園

周辺環境:野川公園(調布市・小金井市・三鷹市の3市にわたる、約40万平方メートルの広大な都立公園です。)(770m)

お気軽にどうぞ!

お気に入りに追加済み

詳細情報

学区

小金井市立南小学校

小金井市立小金井第二中学校

用途地域

第一種低層住居専用

地目

宅地

建ぺい率

50%

容積率

100%

駐車場

有り カースペース

接道

西 4.0m4.5m

権利

所有権

私道面積

無し

セットバック

無し

建物構造

木造

建物階数

2階

築年月

2026/04

入居日

即時

都市計画

市街化区域

取引態様

仲介

物件番号

T294969

設備

都市ガス、公営水道、公共下水、閑静な住宅地、地盤調査済、2沿線以上利用可、システムキッチン、カウンタキッチン、対面キッチン、追い焚き、トイレ2ヶ所、浴室1坪以上、浴室に窓、バルコニー2面、2階建、ロフト、LDK15畳以上、採光3面、全室2面採光、リビング階段、床下収納、全居室収納、フラット35Sに対応、モニタ付きインターフォン、複層ガラス、通風良好、陽当り良好、対面キッチン、パントリー、都市ガス

こだわり

耐震に配慮された建物、床暖房、2階建て住宅限定、リビングイン階段、LDKは2階に、LDK15帖以上、対面キッチン、浴室1坪以上、ロフト・小屋裏収納、パントリー、コンビニ10分以内、小児科医院10分以内、保育園10分以内、幼稚園10分以内、公園10分以内、都市ガス、フラット35利用可、低層住居専用地域

特記事項

 景観法:有/高度地区:有/準防火地域:有/日影制限:有/高さ限度:有。

備考

耐震等級3、高耐性コート光セラの外壁採用。2階にLDKを配置しているので人の目を気にせず寛げます。

この一戸建てを見ている人におすすめの物件

お気軽にどうぞ!

お気に入りに追加済み

loading...