今週末モデルハウス見学会開催中!「六浦」駅徒歩3分 新築一戸建て(1) エコジョーズ

物件種別

新築一戸建て

価格

4,880万円

所在地

横浜市金沢区 六浦南2丁目 15-19

交通

逗子線「六浦」駅 徒歩 3 分

京浜急行本線「金沢八景」駅 徒歩 18 分

土地面積

96.02㎡

建物面積

97.60㎡

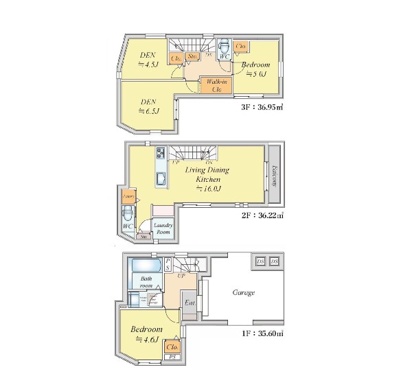
間取り

4LDK

前回情報更新日 2026.05.07 | 次回情報更新予定日 2026.05.21

断熱に配慮された建物

カースペース2台

道路広々(5m以上)

この物件のココがオススメ!

京急逗子線「六浦」駅から徒歩3分。プライバシーに配慮した2階リビング。省エネ性能に優れたガス給湯器ecoジョーズ・食洗機・浴室乾燥機・ペアガラス他設備充実。

  • システムキッチン
  • ガス3口
  • 対面キッチン
  • 食器洗い機付き
  • ユニットバス

お気軽にどうぞ!

お気に入りに追加済み

所在地マップ

間取り

お気軽にどうぞ!

お気に入りに追加済み

ローンシミュレーション

頭金・金利の場合

この物件の月々のお支払額

111,685

ボーナス時(年2回)お支払額

150,000

安全性をチェック! 年収に対する返済比率

- %

※会員登録し、詳細情報を記入されますと、全ての物件で自動的に金額が表示され、大変便利です。

※まだ会員登録をされていない方は、下記チェック欄をご記入ください。

※上記計算は物件価格 4,880万円+諸経費 8%込みの金額による結果となります。

※返済金額はあくまでも目安です。

お客様の条件からシミュレーションするには?

会員登録してローン情報を入力しておくと全ての物件に対してローンシミュレーションを表示できます。

お気軽にどうぞ!

お気に入りに追加済み

詳細情報

学区

六浦南小学校

六浦中学校

用途地域

第一種住居

地目

宅地

建ぺい率

60%

容積率

200%

駐車場

有り カースペース

接道

北東 8.5m

権利

所有権

私道面積

無し

セットバック

無し

建物構造

木造

建物階数

3階

築年月

2026/09

入居日

2026/10

建築確認番号

第25KAK建確03112号

都市計画

市街化区域

取引態様

仲介

物件番号

48424-1

設備

都市ガス、公営水道、公共下水、駐車場2台以上、緑豊かな住宅地、閑静な住宅地、前道6m以上、スーパーが近い(10分以内)、始発駅、2沿線以上利用可、中学校徒歩10分以内、公園5分以内、コンビニ5分以内、ウォークインクローゼット、対面キッチン、パントリー、都市ガス、システムキッチン、ガス3口、対面キッチン、食器洗い機付き、浄水器、I型キッチン、パントリー(食器・食品の収納庫)、ユニットバス、追い焚き、浴室乾燥機、ウォシュレット、オートバス付き、トイレ2ヶ所、浴室に窓、暖房便座、浴室暖房、バルコニー、南面バルコニー、3階建以上、LDK15畳以上、省エネ給湯器、採光2面、フローリング、リビング階段、クローゼット、ウォークインクローゼット、収納、下駄箱、全居室収納、シャンプドレッサー付き、フラット35Sに対応、モニタ付きインターフォン、複層ガラス、24時間換気システム、建物10年保証

こだわり

断熱に配慮された建物、食器洗い洗浄乾燥機、浴室換気乾燥暖房機、急行電車でスピード通勤、始発で座ってゆったり通勤、2沿線利用であんしん通勤、ウォークインクローゼット、リビングイン階段、LDKは2階に、LDK15帖以上、対面キッチン、パントリー、スーパー10分以内、コンビニ10分以内、小児科医院10分以内、保育園10分以内、公園10分以内、都市ガス、フラット35利用可、カースペース2台、道路広々(5m以上)

特記事項

崖上につき建築制限:有/不整形地:有/宅地造成工事規制区域:有/急傾斜地崩壊危険区域:有/高度地区:有/準防火地域:有/日影制限:有/敷地内段差:有/敷地面積最低限度:有/高さ限度:有/その他制限事項:土砂災害警戒区域 傾斜地含 建築基準法第22条による区域 建物建築・再建築の際、深基礎、基礎杭、擁壁の補修・再構築、外壁後退等の対策が必要となる場合有。 過小宅地 第二用途地域:第二種低層住居専用地域(建蔽率50%容積率100%)。

備考

京急逗子線「六浦」駅から徒歩3分。プライバシーに配慮した2階リビング。省エネ性能に優れたガス給湯器ecoジョーズ・食洗機・浴室乾燥機・ペアガラス他設備充実。

この一戸建てを見ている人におすすめの物件

お気軽にどうぞ!

お気に入りに追加済み

loading...