今週末モデルハウス見学会開催中!「吉野町」「蒔田」駅徒歩8分 新築一戸建て ルーフバルコニー

物件種別

新築一戸建て

価格

3,980万円

所在地

横浜市南区 東蒔田町 7-6

交通

ブルーライン「吉野町」駅 徒歩 8 分

ブルーライン「蒔田」駅 徒歩 8 分

土地面積

40.92㎡

建物面積

80.11㎡

間取り

2LDK

前回情報更新日 2025.10.16 | 次回情報更新予定日 2025.10.30

スカイバルコニー

日当たり良好

この物件のココがオススメ!

BL「吉野町」「蒔田」駅から徒歩8分。京急線「南太田」駅から徒歩10分。全室2面採光。プライバシーに配慮した2階リビング。日差しあふれるルーフバルコニー付。

  • システムキッチン
  • ガス3口
  • 対面キッチン
  • L型キッチン
  • 食器洗い機付き

お気軽にどうぞ!

お気に入りに追加済み

所在地マップ

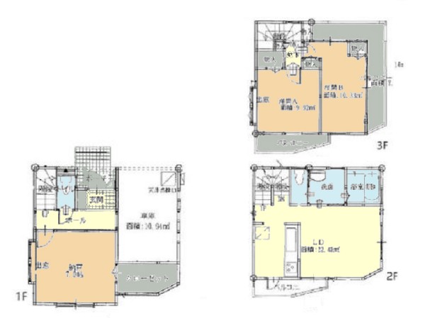
間取り

お気軽にどうぞ!

お気に入りに追加済み

ローンシミュレーション

頭金・金利の場合

この物件の月々のお支払額

86,474

ボーナス時(年2回)お支払額

150,000

安全性をチェック! 年収に対する返済比率

- %

※会員登録し、詳細情報を記入されますと、全ての物件で自動的に金額が表示され、大変便利です。

※まだ会員登録をされていない方は、下記チェック欄をご記入ください。

※上記計算は物件価格 3,980万円+諸経費 8%込みの金額による結果となります。

※返済金額はあくまでも目安です。

お客様の条件からシミュレーションするには?

会員登録してローン情報を入力しておくと全ての物件に対してローンシミュレーションを表示できます。

お気軽にどうぞ!

お気に入りに追加済み

詳細情報

学区

日枝小学校

共進中学校

用途地域

近隣商業

地目

宅地

建ぺい率

80%

容積率

240%

駐車場

有り ビルトイン車庫 駐車場面積:9.21㎡

接道

4.0m

権利

所有権

私道面積

有 0.08m²

セットバック

無し

建物構造

木造

建物階数

3階

築年月

2025/10

入居日

2025/11

建築確認番号

第2025SBC-確00244Y号

都市計画

市街化区域

取引態様

仲介

物件番号

47450

設備

都市ガス、公営水道、公共下水、外壁サイディング、ビルトインガレージ、緑豊かな住宅地、閑静な住宅地、スーパーが近い(10分以内)、2沿線以上利用可、総合病院徒歩10分以内、小学校徒歩10分以内、中学校徒歩10分以内、保育施設・幼稚園5分以内、公園5分以内、コンビニ5分以内、対面キッチン、都市ガス、システムキッチン、ガス3口、対面キッチン、L型キッチン、食器洗い機付き、ユニットバス、追い焚き、浴室乾燥機、ウォシュレット、トイレ2ヶ所、浴室に窓、暖房便座、浴室暖房、バルコニー、ルーフバルコニー、3階建以上、全室2面採光、フローリング、リビング階段、スマートキー、クローゼット、収納、下駄箱、全居室収納、シャンプドレッサー付き、モニタ付きインターフォン、全居室複層ガラスか複層サッシ、24時間換気システム

こだわり

道路狭い(4メートル未満)、食器洗い洗浄乾燥機、浴室換気乾燥暖房機、2沿線利用であんしん通勤、子供の多い街に住む、大人の二人暮らし、スカイバルコニー、リビングイン階段、LDKは2階に、対面キッチン、小学校10分以内、スーパー10分以内、コンビニ10分以内、総合病院10分以内、保育園10分以内、幼稚園10分以内、公園10分以内、都市ガス、日当たり良好、南道路限定

特記事項

宅地造成工事規制区域:有/高度地区:有/準防火地域:有/その他制限事項:建築基準法第22条による区域 建物面積に車庫9.21平米含 建物面積にペントハウス3.1平米含。

備考

BL「吉野町」「蒔田」駅から徒歩8分。京急線「南太田」駅から徒歩10分。全室2面採光。プライバシーに配慮した2階リビング。日差しあふれるルーフバルコニー付。

この一戸建てを見ている人におすすめの物件

お気軽にどうぞ!

お気に入りに追加済み

loading...