今週末モデルハウス見学会開催中!「蒔田」駅利用 新築一戸建て(A) 全8棟 エコジョーズ

物件種別

新築一戸建て

価格

3,680万円

所在地

横浜市磯子区 丸山1丁目 29-20

交通

ブルーライン「蒔田」駅 徒歩 16 分

根岸線「根岸」駅 バス停「脳卒中・神経脊椎センター」まで 徒歩 3 分 バス利用 11分

土地面積

55.48㎡

建物面積

93.62㎡

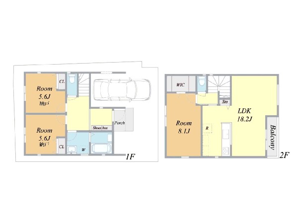
間取り

2SLDK

前回情報更新日 2025.12.01 | 次回情報更新予定日 2025.12.15

省エネに配慮された建物

角地限定

道路広々(5m以上)

日当たり良好

1 | 2

この物件のココがオススメ!

地下鉄BL「蒔田」駅徒歩圏。全8棟。全室2面採光。陽の光を取り込みやすい2階リビング。食洗機、エコジョーズ他、設備充実。納戸も居室としてご利用可能。

  • システムキッチン
  • L型キッチン
  • 食器洗い機付き
  • ユニットバス
  • 追い焚き

お気軽にどうぞ!

お気に入りに追加済み

所在地マップ

間取り

お気軽にどうぞ!

お気に入りに追加済み

ローンシミュレーション

頭金・金利の場合

この物件の月々のお支払額

78,071

ボーナス時(年2回)お支払額

150,000

安全性をチェック! 年収に対する返済比率

- %

※会員登録し、詳細情報を記入されますと、全ての物件で自動的に金額が表示され、大変便利です。

※まだ会員登録をされていない方は、下記チェック欄をご記入ください。

※上記計算は物件価格 3,680万円+諸経費 8%込みの金額による結果となります。

※返済金額はあくまでも目安です。

お客様の条件からシミュレーションするには?

会員登録してローン情報を入力しておくと全ての物件に対してローンシミュレーションを表示できます。

お気軽にどうぞ!

お気に入りに追加済み

詳細情報

学区

滝頭小学校

岡村中学校

用途地域

第一種住居

地目

宅地

建ぺい率

60%

容積率

200%

駐車場

有り ビルトイン車庫 駐車場面積:9.29㎡

接道

5.0m3.3m

権利

所有権

私道面積

有 6.47m²

セットバック

無し

建物構造

木造

建物階数

3階

築年月

2026/02

入居日

2026/03

建築確認番号

第25KAK建確01978号

都市計画

市街化区域

取引態様

仲介

物件番号

47925-A

設備

都市ガス、公営水道、公共下水、ビルトインガレージ、緑豊かな住宅地、閑静な住宅地、角地、スーパーが近い(10分以内)、2沿線以上利用可、小学校徒歩10分以内、保育施設・幼稚園5分以内、公園5分以内、都市ガス、システムキッチン、L型キッチン、食器洗い機付き、浄水器、ユニットバス、追い焚き、浴室乾燥機、ウォシュレット、トイレ2ヶ所、浴室に窓、暖房便座、バルコニー、3階建以上、LDK15畳以上、全居室6畳以上、省エネ給湯器、採光2面、全室2面採光、フローリング、リビング階段、クローゼット、収納、下駄箱、全居室収納、シャンプドレッサー付き、モニタ付きインターフォン、インターフォン、複層ガラス、24時間換気システム、建物10年保証

こだわり

道路狭い(4メートル未満)、省エネに配慮された建物、食器洗い洗浄乾燥機、浴室換気乾燥暖房機、リビングイン階段、LDKは2階に、LDK15帖以上、小学校10分以内、スーパー10分以内、コンビニ10分以内、保育園10分以内、幼稚園10分以内、公園10分以内、都市ガス、フラット35利用可、5棟以上の分譲地、隣家との間隔たっぷり、角地限定、道路広々(5m以上)、日当たり良好

特記事項

隅切り:有/宅地造成工事規制区域:有/急傾斜地崩壊危険区域:有/高度地区:有/準防火地域:有/日影制限:有/その他制限事項:建築基準法第22条区域 土砂災害警戒区域 別途私道持分148.33平米×1/3×1/8有 建物面積に車庫面積9.29平米含。

備考

地下鉄BL「蒔田」駅徒歩圏。全8棟。全室2面採光。陽の光を取り込みやすい2階リビング。食洗機、エコジョーズ他、設備充実。納戸も居室としてご利用可能。

この一戸建てを見ている人におすすめの物件

お気軽にどうぞ!

お気に入りに追加済み

loading...