建物完成しました! 今週末内覧会開催中!「三ツ境」駅利用 新築一戸建て 角地

物件種別

新築一戸建て

価格

2,780万円

所在地

横浜市旭区 金が谷2丁目 18-7

交通

相模鉄道線「三ッ境」駅 バス停「岸本」まで 徒歩 7 分 バス利用 10分

いずみ野線「二俣川」駅 バス停「ニュータウン第7」まで 徒歩 3 分 バス利用 9分

土地面積

73.09㎡

建物面積

58.31㎡

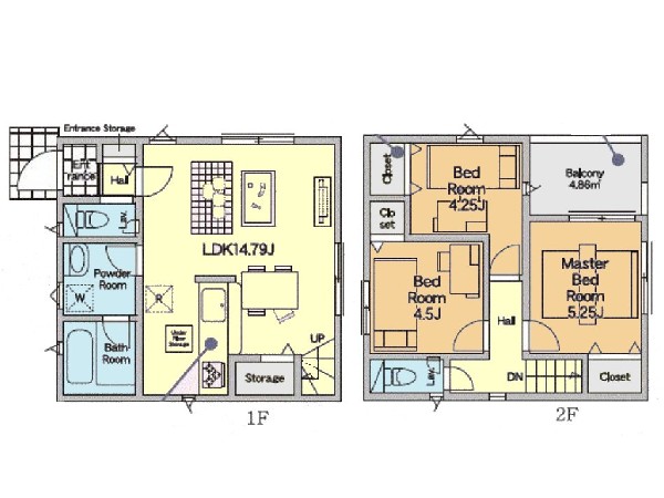
間取り

2LDK

前回情報更新日 2025.10.16 | 次回情報更新予定日 2025.10.30

カースペース2台

角地限定

日当たり良好

隣家との間隔たっぷり

この物件のココがオススメ!

相鉄線「三ツ境」駅利用。角地の為、解放感ある立地。全室2面採光なので、明るく通風良好。プライバシーに配慮した2階LDKは、ご家族との会話が弾む対面キッチン。

  • システムキッチン
  • ガス3口
  • 対面キッチン
  • ユニットバス
  • 追い焚き

お気軽にどうぞ!

お気に入りに追加済み

所在地マップ

間取り

お気軽にどうぞ!

お気に入りに追加済み

ローンシミュレーション

頭金・金利の場合

この物件の月々のお支払額

52,861

ボーナス時(年2回)お支払額

150,000

安全性をチェック! 年収に対する返済比率

- %

※会員登録し、詳細情報を記入されますと、全ての物件で自動的に金額が表示され、大変便利です。

※まだ会員登録をされていない方は、下記チェック欄をご記入ください。

※上記計算は物件価格 2,780万円+諸経費 8%込みの金額による結果となります。

※返済金額はあくまでも目安です。

お客様の条件からシミュレーションするには?

会員登録してローン情報を入力しておくと全ての物件に対してローンシミュレーションを表示できます。

お気軽にどうぞ!

お気に入りに追加済み

詳細情報

学区

笹野台小学校

希望が丘中学校

用途地域

第一種低層住居専用

地目

宅地

建ぺい率

50%

容積率

80%

駐車場

有り カースペース

接道

4.8m5.0m

権利

所有権

私道面積

無し

セットバック

無し

建物構造

木造

建物階数

2階

築年月

2025/06

入居日

即時

都市計画

市街化区域

取引態様

仲介

物件番号

47569

設備

都市ガス、公営水道、公共下水、駐車場2台以上、緑豊かな住宅地、閑静な住宅地、角地、南側道路面す、隣家との間隔が大きい、小学校徒歩10分以内、保育施設・幼稚園5分以内、公園5分以内、システムキッチン、ガス3口、対面キッチン、I型キッチン、ユニットバス、追い焚き、ウォシュレット、トイレ2ヶ所、浴室に窓、暖房便座、バルコニー、ワイドバルコニー、南面バルコニー、2階建、全室2面採光、クローゼット、収納、床下収納、下駄箱、全居室収納、シャンプドレッサー付き、モニタ付きインターフォン、24時間換気システム、対面キッチン、都市ガス、建物10年保証

こだわり

急行電車でスピード通勤、大人の二人暮らし、2階建て住宅限定、LDKは2階に、広々バルコニー、対面キッチン、小学校10分以内、コンビニ10分以内、保育園10分以内、公園10分以内、都市ガス、カースペース2台、隣家との間隔たっぷり、角地限定、日当たり良好、南道路限定

特記事項

不整形地:有/隅切り:有/宅地造成工事規制区域:有/高度地区:有/特別用途制限地域:有/日影制限:有/敷地面積最低限度:有/高さ限度:有/その他制限事項:建築基準法第22条による区域 過少宅地。

備考

相鉄線「三ツ境」駅利用。角地の為、解放感ある立地。全室2面採光なので、明るく通風良好。プライバシーに配慮した2階LDKは、ご家族との会話が弾む対面キッチン。

この一戸建てを見ている人におすすめの物件

お気軽にどうぞ!

お気に入りに追加済み

loading...