川崎市宮前区犬蔵1丁目 中古一戸建 5390万円

物件種別

中古一戸建て

価格

5,390万円

所在地

川崎市宮前区 犬蔵1丁目 22-30-1

交通

田園都市線「宮前平」駅 バス停「菅生車庫」まで 徒歩 4 分 バス利用 9分

田園都市線「たまプラーザ」駅 バス停「くすのき公園」まで 徒歩 11 分 バス利用 9分

土地面積

106.19㎡

建物面積

143.55㎡

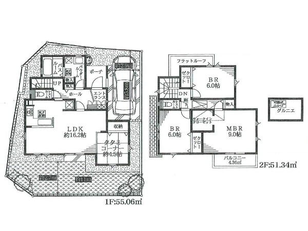
間取り

4LDK

前回情報更新日 2025.11.04 | 次回情報更新予定日 2025.11.18

日当たり良好

隣家との間隔たっぷり

低層住居専用地域

1 | 6

この物件のココがオススメ!

「宮前平」駅「たまプラーザ」駅バス9分 ウッドデッキやロフト、離れのような和室のある2階建て4LDK

  • システムキッチン
  • ガス3口
  • 食器洗い機付き
  • ユニットバス
  • 追い焚き

お気軽にどうぞ!

お気に入りに追加済み

所在地マップ

間取り

お気軽にどうぞ!

お気に入りに追加済み

ローンシミュレーション

頭金・金利の場合

この物件の月々のお支払額

125,976

ボーナス時(年2回)お支払額

150,000

安全性をチェック! 年収に対する返済比率

- %

※会員登録し、詳細情報を記入されますと、全ての物件で自動的に金額が表示され、大変便利です。

※まだ会員登録をされていない方は、下記チェック欄をご記入ください。

※上記計算は物件価格 5,390万円+諸経費 8%込みの金額による結果となります。

※返済金額はあくまでも目安です。

お客様の条件からシミュレーションするには?

会員登録してローン情報を入力しておくと全ての物件に対してローンシミュレーションを表示できます。

周辺環境

健爽学園ゆりかご幼稚園 (保育園と幼稚園との機構をもっている幼保連携型認定こども園です。)

幼稚園・保育園

周辺環境:健爽学園ゆりかご幼稚園 (保育園と幼稚園との機構をもっている幼保連携型認定こども園です。)(220m)

宮前スポーツセンター (大小体育室やトレーニング室、ボルダリングなどを利用できます。)

その他環境写真

周辺環境:宮前スポーツセンター (大小体育室やトレーニング室、ボルダリングなどを利用できます。)(500m)

犬蔵中学校 (学校教育目標は「生命・いのちを尊重し,生きる力を育む。」)

中学校

周辺環境:犬蔵中学校 (学校教育目標は「生命・いのちを尊重し,生きる力を育む。」)(550m)

犬蔵小学校 (緑の丘に包まれた自然豊かな環境の中で、44年の歴史を刻んできた犬蔵小学校。現在、1100人を超える児童が、のびのびと学校生活を送っています。)

小学校

周辺環境:犬蔵小学校 (緑の丘に包まれた自然豊かな環境の中で、44年の歴史を刻んできた犬蔵小学校。現在、1100人を超える児童が、のびのびと学校生活を送っています。)(600m)

マルエツ川崎宮前店 (午前10時~午後11時まで営業。駐車場も3時間無料なので、車でのお買い物に便利。)

スーパー

周辺環境:マルエツ川崎宮前店 (午前10時~午後11時まで営業。駐車場も3時間無料なので、車でのお買い物に便利。)(700m)

犬蔵さくらの丘公園(見晴らしの良い景色が楽しめて、とても気持ちのいい風が吹いています。さくらの季節には、いろいろな桜の花が楽しめるようです。)

公園

周辺環境:犬蔵さくらの丘公園(見晴らしの良い景色が楽しめて、とても気持ちのいい風が吹いています。さくらの季節には、いろいろな桜の花が楽しめるようです。)(850m)

お気軽にどうぞ!

お気に入りに追加済み

詳細情報

学区

犬蔵小学校

犬蔵中学校

用途地域

第一種低層住居専用

地目

宅地

建ぺい率

50%

容積率

100%

駐車場

有り 地下車庫

接道

北西 4.6m

権利

所有権

私道面積

無し

セットバック

無し

建物構造

木造

建物階数

2階

築年月

2014/11

入居日

相談

都市計画

市街化区域

取引態様

仲介

物件番号

A1603

設備

都市ガス、公営水道、公共下水、スレート葺、駐車場1台、緑豊かな住宅地、閑静な住宅地、都市近郊、市街地が近い、周辺交通量少なめ、スーパーが近い(10分以内)、小学校徒歩10分以内、中学校徒歩10分以内、保育施設・幼稚園5分以内、公園5分以内、都市ガス、システムキッチン、ガス3口、食器洗い機付き、浄水器、ユニットバス、追い焚き、浴室乾燥機、ウォシュレット、トイレ2ヶ所、浴室に窓、暖房便座、浴室暖房、バルコニー、ウッドデッキ、南面バルコニー、内外装リフォーム、2階建、ロフト、LDK15畳以上、全居室6畳以上、和室、照明器具付き、採光3面、南向き、フローリング、リビング階段、クローゼット、押し入れ、収納、下駄箱、全居室収納、シャンプドレッサー付き、年内入居可、通風良好、陽当り良好

こだわり

崖下・崖上、食器洗い洗浄乾燥機、浴室換気乾燥暖房機、運転ラクラク生活、外食を楽しめる生活、子供の多い街に住む、自然を感じる暮らし、LDKは1階に、2階建て住宅限定、リビングイン階段、LDK15帖以上、主寝室 8帖以上、和室有り、広々バルコニー、ロフト・小屋裏収納、小学校10分以内、スーパー10分以内、コンビニ10分以内、保育園10分以内、幼稚園10分以内、公園10分以内、都市ガス、屋根付きカースペース、隣家との間隔たっぷり、日当たり良好、低層住居専用地域

特記事項

 壁面後退:有/景観法:有/宅地造成工事規制区域:有/日影制限:有/敷地面積最低限度:有/高さ限度:有/建築基準法22条による区域。 /≪内装リフォーム…2025年09月(キッチン、浴室、トイレ、洗面所、壁、床、建具、その他 照明器具など) 外装リフォーム…2025年09月(外壁、屋根)≫

備考

「宮前平」駅「たまプラーザ」駅バス9分 ウッドデッキやロフト、離れのような和室のある2階建て4LDK

この一戸建てを見ている人におすすめの物件

お気軽にどうぞ!

お気に入りに追加済み

loading...