川崎市宮前区犬蔵1丁目 新築一戸建 4480万円 1号棟

物件種別

新築一戸建て

価格

4,480万円

所在地

川崎市宮前区 犬蔵1丁目 9-13

交通

田園都市線「たまプラーザ」駅 徒歩 22 分

ブルーライン「あざみ野」駅 バス停「清水台」まで 徒歩 11 分 バス利用 12分

土地面積

60.28㎡

建物面積

116.95㎡

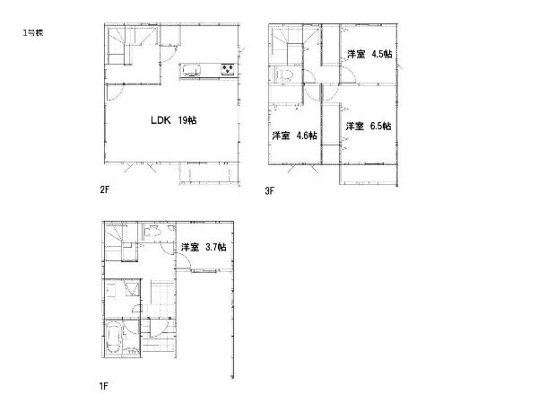
間取り

4LDK

前回情報更新日 2025.10.14 | 次回情報更新予定日 2025.10.28

建売だけど一味違うこだわり建物

道路広々(5m以上)

日当たり良好

1 | 10

この物件のココがオススメ!

商業施設が整う人気の「たまプラーザ」駅まで徒歩圏内 洗練された設備と利便性を兼ね備えた住宅です。

  • システムキッチン
  • ガス3口
  • 対面キッチン
  • 食器洗い機付き
  • ユニットバス

お気軽にどうぞ!

お気に入りに追加済み

所在地マップ

間取り

お気軽にどうぞ!

お気に入りに追加済み

ローンシミュレーション

頭金・金利の場合

この物件の月々のお支払額

100,480

ボーナス時(年2回)お支払額

150,000

安全性をチェック! 年収に対する返済比率

- %

※会員登録し、詳細情報を記入されますと、全ての物件で自動的に金額が表示され、大変便利です。

※まだ会員登録をされていない方は、下記チェック欄をご記入ください。

※上記計算は物件価格 4,480万円+諸経費 8%込みの金額による結果となります。

※返済金額はあくまでも目安です。

お客様の条件からシミュレーションするには?

会員登録してローン情報を入力しておくと全ての物件に対してローンシミュレーションを表示できます。

周辺環境

たまプラーザテラス(東急田園都市線たまプラーザ駅直結のショッピングエリア。ファッション、グルメが楽しめる複合商業施設です。)

ショッピングセンター

周辺環境:たまプラーザテラス(東急田園都市線たまプラーザ駅直結のショッピングエリア。ファッション、グルメが楽しめる複合商業施設です。)(1700m)

業務用スーパー宮前店(食べ盛りのお子様がいらっしゃるご家庭の強い味方、魅力の量・価格のスーパーが近くにあると、とても心強いです。)

スーパー

周辺環境:業務用スーパー宮前店(食べ盛りのお子様がいらっしゃるご家庭の強い味方、魅力の量・価格のスーパーが近くにあると、とても心強いです。)(550m)

マルエツ川崎宮前店(周囲にはいくつかのスーパーが点在しており、目的や曜日などで使い分けるもの良いですね。少し変わった食材で新しいお料理にチャレンジはいかがですか。)

スーパー

周辺環境:マルエツ川崎宮前店(周囲にはいくつかのスーパーが点在しており、目的や曜日などで使い分けるもの良いですね。少し変わった食材で新しいお料理にチャレンジはいかがですか。)(1100m)

宮前スポーツセンター(大小体育室やトレーニング室、ボルダリングなどを利用できます。)

その他環境写真

周辺環境:宮前スポーツセンター(大小体育室やトレーニング室、ボルダリングなどを利用できます。)(500m)

セブンイレブン 川崎犬蔵2丁目店(セブンミールは大好評です。今や公共料金の支払いや宅配など、色々な用途があるコンビニは必須ですね。)

コンビニ

周辺環境:セブンイレブン 川崎犬蔵2丁目店(セブンミールは大好評です。今や公共料金の支払いや宅配など、色々な用途があるコンビニは必須ですね。)(650m)

宮前美しの森公園(樹木が立ち並び、木漏れ日を愉しめる公園。落ち着きある空間が広がります。)

公園

周辺環境:宮前美しの森公園(樹木が立ち並び、木漏れ日を愉しめる公園。落ち着きある空間が広がります。)(800m)

ゆりかご幼稚園(保育園と幼稚園との機構をもっている幼保連携型認定こども園です。)

幼稚園・保育園

周辺環境:ゆりかご幼稚園(保育園と幼稚園との機構をもっている幼保連携型認定こども園です。)(700m)

かわさき犬蔵保育園(自然に囲まれ園舎・園庭から子供達の元気な声が聞こえてきます。お子様の成長が楽しみです。)

幼稚園・保育園

周辺環境:かわさき犬蔵保育園(自然に囲まれ園舎・園庭から子供達の元気な声が聞こえてきます。お子様の成長が楽しみです。)(900m)

犬蔵小学校(緑の丘に包まれた自然豊かな環境の中で、歴史を刻んできた犬蔵小学校。現在、1100人以上の児童が、のびのびと学校生活を送っています。)

小学校

周辺環境:犬蔵小学校(緑の丘に包まれた自然豊かな環境の中で、歴史を刻んできた犬蔵小学校。現在、1100人以上の児童が、のびのびと学校生活を送っています。)(600m)

お気軽にどうぞ!

お気に入りに追加済み

詳細情報

学区

犬蔵小学校

犬蔵中学校

用途地域

準住居

地目

宅地

建ぺい率

60%

容積率

200%

駐車場

有り ビルトイン車庫

接道

19.9m

権利

所有権

私道面積

無し

セットバック

無し

建物構造

木造

建物階数

2階

築年月

2026/01

入居日

2026/02

建築確認番号

第2025SBC-確01138H号

都市計画

市街化区域

取引態様

専任

物件番号

A1749-1

設備

公営水道、公共下水、外壁サイディング、ビルトインガレージ、駐車場1台、平坦地、前面棟無、都市近郊、地盤調査済、南側道路面す、前道6m以上、市街地が近い、整備された歩道、スーパーが近い(10分以内)、2沿線以上利用可、小学校徒歩10分以内、中学校徒歩10分以内、公園5分以内、コンビニ5分以内、対面キッチン、パントリー、システムキッチン、ガス3口、対面キッチン、食器洗い機付き、浄水器、パントリー(食器・食品の収納庫)、ユニットバス、追い焚き、浴室乾燥機、ウォシュレット、オートバス付き、トイレ2ヶ所、浴室1坪以上、浴室に窓、暖房便座、浴室暖房、バルコニー、南面バルコニー、3階建以上、LDK18畳以上、採光3面、南向き、全室2面採光、クローゼット、収納、床下収納、下駄箱、全居室収納、シャンプドレッサー付き、年度内入居可、モニタ付きインターフォン、複層ガラス、火災警報器(報知機)、通風良好、陽当り良好、24時間換気システム、建物10年保証

こだわり

大通り沿い、プロパンガス、建売だけど一味違うこだわり建物、カッコイイ系のこだわり建物、食器洗い洗浄乾燥機、浴室換気乾燥暖房機、運転ラクラク生活、自然を感じる暮らし、LDKは2階に、LDK18帖以上、対面キッチン、浴室1坪以上、パントリー、小学校10分以内、有料道路インター2キロ以内、スーパー10分以内、コンビニ10分以内、小児科医院10分以内、保育園10分以内、幼稚園10分以内、公園10分以内、屋根付きカースペース、道路広々(5m以上)、日当たり良好、南道路限定、道路と段差無し、3階建て以上建築可能地域

特記事項

 景観法:有/宅地造成工事規制区域:有/高度地区:有/準防火地域:有/日影制限:有/高さ限度:有/建物面積に車庫面積13.66m2含む。

備考

商業施設が整う人気の「たまプラーザ」駅まで徒歩圏内 洗練された設備と利便性を兼ね備えた住宅です。

この一戸建てを見ている人におすすめの物件

お気軽にどうぞ!

お気に入りに追加済み

loading...